Get discounts,
promos, see our
newest plans
and more!
+ 15% off any plan
See terms opt out anytime


No Thanks

Thanks for
signing up!


Use Code:

SIGNUP15

And save 15% off any plan!

Check your email for details.

CLOSE
Search Plans
Customer Reviews
     
20% off ALL House Plans Sitewide
20% off ALL House Plans Sitewide
20% off ALL House Plans Sitewide

Code: SAVE20
Sale ends midnight 5/13/2026 PST

Sq Ft
3,457 FT²

Beds
4

Baths
3.5

Stories
2

Garage
4

Depth
101'

Width
70'
On Sale
$1,859.20
$2,324.00
© copyright by designer
 View All 9 Images | Photographs may reflect modified home
Sq Ft
3,457 FT²
Beds
4
Baths
3.5
Stories
2
Garage
4
Depth
101'
Width
70'
 
Click to Zoom In on Floor Plan
© copyright by designer
 
 

About This Plan

Classic Craftsman tradition shines through in this spectacular two-story home. The exterior is detailed with cedar shingles, stone and partial columns defining the front porch. Interior spaces promise fine livability, with two master suites and plenty of cozy rooms for private time. A formal dining room and a study flank the two-story foyer. Both rooms have wide Mission-style windows overlooking the front porch. An open great room features two sets of double doors to the rear yard, a fireplace and a built-in media center. More casual dining takes place in the breakfast nook, which is open to an island kitchen and leads to a vaulted porch.

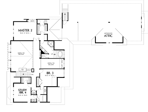
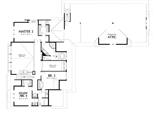
One master suite is found on the first floor. It glows with appointments, from double-door access to the rear yard to a fine bath with spa tub, separate shower and double sinks. The second master suite, on the second floor, holds a window seat and a private bath with spa tub. Two additional bedrooms--or make one a study--share a full compartmented bath with private vanities for each bedroom.
The four-car garage connects to the main house at a laundry/mud room with half-bath, coat closet, built-in bench and washer/dryer space. Extra room in the garage can be used for a workshop or as storage space. 


See All Plan Options
 

FEATURES & DETAILS

Kitchen features
Kitchen Island
Nook / Breakfast Area
Walk-in Pantry
Bedroom features
2 Primary Suites
Double Vanity Sink
Guest Suite
His and Hers Primary Closets
Primary Bdrm Main Floor
Separate Tub and Shower
Split Bedrooms
Walk-in Closet
Exterior features
Covered Front Porch
Covered Rear Porch
Front Porch
Foundation Options
Basement
Crawlspace
Slab
Lot Options
Suited for corner lot
Suited for view lot
Additional features
2 Story Volume
Dining Room
Fireplace
Foyer
Great Room
Home Office
Laundry 1st Fl
Mud Room
Open Floor Plan
Storage Space
Unfinished Space
Vaulted Ceilings
Garage Location
Front
Garage Options
Attached
Side-entry
3,457 Ft
2
Total Heated
2,222 Ft
2
1st Floor
1,235 Ft
2
2nd Floor
4
Bedrooms
3.5
Bathrooms
4
Garage
2
Stories
70' 0"
Width
101' 0"
Depth
26' 0"
Height
Varies' 0"
Main Floor Ceiling
8' 0"
Upper Floor Ceiling
2x6
Framing
Stick
Roof Framing
8/12
Primary Roof Pitch
Single
Dwelling Number
None
Bonus Access

Unheated Living Space
1,388 Ft
2
Garage
172 Ft
2
Porch
 

Plan Package Options

 Select Plan Package
 Need To Reverse Plan? (Optional)
  Select Foundation Option
  Add-Ons (Optional)
INCLUDED WITH YOUR PURCHASE

Free Ground shipping in the U.S.

FREE

Home Building & Product Ideas Organizer

Sub Total
$0
Free Shipping
QUESTIONS OR NEED HELP ORDERING? LIVE CHAT OR CALL US AT 866-214-2242
Plan Packages

Each set of construction documents typically includes detailed, dimensioned floor plans, basic electric layouts, cross sections, roof details, cabinet layouts, and elevations, as well as general IRC specifications. Please refer to the ARCHITECT or DESIGNER’S PLAN DETAILS link above the floor plan on any plan page to determine the specific details for each plan. Our house plans contain virtually all of the information required to construct your home. The typical plan set does not include plumbing, HVAC drawings, or engineering stamps due to the wide variety of specific needs, local codes, and climatic conditions. These details and specifications are easily obtained from your builder, contractors, and/or local engineers.

BEST PRICE GUARANTEE

Find the same house plan (modifications included!) and package for less on another site, show us the URL and we'll give you the difference plus an additional 10% back.

100% SATISFACTION GUARANTEE

We offer a one-time, 30-day exchange policy for unused, printed plan packages in the event you aren't satisfied with your first selection.

 
 

Plan 2728  Back to plan page

Loading...