Get discounts,
promos, see our
newest plans
and more!
+ 15% off any plan
See terms opt out anytime


No Thanks

Thanks for
signing up!


Use Code:

SIGNUP15

And save 15% off any plan!

Check your email for details.

CLOSE
Search Plans
     

Stiller Court Luxury Contemporary Style House, Plan 9465

 
 

Sq Ft
3,982 FT²

Beds
5

Baths
4.5

Stories
2

Garage
3

Depth
56'

Width
77' 6"
From
$1,991.00
© copyright by designer
 View All 9 Images | Photographs may reflect modified home
Sq Ft
3,982 FT²
Beds
5
Baths
4.5
Stories
2
Garage
3
Depth
56'
Width
77' 6"
 
Click to Zoom In on Floor Plan
© copyright by designer
 
 

About This Plan

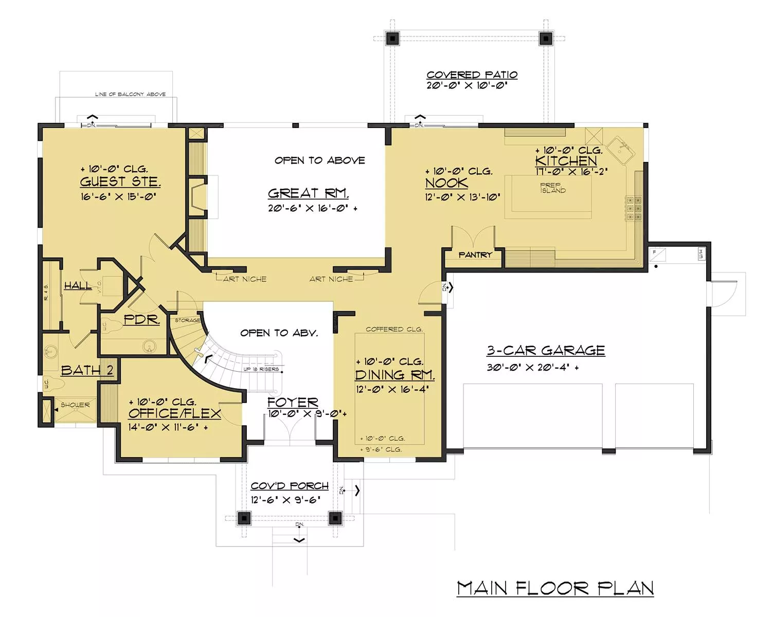
This northwest contemporary sprawling two story boasts 3,982 sq.ft. of luxury design perfect for entertaining as well as considerate privacy with the split bedrooms on its second level.

The exterior elevation has elevated style with the use of mixed materials with stone and siding. From the covered porch, guests will enter into the home with the center of the main floor’s ceiling reaching up to the second level with 10’ ceilings throughout the rest of level 1. The sought out open concept design melds the kitchen, casual eating nook, and the great room with a beautiful fireplace accenting the large shared space for all to enjoy.

There’s a guest room on the main level with a private bathroom and sliding glass doors that lead to a small private patio and the front of the home has a home office that provides a space for focus and productivity.

Up the curved stairs you’ll find the master has been intentionally separated from the other 3 bedrooms with a private bridge / walkway that is flanked by the open-air 2 story ceilings below. . The master bath is ensuite and has both a shower and tub, as well as dual sinks and a walk-in closet.

Across the bridge is the home’s laundry room and 2 other bedrooms as well as a bonus room (whose space is considered in the total heated square footage) and can be used as the 5th bedroom. There is a full bath accessed by the hallway, while bedroom 4 has its own private bath.


  

See All Plan Options
 

FEATURES & DETAILS

Kitchen features
Kitchen Island
Nook / Breakfast Area
Walk-in Pantry
Bedroom features
Double Vanity Sink
Guest Suite
Primary Bdrm Upstairs
Separate Tub and Shower
Walk-in Closet
Exterior features
Covered Front Porch
Deck
Rear Porch
Additional features
2 Story Volume
Bonus Room
Dining Room
Fireplace
Foyer
Great Room
Home Office
Laundry 2nd Fl
Library/Media Rm
Open Floor Plan
Vaulted Great Room/Living
Garage Location
Front
Garage Options
Attached
Front-entry
3,982 Ft
2
Total Heated
2,126 Ft
2
1st Floor
1,856 Ft
2
2nd Floor
5
Bedrooms
4.5
Bathrooms
3
Garage
2
Stories
77' 6"
Width
56' 0"
Depth
27' 11"
Height
10' 0"
Main Floor Ceiling
9' 0"
Upper Floor Ceiling
2x6
Framing
Truss
Roof Framing
4/12
Primary Roof Pitch
.25/12
Secondary Roof Pitch
Single
Dwelling Number
2nd Floor
Bonus Access

Unheated Living Space
630 Ft
2
Garage
144 Ft
2
Porch
260 Ft
2
Deck
 

Plan Package Options

 Select Plan Package
$1,991
PDF Single Build

Digital plans emailed to you in PDF format that allows for printing copies and sharing electronically with contractors, subs, decorators, and more. This package includes a license to build the home one time.

$1,991
$2,291
5 Printed Sets

Five Printed Sets of Residential Construction Drawings are typically 24” x 36” documents and come with a license to construct a single residence shipped to a physical address. Keep in mind PDF Plan Packages are our most popular choice which allows you to print as many copies as you need and to electronically send files to your builder, subcontractors, etc.

$2,291
$2,441
8 Printed Sets

Eight Printed Sets of Construction Drawings, typically 24” x 36” documents, with a license to construct a single residence shipped to your physical address. PDF Plan Packages are our most popular choice which allows you to print as many copies as you need and to electronically send files to your builder, subcontractors, bank/mortgage reps, material stores, decorators and more.

$2,441
$3,782
CAD + PDF Single Build

CAD files are a complete set of construction drawings delivered electronically. They can be used for any type of modification—including major design changes and engineering—and include a release granting permission to modify the plan. Most CAD plan orders are emailed the same or next business day.
 
This package also comes with a PDF set of plans and a copyright release for making modifications and printing unlimited copies.
 
CAD files are provided in .dwg format. For details on the specific CAD program used, please refer to the PLAN DETAILS section located above the floor plan on each plan’s page.

$3,782
 Need To Reverse Plan? (Optional)
$250
Readable Reverse

Reverse house plans with readable text and dimensions 

$250
  Select Foundation Option
  Add-Ons (Optional)
INCLUDED WITH YOUR PURCHASE

Free Ground shipping in the Continental U.S.

FREE

Design consultation with the architect or designer to discuss your plan

Home Building & Product Ideas Organizer

Sub Total
$0
Free Shipping
QUESTIONS OR NEED HELP ORDERING? LIVE CHAT OR CALL US AT 866-214-2242
Plan Packages

Each set of construction documents includes detailed, dimensioned floor plans, basic electric layouts, cross sections, roof details, cabinet layouts and elevations, as well as general IRC specifications. They contain virtually all of the information required to construct your home. The typical plan set does not include any plumbing, HVAC drawings, or engineering stamps due to the wide variety of specific needs, local codes, and climatic conditions. These details and specifications are easily obtained from your builder, contractors, and/or local engineers.

BEST PRICE GUARANTEE

find the same house plan (modifications included!) and package for less on another site, show us the URL and we'll give you the difference plus an additional 5% back.

100% SATISFACTION GUARANTEE

We offer a one-time, 30-day exchange policy for unused, non-electronic plan packages in the event you aren't satisfied with your first selection.

 
 

Plan 9465  Back to plan page

Loading...