Get discounts,
promos, see our
newest plans
and more!
+ 15% off any plan
See terms opt out anytime


No Thanks

Thanks for
signing up!


Use Code:

SIGNUP15

And save 15% off any plan!

Check your email for details.

CLOSE
Search Plans
Customer Reviews
     
15% off ALL House Plans Sitewide
15% off ALL House Plans Sitewide
15% off ALL House Plans Sitewide

Code: HONOR
Sale ends midnight 5/31/2026 PST

Sq Ft
2,347 FT²

Beds
4

Baths
2.5

Stories
1.5

Garage
2

Depth
68' 3"

Width
81' 4"
On Sale
$884.00
$1,040.00
© copyright by architect
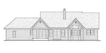
 View All 13 Images | Photographs may reflect modified home
Sq Ft
2,347 FT²
Beds
4
Baths
2.5
Stories
1.5
Garage
2
Depth
68' 3"
Width
81' 4"
 
Click to Zoom In on Floor Plan
© copyright by architect
 
 

About This Plan

The private rear facing master suite and beautiful wrap-around rear porch are the bonuses that come from this angled floor plan. The angle provides enhanced flexibility in site placement to take advantage of a particular view or angle to the sun or even difficult site topography. Although located on the same side of the plan as the other 3 bedrooms, the master is well separated for privacy. It features a beautiful rear bay window, two walk-in closets and a luxurious bath. The 4th bedroom could double as a home office, study or even as a living room, if you desire one. The spacious rear facing great room is the focal point of the living area. Note the high stepped ceiling, fireplace, and space for built-ins. The large kitchen sits at a dramatic angle to the great room, providing a view of the fireplace/tv wall. Note the spacious laundry room and the extra powder room near the kitchen. There is also a huge 2nd floor bonus space available , if you ever want to expand. 

See All Plan Options
 

FEATURES & DETAILS

Kitchen features
Butler's Pantry
Kitchen Island
Nook / Breakfast Area
Peninsula / Eating Bar
Walk-in Pantry
Bedroom features
Double Vanity Sink
His and Hers Primary Closets
Primary Bdrm Main Floor
Separate Tub and Shower
Split Bedrooms
Exterior features
Covered Front Porch
Covered Rear Porch
Wraparound Porch
Foundation Options
Basement
Crawlspace
Slab
Additional features
Bonus Room
Dining Room
Fireplace
Foyer
Great Room
Laundry 1st Fl
Open Floor Plan
Storage Space
Unfinished Space
Vaulted Ceilings
Garage Location
Side
Garage Options
Attached
Side-entry
2,347 Ft
2
Total Heated
2,347 Ft
2
1st Floor
4
Bedrooms
2.5
Bathrooms
2
Garage
1.5
Stories
81' 4"
Width
68' 3"
Depth
23' 8"
Height
9' 0"
Main Floor Ceiling
2x4
Framing
Stick
Roof Framing
9/12
Primary Roof Pitch
12: 12
Secondary Roof Pitch
Single
Dwelling Number
2nd Floor
Bonus Access

Unheated Living Space
446 Ft
2
Garage
164 Ft
2
Porch
823 Ft
2
Bonus Room
 

Plan Package Options

 Select Plan Package
 Need To Reverse Plan? (Optional)
  Select Foundation Option
  Add-Ons (Optional)
INCLUDED WITH YOUR PURCHASE

Free Ground shipping in the U.S.

FREE

Home Building & Product Ideas Organizer

Sub Total
$0
Free Shipping
QUESTIONS OR NEED HELP ORDERING? LIVE CHAT OR CALL US AT 866-214-2242
Plan Packages

Each set of construction documents typically includes detailed, dimensioned floor plans, basic electric layouts, cross sections, roof details, cabinet layouts, and elevations, as well as general IRC specifications. Please refer to the ARCHITECT or DESIGNER’S PLAN DETAILS link above the floor plan on any plan page to determine the specific details for each plan. Our house plans contain virtually all of the information required to construct your home. The typical plan set does not include plumbing, HVAC drawings, or engineering stamps due to the wide variety of specific needs, local codes, and climatic conditions. These details and specifications are easily obtained from your builder, contractors, and/or local engineers.

BEST PRICE GUARANTEE

Find the same house plan (modifications included!) and package for less on another site, show us the URL and we'll give you the difference plus an additional 10% back.

100% SATISFACTION GUARANTEE

We offer a one-time, 30-day exchange policy for unused, printed plan packages in the event you aren't satisfied with your first selection.

 
 

Plan 4184  Back to plan page

Loading...