Get discounts,
promos, see our
newest plans
and more!
+ 15% off any plan
See terms opt out anytime


No Thanks

Thanks for
signing up!


Use Code:

SIGNUP15

And save 15% off any plan!

Check your email for details.

CLOSE
Search Plans
     

Sq Ft
3,373 FT²

Beds
5

Baths
3.5

Stories
2

Garage
3

Depth
33' 2"

Width
88' 2"
From
$1,280.00
EXCLUSIVE PLAN
© copyright by architect
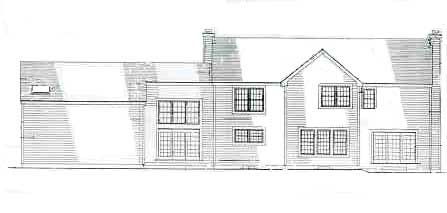
 View All 8 Images | Photographs may reflect modified home
Sq Ft
3,373 FT²
Beds
5
Baths
3.5
Stories
2
Garage
3
Depth
33' 2"
Width
88' 2"
 
Click to Zoom In on Floor Plan
© copyright by architect
 
 

About This Plan

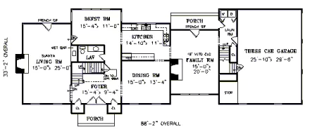
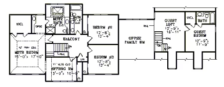
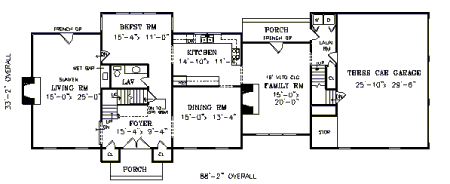
This center hall two story can be built with multiple front choices as seen in the photos. It also features a dramatic interior. A distinctive feature is the separate guest bedroom and loft located above the three-car garage, and overlooking the family room. Fireplaces grace both the family room and the sunken living room on the opposite end of the home. A large breakfast room and dining room border the kitchen for informal and formal occasions. A tray ceiling is featured in the lavish master bedroom, which features an adjoining sitting room and a walk-in closet. The master bath boasts a skylighted tub and a separate shower. The home may be built with or without a front porch. The blueprints show both versions. 

See All Plan Options
 

FEATURES & DETAILS

Kitchen features
Nook / Breakfast Area
Bedroom features
Double Vanity Sink
Guest Suite
Primary Bdrm Upstairs
Separate Tub and Shower
Sitting Area
Walk-in Closet
Exterior features
Front Porch
Foundation Options
Basement
Crawlspace
Additional features
Dining Room
Family Room
Fireplace
Formal LR
Foyer
In-law Suite
Laundry 1st Fl
Mud Room
Garage Location
Side
Garage Options
Attached
3,373 Ft
2
Total Heated
1,683 Ft
2
1st Floor
1,690 Ft
2
2nd Floor
5
Bedrooms
3.5
Bathrooms
3
Garage
2
Stories
88' 2"
Width
33' 2"
Depth
28' 6"
Height
8'-1"' 0"
Main Floor Ceiling
8'-1"' 0"
Upper Floor Ceiling
2x4
Framing
Stick
Roof Framing
10/12
Primary Roof Pitch
Single
Dwelling Number

Unheated Living Space
723 Ft
2
Garage
 

Plan Package Options

 Select Plan Package
$1,025
PDF Bid Set
PDFs NOW!™

Home plans stamped "NOT FOR CONSTRUCTION" for cost estimating and bidding purposes only; a minimum 5 set plan package must be purchased within 90 days for a license to build plan set; a credit will be applied towards your house plan upgrade

$1,025
$1,280
PDF Single Build
PDFs NOW!™

Digital plans emailed to you in PDF format that allows for printing copies and sharing electronically with contractors, subs, decorators, and more. This package includes a license to build the home one time.

$1,280
$1,390
5 Printed Sets

Five Printed Sets of Residential Construction Drawings are typically 24” x 36” documents and come with a license to construct a single residence shipped to a physical address. Keep in mind PDF Plan Packages are our most popular choice which allows you to print as many copies as you need and to electronically send files to your builder, subcontractors, etc.

$1,390
$1,470
8 Printed Sets

Eight Printed Sets of Construction Drawings, typically 24” x 36” documents, with a license to construct a single residence shipped to your physical address. PDF Plan Packages are our most popular choice which allows you to print as many copies as you need and to electronically send files to your builder, subcontractors, bank/mortgage reps, material stores, decorators and more.

$1,470
  Select Foundation Option
  Add-Ons (Optional)
INCLUDED WITH YOUR PURCHASE

Free Ground shipping in the Continental U.S.

FREE

Design consultation with the architect or designer to discuss your plan

Home Building & Product Ideas Organizer

Sub Total
$0
Free Shipping
QUESTIONS OR NEED HELP ORDERING? LIVE CHAT OR CALL US AT 866-214-2242
Plan Packages

Each set of construction documents includes detailed, dimensioned floor plans, basic electric layouts, cross sections, roof details, cabinet layouts and elevations, as well as general IRC specifications. They contain virtually all of the information required to construct your home. The typical plan set does not include any plumbing, HVAC drawings, or engineering stamps due to the wide variety of specific needs, local codes, and climatic conditions. These details and specifications are easily obtained from your builder, contractors, and/or local engineers.

BEST PRICE GUARANTEE

find the same house plan (modifications included!) and package for less on another site, show us the URL and we'll give you the difference plus an additional 5% back.

100% SATISFACTION GUARANTEE

We offer a one-time, 30-day exchange policy for unused, non-electronic plan packages in the event you aren't satisfied with your first selection.

 
 

Plan 3441  Back to plan page

Loading...