Get discounts,
promos, see our
newest plans
and more!
+ 15% off any plan
See terms opt out anytime


No Thanks

Thanks for
signing up!


Use Code:

SIGNUP15

And save 15% off any plan!

Check your email for details.

CLOSE
Search Plans
     
20% Off House Plans Sitewide Ends Tuesday
20% Off House Plans Sitewide Ends Tuesday
20% Off House Plans Sitewide Ends Tuesday

Code: VET20
Sale ends midnight 11/11/2025 PST

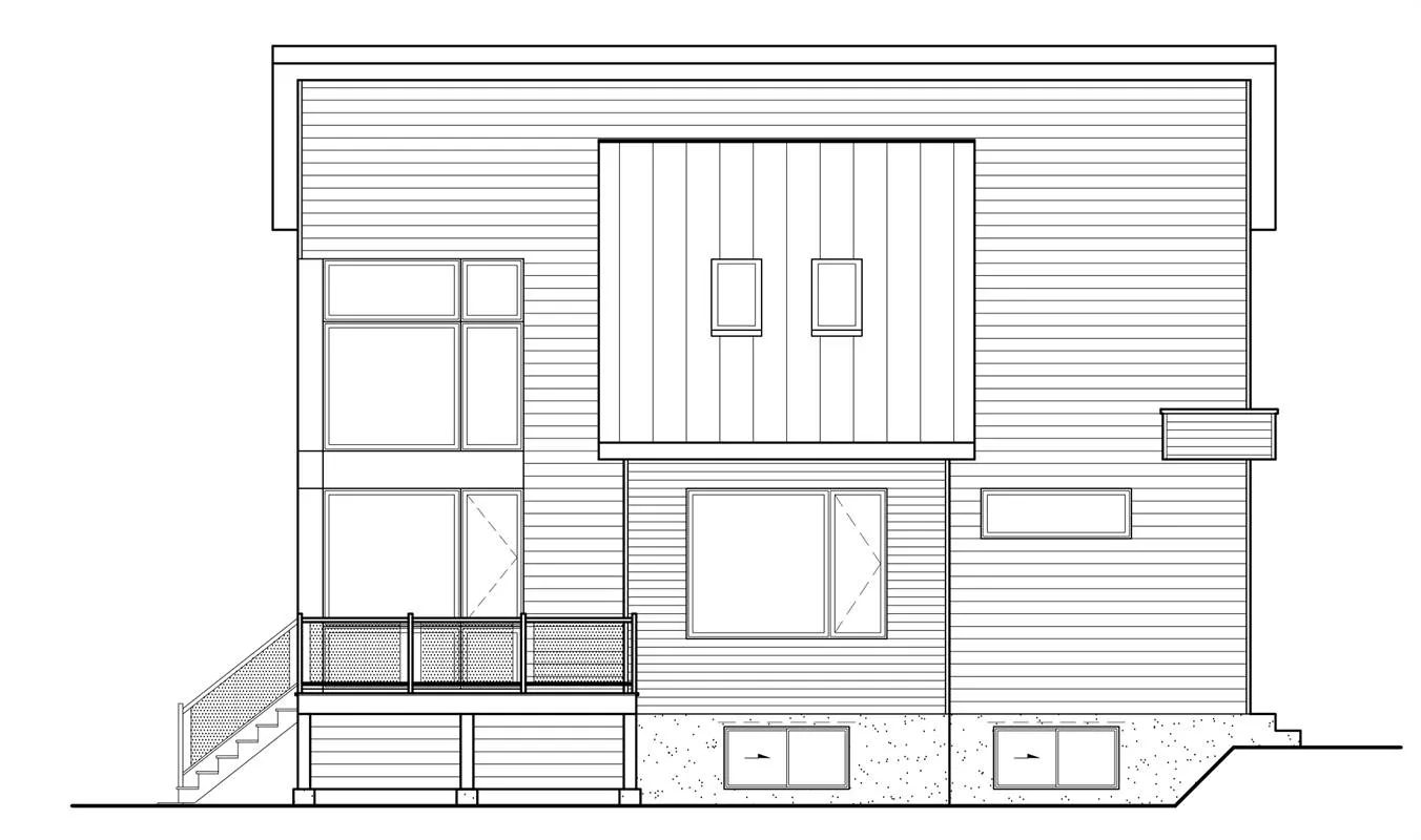
Marina 4 Bedroom Rustic Cottage Style House, Plan 1246

 
 

Sq Ft
1,878 FT²

Beds
4

Baths
2

Stories
2

Garage
0

Depth
38'

Width
40'
On Sale
$776.00
$970.00
© copyright by designer
 View All 9 Images | Photographs may reflect modified home
Sq Ft
1,878 FT²
Beds
4
Baths
2
Stories
2
Garage
0
Depth
38'
Width
40'
 
Click to Zoom In on Floor Plan
© copyright by designer
 
 

About This Plan

This 1,878 sq. ft. two story contemporary Modern Cottage makes great use of unique roof pitches, stunning windows, and quaint terrace to elevate its curb appeal and charm.

Your guests will enter the 4 bedroom, 2 bath home through its modest foyer that’s adjoined to a large coat and storage closet. The main living area’s open concept immediately makes an impression with its 2 story cathedral ceiling, huge windows, a fireplace, and a melded kitchen and dining experience. Guests will enjoy dining al fresco on the terrace while sharing a bottle of wine.

The main level also hosts the master bedroom that has a large walk-in closet and access to the full bath downstairs, complete with a shower. There’s additional space either in the bathroom or in the entry closet for oversized appliances.

Up the stairs you’ll find all 3 secondary bedrooms and the 2nd of the two full bathrooms that is accessed by all in the hallway. There is an additional living / media area that is perfect for a casual family movie night or a great space for any gamers of the family.  

See All Plan Options
 

FEATURES & DETAILS

Kitchen features
Kitchen Island
Walk-in Pantry
Bedroom features
Double Vanity Sink
Primary Bdrm Main Floor
Walk-in Closet
Exterior features
Covered Front Porch
Covered Rear Porch
Lot Options
Suited for view lot
Additional features
Dining Room
Fireplace
Great Room
Laundry 1st Fl
Open Floor Plan
Vaulted Great Room/Living
Garage Location
None
Garage Options
None
1,878 Ft
2
Total Heated
1,078 Ft
2
1st Floor
800 Ft
2
2nd Floor
4
Bedrooms
2
Bathrooms
0
Garage
2
Stories
40' 0"
Width
38' 0"
Depth
30' 0"
Height
9-10' 0"
Main Floor Ceiling
9' 0"
Upper Floor Ceiling
2x6
Framing
Truss
Roof Framing
4:12
Primary Roof Pitch
4:12
Secondary Roof Pitch
Single
Dwelling Number

Unheated Living Space
 

Plan Package Options

 Select Plan Package
Sale: $776
PDF Single Build
$970

Digital plans emailed to you in PDF format that allows for printing copies and sharing electronically with contractors, subs, decorators, and more. This package includes a license to build the home one time.

Sale: $776
Sale: $812
5 Printed Sets
$1,015

Five Printed Sets of Residential Construction Drawings are typically 24” x 36” documents and come with a license to construct a single residence shipped to a physical address. Keep in mind PDF Plan Packages are our most popular choice which allows you to print as many copies as you need and to electronically send files to your builder, subcontractors, etc.

Sale: $812
Sale: $888
5 Printed Sets + PDF
$1,110

Digital plan emailed to you in PDF format that allows for printing copies on a home printer or local print shop and sharing with contractors, subs, decorators, and more. PLUS five printed sets shipped and delivered 3-5 business days.

Sale: $888
Sale: $1,592
CAD + PDF Single Build
$1,990

CAD files are a complete set of construction drawings delivered electronically. They can be used for any type of modification—including major design changes and engineering—and include a release granting permission to modify the plan. Most CAD plan orders are emailed the same or next business day.
 
This package also comes with a PDF set of plans and a copyright release for making modifications and printing unlimited copies.
 
CAD files are provided in .dwg format. For details on the specific CAD program used, please refer to the PLAN DETAILS section located above the floor plan on each plan’s page.

Sale: $1,592
 Need To Reverse Plan? (Optional)
$150
Readable Reverse

Reverse house plans with readable text and dimensions 

$150
  Select Foundation Option
  Add-Ons (Optional)
INCLUDED WITH YOUR PURCHASE

Free Ground shipping in the Continental U.S.

FREE

Design consultation with the architect or designer to discuss your plan

Home Building & Product Ideas Organizer

Sub Total
$0
Free Shipping
Provinces of Québec and Ontario only: Purchasable options are 5 printed sets or 8 printed sets. PDF file and CAD file options are unavailable.
QUESTIONS OR NEED HELP ORDERING? LIVE CHAT OR CALL US AT 866-214-2242
Plan Packages

Each set of construction documents includes detailed, dimensioned floor plans, basic electric layouts, cross sections, roof details, cabinet layouts and elevations, as well as general IRC specifications. They contain virtually all of the information required to construct your home. The typical plan set does not include any plumbing, HVAC drawings, or engineering stamps due to the wide variety of specific needs, local codes, and climatic conditions. These details and specifications are easily obtained from your builder, contractors, and/or local engineers.

BEST PRICE GUARANTEE

find the same house plan (modifications included!) and package for less on another site, show us the URL and we'll give you the difference plus an additional 5% back.

100% SATISFACTION GUARANTEE

We offer a one-time, 30-day exchange policy for unused, non-electronic plan packages in the event you aren't satisfied with your first selection.

 
 

Plan 1246  Back to plan page

Loading...