Get discounts,
promos, see our
newest plans
and more!
+ 15% off any plan
See terms opt out anytime


No Thanks

Thanks for
signing up!


Use Code:

SIGNUP15

And save 15% off any plan!

Check your email for details.

CLOSE
Search Plans
Customer Reviews
     
15% off ALL House Plans Sitewide
15% off ALL House Plans Sitewide
15% off ALL House Plans Sitewide

Code: HONOR
Sale ends midnight 5/31/2026 PST

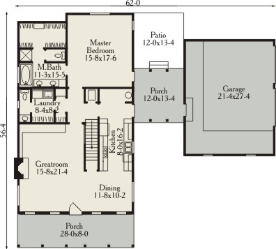
Sq Ft
1,887 FT²

Beds
3

Baths
2.5

Stories
1.5

Garage
2

Depth
56' 4"

Width
62'
On Sale
$1,113.50
$1,310.00
© copyright by designer
 View All 5 Images | Photographs may reflect modified home
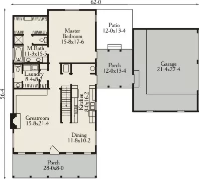
Sq Ft
1,887 FT²
Beds
3
Baths
2.5
Stories
1.5
Garage
2
Depth
56' 4"
Width
62'
 
Click to Zoom In on Floor Plan
© copyright by designer
 
 

About This Plan

The open living room is warmed by a cozy wood burning fireplace adjacent to a built-in corner bookcase and cabinet area. A galley kitchen with ample counter space is close by. The large master suite completes the rear of the home. Upstairs provides the perfect space for children; two bedrooms with large closets, full bath, study loft, and future storage area. 

See All Plan Options
 

FEATURES & DETAILS

Bedroom features
Double Vanity Sink
Primary Bdrm Main Floor
Separate Tub and Shower
Split Bedrooms
Walk-in Closet
Exterior features
Breezeway
Covered Front Porch
Foundation Options
Basement
Crawlspace
Slab
Additional features
Fireplace
Great Room
Laundry 1st Fl
Unfinished Space
Garage Location
Side
Garage Options
Detached
Side-entry
1,887 Ft
2
Total Heated
1,330 Ft
2
1st Floor
557 Ft
2
2nd Floor
3
Bedrooms
2.5
Bathrooms
2
Garage
1.5
Stories
62' 0"
Width
56' 4"
Depth
22' 0"
Height
9' 0"
Main Floor Ceiling
8' 0"
Upper Floor Ceiling
2x4
Framing
Stick
Roof Framing
10/12
Primary Roof Pitch
Single
Dwelling Number
None
Bonus Access

Unheated Living Space
616 Ft
2
Garage
380 Ft
2
Porch
 

Plan Package Options

 Select Plan Package
  Select Foundation Option
  Add-Ons (Optional)
INCLUDED WITH YOUR PURCHASE

Free Ground shipping in the U.S.

FREE

Home Building & Product Ideas Organizer

Sub Total
$0
Free Shipping
QUESTIONS OR NEED HELP ORDERING? LIVE CHAT OR CALL US AT 866-214-2242
Plan Packages

Each set of construction documents typically includes detailed, dimensioned floor plans, basic electric layouts, cross sections, roof details, cabinet layouts, and elevations, as well as general IRC specifications. Please refer to the ARCHITECT or DESIGNER’S PLAN DETAILS link above the floor plan on any plan page to determine the specific details for each plan. Our house plans contain virtually all of the information required to construct your home. The typical plan set does not include plumbing, HVAC drawings, or engineering stamps due to the wide variety of specific needs, local codes, and climatic conditions. These details and specifications are easily obtained from your builder, contractors, and/or local engineers.

BEST PRICE GUARANTEE

Find the same house plan (modifications included!) and package for less on another site, show us the URL and we'll give you the difference plus an additional 10% back.

100% SATISFACTION GUARANTEE

We offer a one-time, 30-day exchange policy for unused, printed plan packages in the event you aren't satisfied with your first selection.

 
 

Plan 3471  Back to plan page

Loading...