Get discounts,
promos, see our
newest plans
and more!
+ 15% off any plan
See terms opt out anytime


No Thanks

Thanks for
signing up!


Use Code:

SIGNUP15

And save 15% off any plan!

Check your email for details.

CLOSE
Search Plans
Customer Reviews
     
22% Off House Plans Sitewide Ends Sunday
22% Off House Plans Sitewide Ends Sunday
22% Off House Plans Sitewide Ends Sunday

Code: SAVE22
Sale ends midnight 12/7/2025 PST

Levis 3 Bedroom Cottage Style House, Plan 9584

 
 

Sq Ft
1,498 FT²

Beds
3

Baths
2

Stories
2

Garage
0

Depth
34'

Width
32'
On Sale
$1,177.80
$1,510.00
© copyright by designer
 View All 7 Images | Photographs may reflect modified home
Sq Ft
1,498 FT²
Beds
3
Baths
2
Stories
2
Garage
0
Depth
34'
Width
32'
 
Click to Zoom In on Floor Plan
© copyright by designer
 
 

About This Plan

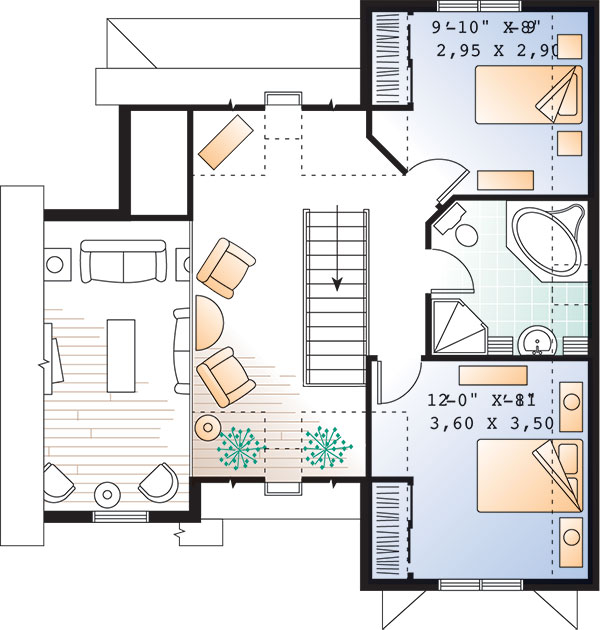
A sharp elegant roof-line highlights this cottage style plan. Beautiful windows and ornate finishes make this home a great option as a lake or mountain home, capable of being a vacation or year-round dwelling. With 1,498 square feet, 3 bedrooms, and 2 bathrooms, this 2-story plan has ample space and countless ways to enhance your enjoyment of your surroundings. The front door opens on to the foyer and its private air-lock design. The space then gives way to the living room and sitting area, which is bathed in natural light and stunning views, thanks to the massive windows on every wall. Access to the rear porch and outdoor living space is found via the double French doors off of the living room. Directly attached is an eat-in kitchen with plenty of space, as well as a bedroom and full bathroom. The second level of this home looks down on the living room below, giving the home an open and airy feel. Two more bedrooms and a shared full bathroom are also found on the second floor, as well as a secondary family room and sitting area. Gorgeous views surround this home and create a tranquil feeling from the moment that you enter. 

See All Plan Options
 

FEATURES & DETAILS

Bedroom features
His and Hers Primary Closets
Primary Bdrm Main Floor
Split Bedrooms
Walk-in Closet
Exterior features
Covered Front Porch
Deck
Front Porch
Rear Porch
Foundation Options
Basement
Crawlspace
Slab
Lot Options
Suited for narrow lot
Suited for view lot
Additional features
Family Room
Foyer
Great Room
Loft / Balcony
Mud Room
Unfinished Space
Vaulted Ceilings
Garage Location
None
Garage Options
None
1,498 Ft
2
Total Heated
853 Ft
2
1st Floor
645 Ft
2
2nd Floor
3
Bedrooms
2
Bathrooms
0
Garage
2
Stories
32' 0"
Width
34' 0"
Depth
30' 8"
Height
8' 0"
Main Floor Ceiling
8' 0"
Upper Floor Ceiling
2x6
Framing
Truss
Roof Framing
14/12
Primary Roof Pitch
24/12
Secondary Roof Pitch
9/12
Teritary Roof Pitch
9/12
Porch Roof Pitch
Single
Dwelling Number
None
Bonus Access

Unheated Living Space
 

Plan Package Options

 Select Plan Package
Sale: $1,178
PDF Single Build
$1,510

Digital plans emailed to you in PDF format that allows for printing copies and sharing electronically with contractors, subs, decorators, and more. This package includes a license to build the home one time.

Sale: $1,178
Sale: $1,287
3 sets + PDF
$1,650
Please allow 3-5 days for delivery
Sale: $1,287
Sale: $1,958
CAD + PDF Single Build
$2,510

CAD files are a complete set of construction drawings delivered electronically. They can be used for any type of modification—including major design changes and engineering—and include a release granting permission to modify the plan. Most CAD plan orders are emailed the same or next business day.
 
This package also comes with a PDF set of plans and a copyright release for making modifications and printing unlimited copies.
 
CAD files are provided in .dwg format. For details on the specific CAD program used, please refer to the PLAN DETAILS section located above the floor plan on each plan’s page.

Sale: $1,958
 Need To Reverse Plan? (Optional)
$265
Readable Reverse

Reverse house plans with readable text and dimensions 

$265
  Select Foundation Option
  Add-Ons (Optional)
INCLUDED WITH YOUR PURCHASE

Free Ground shipping in the Continental U.S.

FREE

Design consultation with the architect or designer to discuss your plan

Home Building & Product Ideas Organizer

Sub Total
$0
Free Shipping
Please allow 3-5 business days for delivery of this plan Please check our PDFs NOW collection for plans that can be downloaded and received immediately or live chat us to help you find a similar plan available now.
QUESTIONS OR NEED HELP ORDERING? LIVE CHAT OR CALL US AT 866-214-2242
Plan Packages

Each set of construction documents includes detailed, dimensioned floor plans, basic electric layouts, cross sections, roof details, cabinet layouts and elevations, as well as general IRC specifications. They contain virtually all of the information required to construct your home. The typical plan set does not include any plumbing, HVAC drawings, or engineering stamps due to the wide variety of specific needs, local codes, and climatic conditions. These details and specifications are easily obtained from your builder, contractors, and/or local engineers.

BEST PRICE GUARANTEE

find the same house plan (modifications included!) and package for less on another site, show us the URL and we'll give you the difference plus an additional 5% back.

100% SATISFACTION GUARANTEE

We offer a one-time, 30-day exchange policy for unused, non-electronic plan packages in the event you aren't satisfied with your first selection.

 
 

Plan 9584  Back to plan page

Loading...