Get discounts,
promos, see our
newest plans
and more!
+ 15% off any plan
See terms opt out anytime


No Thanks

Thanks for
signing up!


Use Code:

SIGNUP15

And save 15% off any plan!

Check your email for details.

CLOSE
Search Plans
Customer Reviews
     
15% off ALL House Plans Sitewide
15% off ALL House Plans Sitewide
15% off ALL House Plans Sitewide

Code: HONOR
Sale ends midnight 5/31/2026 PST

Sq Ft
1,428 FT²

Beds
3

Baths
2

Stories
1.5

Garage
1

Depth
35' 6"

Width
44'
On Sale
$884.00
$1,040.00
© copyright by architect
 View All 7 Images | Photographs may reflect modified home
Sq Ft
1,428 FT²
Beds
3
Baths
2
Stories
1.5
Garage
1
Depth
35' 6"
Width
44'
 
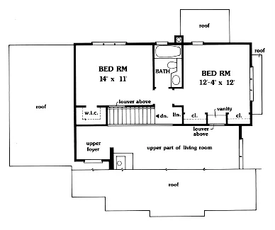
Click to Zoom In on Floor Plan
© copyright by architect
 
 

About This Plan

This contemporary, airy design features a sunny deck that spans one side of the home, making it the perfect weekend retreat or starter home. Its narrow dimensions make it the right choice for a smaller lot.
Sliding glass doors from the deck access the living room, which features a spacious sloped ceiling and a toasty woodstove. The nearby eat-in kitchen also has deck access. A first-floor bedroom has easy access to a full bath. Upstairs, two more bedrooms share another full bath. 

See All Plan Options
 

FEATURES & DETAILS

Kitchen features
Country Kitchen
Nook / Breakfast Area
Bedroom features
Primary Bdrm Main Floor
Exterior features
Covered Front Porch
Deck
Foundation Options
Basement
Crawlspace
Slab
Lot Options
Suited for narrow lot
Suited for view lot
Additional features
Fireplace
Foyer
Great Room
Laundry 1st Fl
Loft / Balcony
Mud Room
Vaulted Ceilings
Garage Location
Side
Garage Options
Attached
Front-entry
1,428 Ft
2
Total Heated
963 Ft
2
1st Floor
465 Ft
2
2nd Floor
3
Bedrooms
2
Bathrooms
1
Garage
1.5
Stories
44' 0"
Width
35' 6"
Depth
25' 0"
Height
8.1' 0"
Main Floor Ceiling
8.1' 0"
Upper Floor Ceiling
2x6
Framing
Stick
Roof Framing
7/12
Primary Roof Pitch
Single
Dwelling Number

Unheated Living Space
234 Ft
2
Garage
319 Ft
2
Deck
 

Plan Package Options

 Select Plan Package
  Select Foundation Option
  Add-Ons (Optional)
INCLUDED WITH YOUR PURCHASE

Free Ground shipping in the U.S.

FREE

Home Building & Product Ideas Organizer

Sub Total
$0
Free Shipping
QUESTIONS OR NEED HELP ORDERING? LIVE CHAT OR CALL US AT 866-214-2242
Plan Packages

Each set of construction documents typically includes detailed, dimensioned floor plans, basic electric layouts, cross sections, roof details, cabinet layouts, and elevations, as well as general IRC specifications. Please refer to the ARCHITECT or DESIGNER’S PLAN DETAILS link above the floor plan on any plan page to determine the specific details for each plan. Our house plans contain virtually all of the information required to construct your home. The typical plan set does not include plumbing, HVAC drawings, or engineering stamps due to the wide variety of specific needs, local codes, and climatic conditions. These details and specifications are easily obtained from your builder, contractors, and/or local engineers.

BEST PRICE GUARANTEE

Find the same house plan (modifications included!) and package for less on another site, show us the URL and we'll give you the difference plus an additional 10% back.

100% SATISFACTION GUARANTEE

We offer a one-time, 30-day exchange policy for unused, printed plan packages in the event you aren't satisfied with your first selection.

 
 

Plan 3874  Back to plan page

Loading...