Get discounts,
promos, see our
newest plans
and more!
+ 15% off any plan
See terms opt out anytime


No Thanks

Thanks for
signing up!


Use Code:

SIGNUP15

And save 15% off any plan!

Check your email for details.

CLOSE
Search Plans
     

Sq Ft
1,302 FT²

Beds
2

Baths
1.5

Stories
2

Garage
1

Depth
40'

Width
28' 4"
From
$1,440.00
© copyright by designer
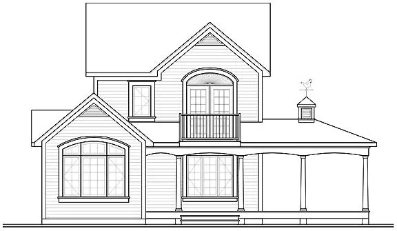
 View All 9 Images | Photographs may reflect modified home
Sq Ft
1,302 FT²
Beds
2
Baths
1.5
Stories
2
Garage
1
Depth
40'
Width
28' 4"
 
Click to Zoom In on Floor Plan
© copyright by designer
 
 

About This Plan

This lovely farmhouse design offers an open concept, with the living areas oriented toward the back of the house. You'll appreciate the wraparound porch, which gives you lots of sheltered outdoor space. Inside, the sidelighted foyer includes a handy coat closet. The kitchen's island incorporates a snack bar for three. The cheery dining area is perfect for any meal. You'll notice that this plan has two options, and both come with your order. If you choose two bedrooms, then the living room has an area with a cathedral ceiling by the arched window arrangement. The three-bedroom option adds 36 sq. ft. to the plan. The master bedroom offers French doors to an outdoor balcony.
 

See All Plan Options
 

FEATURES & DETAILS

Kitchen features
Country Kitchen
Kitchen Island
Nook / Breakfast Area
Peninsula / Eating Bar
Bedroom features
Primary Bdrm Upstairs
Separate Tub and Shower
Sitting Area
Walk-in Closet
Exterior features
Covered Front Porch
Covered Rear Porch
Deck
Front Porch
Rear Porch
Screened Porch/Sunroom
Wraparound Porch
Foundation Options
Basement
Crawlspace
Daylight Basement
Lot Options
Suited for corner lot
Suited for narrow lot
Additional features
Dining Room
Family Room
Formal LR
Foyer
Laundry 1st Fl
Loft / Balcony
Mud Room
Vaulted Ceilings
Garage Location
Front
Garage Options
Attached
Front-entry
1,302 Ft
2
Total Heated
714 Ft
2
1st Floor
588 Ft
2
2nd Floor
2
Bedrooms
1.5
Bathrooms
1
Garage
2
Stories
28' 4"
Width
40' 0"
Depth
27' 6"
Height
8' 0"
Main Floor Ceiling
8' 0"
Upper Floor Ceiling
7/12
Primary Roof Pitch
10/12
Secondary Roof Pitch
5/12
Porch Roof Pitch
Single
Dwelling Number
None
Bonus Access

Unheated Living Space
253 Ft
2
Garage
 

Plan Package Options

 Select Plan Package
$1,440
PDF Single Build

Digital plans emailed to you in PDF format that allows for printing copies and sharing electronically with contractors, subs, decorators, and more. This package includes a license to build the home one time.

$1,440
$1,580
3 sets + PDF
Please allow 3-5 days for delivery
$1,580
$2,440
CAD + PDF Single Build

CAD files are a complete set of construction drawings delivered electronically. They can be used for any type of modification—including major design changes and engineering—and include a release granting permission to modify the plan. Most CAD plan orders are emailed the same or next business day.
 
This package also comes with a PDF set of plans and a copyright release for making modifications and printing unlimited copies.
 
CAD files are provided in .dwg format. For details on the specific CAD program used, please refer to the PLAN DETAILS section located above the floor plan on each plan’s page.

$2,440
 Need To Reverse Plan? (Optional)
$250
Readable Reverse

Reverse house plans with readable text and dimensions 

$250
  Select Foundation Option
  Add-Ons (Optional)
INCLUDED WITH YOUR PURCHASE

Free Ground shipping in the Continental U.S.

FREE

Design consultation with the architect or designer to discuss your plan

Home Building & Product Ideas Organizer

Sub Total
$0
Free Shipping
Please allow 3-5 business days for delivery of this plan Please check our PDFs NOW collection for plans that can be downloaded and received immediately or live chat us to help you find a similar plan available now.
QUESTIONS OR NEED HELP ORDERING? LIVE CHAT OR CALL US AT 866-214-2242
Plan Packages

Each set of construction documents includes detailed, dimensioned floor plans, basic electric layouts, cross sections, roof details, cabinet layouts and elevations, as well as general IRC specifications. They contain virtually all of the information required to construct your home. The typical plan set does not include any plumbing, HVAC drawings, or engineering stamps due to the wide variety of specific needs, local codes, and climatic conditions. These details and specifications are easily obtained from your builder, contractors, and/or local engineers.

BEST PRICE GUARANTEE

find the same house plan (modifications included!) and package for less on another site, show us the URL and we'll give you the difference plus an additional 5% back.

100% SATISFACTION GUARANTEE

We offer a one-time, 30-day exchange policy for unused, non-electronic plan packages in the event you aren't satisfied with your first selection.

 
 

Plan 4576  Back to plan page

Loading...