Get discounts,
promos, see our
newest plans
and more!
+ 15% off any plan
See terms opt out anytime


No Thanks

Thanks for
signing up!


Use Code:

SIGNUP15

And save 15% off any plan!

Check your email for details.

CLOSE
Search Plans
Customer Reviews
     
15% Off House Plans Sitewide Ends Sunday

Code: SAVE15
Sale ends midnight 1/11/2026 PST

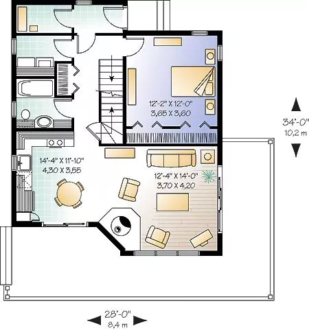
Sq Ft
1,300 FT²

Beds
3

Baths
2

Stories
2

Garage
0

Depth
34'

Width
28'
From
$1,510.00
© copyright by designer
 View All 4 Images | Photographs may reflect modified home
Sq Ft
1,300 FT²
Beds
3
Baths
2
Stories
2
Garage
0
Depth
34'
Width
28'
 
Click to Zoom In on Floor Plan
© copyright by designer
 
 

About This Plan

Contemporary vacation vistas are offered by this striking home plan, which would blend beautifully in a natural setting. With a deck wrapping around two sides, and abundant windows, this home is designed to take advantage of views and provide a stunning vacation getaway or four-season home. Pleasing amenities are located on the efficient main level, including a laundry room, storage space, a full bath and the master bedroom. The open activity area benefits from the warmth of a woodstove and is virtually wrapped in windows with easy access to the expansive deck. Kids or guests will enjoy the mezzanine, with two bedrooms and shared bath and view of the level below. 

See All Plan Options
 

FEATURES & DETAILS

Kitchen features
Country Kitchen
Kitchen Island
Bedroom features
His and Hers Primary Closets
Primary Bdrm Main Floor
Exterior features
Deck
Front Porch
Rear Porch
Wraparound Porch
Foundation Options
Basement
Crawlspace
Daylight Basement
Slab
Lot Options
Suited for narrow lot
Additional features
Dining Room
Fireplace
Formal LR
Foyer
Laundry 1st Fl
Loft / Balcony
Open Floor Plan
Storage Space
Unfinished Space
Vaulted Ceilings
Garage Location
None
Garage Options
None
1,300 Ft
2
Total Heated
849 Ft
2
1st Floor
451 Ft
2
2nd Floor
3
Bedrooms
2
Bathrooms
0
Garage
2
Stories
28' 0"
Width
34' 0"
Depth
28' 9"
Height
8' 0"
Main Floor Ceiling
15.8' 0"
Upper Floor Ceiling
2x6
Framing
Truss
Roof Framing
9/12
Primary Roof Pitch
Single
Dwelling Number
None
Bonus Access

Unheated Living Space
 

Plan Package Options

 Select Plan Package
$1,650
3 Printed Sets + PDF

Includes 3 physical printed blueprints shipped and delivered within 3-5 business days and a copyright release license to construct one home and to make copies. A complimentary PDF plan set is also emailed within 1 business day for easy sharing and local printing. 

$1,650
$1,510
PDF Single Build

Digital plans emailed to you in PDF format that allows for printing copies and sharing electronically with contractors, subs, decorators, and more. This package includes a license to build the home one time.

$1,510
$2,510
CAD + PDF Single Build

This plan package is created in AutoCAD and delivered in .DWG format. CAD files are intended for use by design professionals, structural engineers, and builders to update plans for local building codes or to make revisions based on specific needs, lot requirements, and budget considerations. A complimentary PDF copy is included with this package for reference. CAD packages are delivered within 1 to 2 business days.
 
This package also comes with a copyright release for making revisions and printing unlimited copies.

For details on the specific CAD program used, please refer to the PLAN DETAILS section located above the floor plan on each plan page.

$2,510
 Need To Reverse Plan? (Optional)
$265
Readable Reverse

Reverse house plans with readable text and dimensions 

$265
  Select Foundation Option
  Add-Ons (Optional)
INCLUDED WITH YOUR PURCHASE

Free Ground shipping in the Continental U.S.

FREE

Home Building & Product Ideas Organizer

Sub Total
$0
Free Shipping
Please allow 3-5 business days for delivery of this plan Please check our PDFs NOW collection for plans that can be downloaded and received immediately or live chat us to help you find a similar plan available now.
QUESTIONS OR NEED HELP ORDERING? LIVE CHAT OR CALL US AT 866-214-2242
Plan Packages

Each set of construction documents includes detailed, dimensioned floor plans, basic electric layouts, cross sections, roof details, cabinet layouts and elevations, as well as general IRC specifications. They contain virtually all of the information required to construct your home. The typical plan set does not include any plumbing, HVAC drawings, or engineering stamps due to the wide variety of specific needs, local codes, and climatic conditions. These details and specifications are easily obtained from your builder, contractors, and/or local engineers.

BEST PRICE GUARANTEE

Find the same house plan (modifications included!) and package for less on another site, show us the URL and we'll give you the difference plus an additional 5% back.

100% SATISFACTION GUARANTEE

We offer a one-time, 30-day exchange policy for unused, printed plan packages in the event you aren't satisfied with your first selection. Exchanges are subject to a 20% restocking fee.

 
 

Plan 4672  Back to plan page

Loading...