Get discounts,
promos, see our
newest plans
and more!
+ 15% off any plan
See terms opt out anytime


No Thanks

Thanks for
signing up!


Use Code:

SIGNUP15

And save 15% off any plan!

Check your email for details.

CLOSE
Search Plans
Customer Reviews
     
15% off ALL House Plans Sitewide
15% off ALL House Plans Sitewide
15% off ALL House Plans Sitewide

Code: HONOR
Sale ends midnight 5/29/2026 PST

Sq Ft
2,232 FT²

Beds
3

Baths
2.5

Stories
1.5

Garage
2

Depth
38'

Width
74' 4"
On Sale
$884.00
$1,040.00
EXCLUSIVE PLAN
© copyright by architect
 View All 6 Images | Photographs may reflect modified home
Sq Ft
2,232 FT²
Beds
3
Baths
2.5
Stories
1.5
Garage
2
Depth
38'
Width
74' 4"
 
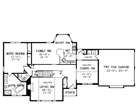
Click to Zoom In on Floor Plan
© copyright by architect
 
 

About This Plan

The large window wall is the eye-catcher of this front, but it is equally dramatic inside. A georgeous cathedral ceiling tops the great room, where these windows are located and a cheery fireplace resides. The family room unfolds to a bayed breakfast room and a walk-through kitchen. The spacious first floor master bedroom hosts a very dramatic angled bath with a skylight in its' cathedral ceiling. 

See All Plan Options
 

FEATURES & DETAILS

Kitchen features
Country Kitchen
Nook / Breakfast Area
Bedroom features
Double Vanity Sink
Primary Bdrm Main Floor
Separate Tub and Shower
Exterior features
Front Porch
Foundation Options
Basement
Crawlspace
Slab
Additional features
Dining Room
Family Room
Fireplace
Formal LR
Laundry 1st Fl
Mud Room
Vaulted Ceilings
Garage Location
Side
Garage Options
Attached
2,232 Ft
2
Total Heated
1,582 Ft
2
1st Floor
650 Ft
2
2nd Floor
3
Bedrooms
2.5
Bathrooms
2
Garage
1.5
Stories
74' 4"
Width
38' 0"
Depth
25' 6"
Height
8'-1"' 0"
Main Floor Ceiling
8'-1"' 0"
Upper Floor Ceiling
2x6
Framing
Stick
Roof Framing
12/12
Primary Roof Pitch
Single
Dwelling Number

Unheated Living Space
436 Ft
2
Garage
 

Plan Package Options

 Select Plan Package
  Select Foundation Option
  Add-Ons (Optional)
INCLUDED WITH YOUR PURCHASE

Free Ground shipping in the U.S.

FREE

Home Building & Product Ideas Organizer

Sub Total
$0
Free Shipping
QUESTIONS OR NEED HELP ORDERING? LIVE CHAT OR CALL US AT 866-214-2242
Plan Packages

Each set of construction documents typically includes detailed, dimensioned floor plans, basic electric layouts, cross sections, roof details, cabinet layouts, and elevations, as well as general IRC specifications. Please refer to the ARCHITECT or DESIGNER’S PLAN DETAILS link above the floor plan on any plan page to determine the specific details for each plan. Our house plans contain virtually all of the information required to construct your home. The typical plan set does not include plumbing, HVAC drawings, or engineering stamps due to the wide variety of specific needs, local codes, and climatic conditions. These details and specifications are easily obtained from your builder, contractors, and/or local engineers.

BEST PRICE GUARANTEE

Find the same house plan (modifications included!) and package for less on another site, show us the URL and we'll give you the difference plus an additional 10% back.

100% SATISFACTION GUARANTEE

We offer a one-time, 30-day exchange policy for unused, printed plan packages in the event you aren't satisfied with your first selection.

 
 

Plan 3385  Back to plan page

Loading...