Get discounts,
promos, see our
newest plans
and more!
+ 15% off any plan
See terms opt out anytime


No Thanks

Thanks for
signing up!


Use Code:

SIGNUP15

And save 15% off any plan!

Check your email for details.

CLOSE
Search Plans
Customer Reviews
     
15% off ALL House Plans Sitewide
15% off ALL House Plans Sitewide
15% off ALL House Plans Sitewide

Code: HONOR
Sale ends midnight 5/31/2026 PST

Sq Ft
2,809 FT²

Beds
4

Baths
2.5

Stories
1.5

Garage
2

Depth
44' 2"

Width
56' 4"
On Sale
$994.50
$1,170.00
© copyright by architect
 View All 7 Images | Photographs may reflect modified home
Sq Ft
2,809 FT²
Beds
4
Baths
2.5
Stories
1.5
Garage
2
Depth
44' 2"
Width
56' 4"
 
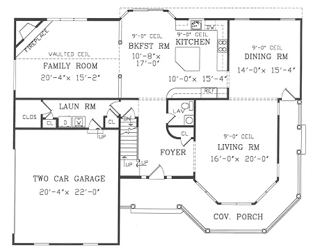
Click to Zoom In on Floor Plan
© copyright by architect
 
 

About This Plan

A smattering of Victorian touches, such as the wrap around porch and angle bay front element impart the charm to this lovely home. Inside I provide a dramatic and exciting floor plan, that lives and furnishes beautifully. A stunning two story high entrance foyer leads to a huge formal entertaining space which dominates the right side of the foyer; the dining room is readily expanded into the living room for those occasional functions where more table space is needed.The rear of the main floor is devoted to a flowing informal family living area. The master suite includes a beautifol bay front bedroom, with a vaulted ceiling. 

See All Plan Options
 

FEATURES & DETAILS

Kitchen features
Country Kitchen
Kitchen Island
Nook / Breakfast Area
Bedroom features
Double Vanity Sink
His and Hers Primary Closets
Primary Bdrm Upstairs
Separate Tub and Shower
Sitting Area
Walk-in Closet
Exterior features
Covered Front Porch
Wraparound Porch
Foundation Options
Basement
Crawlspace
Additional features
2 Story Volume
Dining Room
Family Room
Fireplace
Formal LR
Laundry 1st Fl
Loft / Balcony
Storage Space
Vaulted Ceilings
Garage Location
Side
Garage Options
Attached
2,809 Ft
2
Total Heated
1,551 Ft
2
1st Floor
1,258 Ft
2
2nd Floor
4
Bedrooms
2.5
Bathrooms
2
Garage
1.5
Stories
56' 4"
Width
44' 2"
Depth
27' 1"
Height
9'-1"' 0"
Main Floor Ceiling
8'-1"' 0"
Upper Floor Ceiling
2x4
Framing
Stick
Roof Framing
11/12
Primary Roof Pitch
Single
Dwelling Number

Unheated Living Space
494 Ft
2
Garage
286 Ft
2
Porch
 

Plan Package Options

 Select Plan Package
 Need To Reverse Plan? (Optional)
  Select Foundation Option
  Add-Ons (Optional)
INCLUDED WITH YOUR PURCHASE

Free Ground shipping in the U.S.

FREE

Home Building & Product Ideas Organizer

Sub Total
$0
Free Shipping
QUESTIONS OR NEED HELP ORDERING? LIVE CHAT OR CALL US AT 866-214-2242
Plan Packages

Each set of construction documents typically includes detailed, dimensioned floor plans, basic electric layouts, cross sections, roof details, cabinet layouts, and elevations, as well as general IRC specifications. Please refer to the ARCHITECT or DESIGNER’S PLAN DETAILS link above the floor plan on any plan page to determine the specific details for each plan. Our house plans contain virtually all of the information required to construct your home. The typical plan set does not include plumbing, HVAC drawings, or engineering stamps due to the wide variety of specific needs, local codes, and climatic conditions. These details and specifications are easily obtained from your builder, contractors, and/or local engineers.

BEST PRICE GUARANTEE

Find the same house plan (modifications included!) and package for less on another site, show us the URL and we'll give you the difference plus an additional 10% back.

100% SATISFACTION GUARANTEE

We offer a one-time, 30-day exchange policy for unused, printed plan packages in the event you aren't satisfied with your first selection.

 
 

Plan 3706  Back to plan page

Loading...