Get discounts,
promos, see our
newest plans
and more!
+ 15% off any plan
See terms opt out anytime


No Thanks

Thanks for
signing up!


Use Code:

SIGNUP15

And save 15% off any plan!

Check your email for details.

CLOSE
Search Plans
     
15% Off House Plans Sitewide Ends Sunday
15% Off House Plans Sitewide Ends Sunday
15% Off House Plans Sitewide Ends Sunday

Code: SAVE15
Sale ends midnight 11/16/2025 PST

Sq Ft
2,705 FT²

Beds
5

Baths
3.5

Stories
1.5

Garage
2

Depth
47'

Width
78'
On Sale
$637.50
$750.00
© copyright by designer
 View All 5 Images | Photographs may reflect modified home
Sq Ft
2,705 FT²
Beds
5
Baths
3.5
Stories
1.5
Garage
2
Depth
47'
Width
78'
 
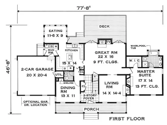
Click to Zoom In on Floor Plan
© copyright by designer
 
 

About This Plan

A wide covered porch, arched windows and symmetrical lines of this traditional home conceal the modern, innovative floor plan.The great room with fireplace and media wall is the center of this home. The main floor includes 9 ft. ceilings.
The master bedroom includes a 13 ft. high cathedral ceiling and a garden tub bath. 

See All Plan Options
 

FEATURES & DETAILS

Foundation Options
Basement
Crawlspace
Daylight Basement
Slab
Garage Location
Under
Garage Options
Attached
2,705 Ft
2
Total Heated
1,735 Ft
2
1st Floor
970 Ft
2
2nd Floor
5
Bedrooms
3.5
Bathrooms
2
Garage
1.5
Stories
78' 0"
Width
47' 0"
Depth
9' 0"
Main Floor Ceiling
8' 0"
Upper Floor Ceiling
2x4 or 2x6
Framing
Stick
Roof Framing
8/12
Primary Roof Pitch
Single
Dwelling Number

Unheated Living Space
400 Ft
2
Garage
Exterior Styles
 

Plan Package Options

 Select Plan Package
Sale: $638
4 Printed Sets
$750

Four printed sets of construction drawings shipped and received in 3-5 business days

Sale: $638
Sale: $675
PDF Single Build
$794

PDFs NOW!™

Digital plans emailed to you in PDF format that allows for printing copies and sharing electronically with contractors, subs, decorators, and more. This package includes a license to build the home one time.

Sale: $675
Sale: $710
8 Printed Sets
$835

Eight Printed Sets of Construction Drawings, typically 24” x 36” documents, with a license to construct a single residence shipped to your physical address. PDF Plan Packages are our most popular choice which allows you to print as many copies as you need and to electronically send files to your builder, subcontractors, bank/mortgage reps, material stores, decorators and more.

Sale: $710
  Select Foundation Option
  Add-Ons (Optional)
INCLUDED WITH YOUR PURCHASE

Free Ground shipping in the Continental U.S.

FREE

Design consultation with the architect or designer to discuss your plan

Home Building & Product Ideas Organizer

Sub Total
$0
Free Shipping
QUESTIONS OR NEED HELP ORDERING? LIVE CHAT OR CALL US AT 866-214-2242
Plan Packages

Each set of construction documents includes detailed, dimensioned floor plans, basic electric layouts, cross sections, roof details, cabinet layouts and elevations, as well as general IRC specifications. They contain virtually all of the information required to construct your home. The typical plan set does not include any plumbing, HVAC drawings, or engineering stamps due to the wide variety of specific needs, local codes, and climatic conditions. These details and specifications are easily obtained from your builder, contractors, and/or local engineers.

BEST PRICE GUARANTEE

find the same house plan (modifications included!) and package for less on another site, show us the URL and we'll give you the difference plus an additional 5% back.

100% SATISFACTION GUARANTEE

We offer a one-time, 30-day exchange policy for unused, non-electronic plan packages in the event you aren't satisfied with your first selection.

 
 

Plan 5624  Back to plan page

Loading...