Get discounts,
promos, see our
newest plans
and more!
+ 15% off any plan
See terms opt out anytime


No Thanks

Thanks for
signing up!


Use Code:

SIGNUP15

And save 15% off any plan!

Check your email for details.

CLOSE
Search Plans
Customer Reviews
     
22% Off House Plans Sitewide Ends Sunday

Code: SAVE22
Sale ends midnight 12/7/2025 PST

Sq Ft
2,000 FT²

Beds
4

Baths
2.5

Stories
1

Garage
2

Depth
55' 8"

Width
68'
From
$1,400.00
© copyright by designer
 View All 10 Images | Photographs may reflect modified home
Sq Ft
2,000 FT²
Beds
4
Baths
2.5
Stories
1
Garage
2
Depth
55' 8"
Width
68'
 
Click to Zoom In on Floor Plan
© copyright by designer
 
 

About This Plan

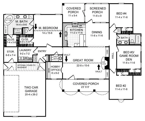
This four-bedroom beauty should fulfill the needs of many with the optional bedroom/game room/den, and the flex space (hobby/office). An open plan, split bedroom layout provides good use of space. The master suite is packed with features including a Jet tub, dual lavatories, oversized shower, his and her walk-in closets, and a vaulted ceiling in the Master Bedroom. Great plan for socializing with friends and family including kitchen raised bar, great room by the gas logs, front porch, rear grilling porch, and even a screened porch. Oversized garage and unheated storage are a plus. The exterior traditional styling with brick and contrasting trim provide an architectural presentation that looks great now and will endure to keep your investment looking great for years to come!
 

See All Plan Options
 

FEATURES & DETAILS

Kitchen features
Country Kitchen
Nook / Breakfast Area
Peninsula / Eating Bar
Bedroom features
His and Hers Primary Closets
Primary Bdrm Main Floor
Separate Tub and Shower
Split Bedrooms
Walk-in Closet
Exterior features
Covered Front Porch
Covered Rear Porch
Front Porch
Rear Porch
Screened Porch/Sunroom
Foundation Options
Basement
Crawlspace
Slab
Walkout Basement
Lot Options
Suited for corner lot
Suited for sloping lot
Suited for view lot
Additional features
Exercise Room
Fireplace
Great Room
Home Office
Laundry 1st Fl
Library/Media Rm
Open Floor Plan
Storage Space
Unfinished Space
Workshop
Garage Location
Side
Garage Options
Attached
Oversized
2,958 Ft
2
Total Structure
2,000 Ft
2
Total Heated
4
Bedrooms
2.5
Bathrooms
2
Garage
1
Stories
68' 0"
Width
55' 8"
Depth
22' 9"
Height
9' 0"
Main Floor Ceiling
2x4
Framing
Stick
Roof Framing
8/12
Primary Roof Pitch
12:12
Dormer Roof Pitch
Single
Dwelling Number
None
Bonus Access

Unheated Living Space
553 Ft
2
Garage
54 Ft
2
Storage
351 Ft
2
Porch
 

Plan Package Options

 Select Plan Package
$1,250
Study Set - Printed
One printed set of house plans stamped NOT FOR CONSTRUCTION". This set is intended for review purposes and are mailed to you. To build from the plans, you need to upgrade to a licensed set.
$1,250
$1,400
PDF Single Build

Digital plans emailed to you in PDF format that allows for printing copies and sharing electronically with contractors, subs, decorators, and more. This package includes a license to build the home one time.

$1,400
$1,500
5 Printed Sets

Five Printed Sets of Residential Construction Drawings are typically 24” x 36” documents and come with a license to construct a single residence shipped to a physical address. Keep in mind PDF Plan Packages are our most popular choice which allows you to print as many copies as you need and to electronically send files to your builder, subcontractors, etc.

$1,500
$1,700
5 Printed Sets + PDF

Digital plan emailed to you in PDF format that allows for printing copies on a home printer or local print shop and sharing with contractors, subs, decorators, and more. PLUS five printed sets shipped and delivered 3-5 business days.

$1,700
$2,100
CAD + PDF Single Build

CAD files are a complete set of construction drawings delivered electronically. They can be used for any type of modification—including major design changes and engineering—and include a release granting permission to modify the plan. Most CAD plan orders are emailed the same or next business day.
 
This package also comes with a PDF set of plans and a copyright release for making modifications and printing unlimited copies.
 
CAD files are provided in .dwg format. For details on the specific CAD program used, please refer to the PLAN DETAILS section located above the floor plan on each plan’s page.

$2,100
 Need To Reverse Plan? (Optional)
$150
Readable Reverse

Reverse house plans with readable text and dimensions 

$150
  Select Foundation Option
  Add-Ons (Optional)
INCLUDED WITH YOUR PURCHASE

Free Ground shipping in the Continental U.S.

FREE

Design consultation with the architect or designer to discuss your plan

Home Building & Product Ideas Organizer

Sub Total
$0
Free Shipping
QUESTIONS OR NEED HELP ORDERING? LIVE CHAT OR CALL US AT 866-214-2242
Plan Packages

Each set of construction documents includes detailed, dimensioned floor plans, basic electric layouts, cross sections, roof details, cabinet layouts and elevations, as well as general IRC specifications. They contain virtually all of the information required to construct your home. The typical plan set does not include any plumbing, HVAC drawings, or engineering stamps due to the wide variety of specific needs, local codes, and climatic conditions. These details and specifications are easily obtained from your builder, contractors, and/or local engineers.

BEST PRICE GUARANTEE

find the same house plan (modifications included!) and package for less on another site, show us the URL and we'll give you the difference plus an additional 5% back.

100% SATISFACTION GUARANTEE

We offer a one-time, 30-day exchange policy for unused, non-electronic plan packages in the event you aren't satisfied with your first selection.

 
 

Plan 5720  Back to plan page

Loading...