Get discounts,
promos, see our
newest plans
and more!
+ 15% off any plan
See terms opt out anytime


No Thanks

Thanks for
signing up!


Use Code:

SIGNUP15

And save 15% off any plan!

Check your email for details.

CLOSE
Search Plans
Customer Reviews
     
15% Off House Plans Sitewide Ends Sunday

Code: SAVE15
Sale ends midnight 1/11/2026 PST

Sq Ft
3,471 FT²

Beds
4

Baths
3.5

Stories
2

Garage
2

Depth
59' 2"

Width
73' 6"
From
$1,750.00
© copyright by designer
 View All 4 Images | Photographs may reflect modified home
Sq Ft
3,471 FT²
Beds
4
Baths
3.5
Stories
2
Garage
2
Depth
59' 2"
Width
73' 6"
 
Click to Zoom In on Floor Plan
© copyright by designer
 
 

About This Plan

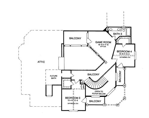
Featuring mirror image gables on both sides, this elevation is stunning from any direction. The Master Suite includes a fireplace situated between the Sitting area and the Master Bedroom. The Gourmet Kitchen with a triangular work island, and large pantry is located on the opposite side of the home. Upstairs, two Bedrooms and a Game Room complete the plan. 

See All Plan Options
 

FEATURES & DETAILS

Kitchen features
Kitchen Island
Nook / Breakfast Area
Walk-in Pantry
Bedroom features
Double Vanity Sink
Guest Suite
His and Hers Primary Closets
Primary Bdrm Main Floor
Separate Tub and Shower
Sitting Area
Walk-in Closet
Exterior features
Covered Front Porch
Covered Rear Porch
Front Porch
Rear Porch
Wraparound Porch
Foundation Options
Basement
Crawlspace
Slab
Lot Options
Suited for corner lot
Additional features
2 Story Volume
Arches
Dining Room
Family Room
Fireplace
Foyer
Great Room
Home Office
Laundry 1st Fl
Loft / Balcony
Open Floor Plan
Rec Room
Storage Space
Unfinished Space
Vaulted Ceilings
Garage Location
Side
Garage Options
Attached
Side-entry
3,471 Ft
2
Total Heated
2,511 Ft
2
1st Floor
960 Ft
2
2nd Floor
4
Bedrooms
3.5
Bathrooms
2
Garage
2
Stories
73' 6"
Width
59' 2"
Depth
34' 0"
Height
10' 0"
Main Floor Ceiling
2x4
Framing
Stick
Roof Framing
12/12
Primary Roof Pitch
Single
Dwelling Number

Unheated Living Space
484 Ft
2
Garage
445 Ft
2
Porch
Exterior Styles
 

Plan Package Options

 Select Plan Package
$2,495
Multi-Use PDF
PDFs NOW!™
Two Builds Only
$2,495
$1,250
PDF Bid Set
PDFs NOW!™

Home plans stamped "NOT FOR CONSTRUCTION" for cost estimating and bidding purposes only; a minimum 5 set plan package must be purchased within 90 days for a license to build plan set; a credit will be applied towards your house plan upgrade

$1,250
$1,750
PDF Single Build
PDFs NOW!™

Digital plans emailed to you in PDF format that allows for printing copies and sharing electronically with contractors, subs, decorators, and more. This package includes a license to build the home one time.

$1,750
$3,250
CAD + PDF Single Build

This plan package is created in AutoCAD and delivered in .DWG format. CAD files are intended for use by design professionals, structural engineers, and builders to update plans for local building codes or to make revisions based on specific needs, lot requirements, and budget considerations. A complimentary PDF copy is included with this package for reference. CAD packages are delivered within 1 to 2 business days.
 
This package also comes with a copyright release for making revisions and printing unlimited copies.

For details on the specific CAD program used, please refer to the PLAN DETAILS section located above the floor plan on each plan page.

$3,250
 Need To Reverse Plan? (Optional)
$375
Readable Reverse

Reverse house plans with readable text and dimensions 

$375
  Select Foundation Option
  Add-Ons (Optional)
INCLUDED WITH YOUR PURCHASE

Free Ground shipping in the Continental U.S.

FREE

Home Building & Product Ideas Organizer

Sub Total
$0
Free Shipping
QUESTIONS OR NEED HELP ORDERING? LIVE CHAT OR CALL US AT 866-214-2242
Plan Packages

Each set of construction documents includes detailed, dimensioned floor plans, basic electric layouts, cross sections, roof details, cabinet layouts and elevations, as well as general IRC specifications. They contain virtually all of the information required to construct your home. The typical plan set does not include any plumbing, HVAC drawings, or engineering stamps due to the wide variety of specific needs, local codes, and climatic conditions. These details and specifications are easily obtained from your builder, contractors, and/or local engineers.

BEST PRICE GUARANTEE

Find the same house plan (modifications included!) and package for less on another site, show us the URL and we'll give you the difference plus an additional 5% back.

100% SATISFACTION GUARANTEE

We offer a one-time, 30-day exchange policy for unused, printed plan packages in the event you aren't satisfied with your first selection. Exchanges are subject to a 20% restocking fee.

 
 

Plan 8407  Back to plan page

Loading...