Get discounts,
promos, see our
newest plans
and more!
+ 15% off any plan
See terms opt out anytime


No Thanks

Thanks for
signing up!


Use Code:

SIGNUP15

And save 15% off any plan!

Check your email for details.

CLOSE
Search Plans
Customer Reviews
     
15% off ALL House Plans Sitewide
15% off ALL House Plans Sitewide
15% off ALL House Plans Sitewide

Code: HONOR
Sale ends midnight 5/31/2026 PST

Sq Ft
1,500 FT²

Beds
3

Baths
2

Stories
1

Garage
2

Depth
46' 6"

Width
50'
On Sale
$1,206.15
$1,419.00
© copyright by designer
 View All 4 Images | Photographs may reflect modified home
Sq Ft
1,500 FT²
Beds
3
Baths
2
Stories
1
Garage
2
Depth
46' 6"
Width
50'
 
Click to Zoom In on Floor Plan
© copyright by designer
 
 

About This Plan

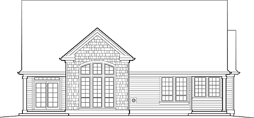
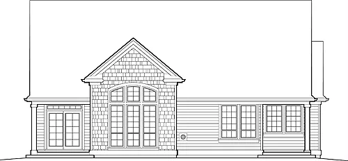
Classic details give this home a clean fresh look. Tall windows adorned with shutters and gables repeat throughout the exterior. The entry boasts a large arched transom above the door casting more light into the home. Offering a smart floor plan for a growing family, rooms are accessible and comfortable making this home is ideal as a starter home. The spacious great room features a large arched window, a fireplace and a built in media center to provide a comfortable setting for the family to gather. A patio door offers access to a rear patio and along with tall windows on the adjacent wall surrounds the dining room with light. The corner kitchen is equipped with ample counter space and a cook top island with a breakfast bar.

The master suite is tucked in the back of the home featuring its own patio - perfect for a private retreat. To complete the home, two additional bedrooms flank the entry. 


See All Plan Options
 

FEATURES & DETAILS

Kitchen features
Country Kitchen
Kitchen Island
Walk-in Pantry
Bedroom features
Double Vanity Sink
Primary Bdrm Main Floor
Split Bedrooms
Exterior features
No Porch
Foundation Options
Basement
Crawlspace
Slab
Lot Options
Suited for narrow lot
Additional features
Fireplace
Foyer
Great Room
Laundry 1st Fl
Open Floor Plan
Vaulted Ceilings
Garage Location
Front
Garage Options
Attached
Front-entry
1,500 Ft
2
Total Heated
1,500 Ft
2
1st Floor
3
Bedrooms
2
Bathrooms
2
Garage
1
Stories
50' 0"
Width
46' 6"
Depth
26' 0"
Height
Varies' 0"
Main Floor Ceiling
2x6
Framing
Truss
Roof Framing
10/12
Primary Roof Pitch
Single
Dwelling Number
None
Bonus Access

Unheated Living Space
442 Ft
2
Garage
40 Ft
2
Patio
 

Plan Package Options

 Select Plan Package
 Need To Reverse Plan? (Optional)
  Select Foundation Option
  Add-Ons (Optional)
INCLUDED WITH YOUR PURCHASE

Free Ground shipping in the U.S.

FREE

Home Building & Product Ideas Organizer

Sub Total
$0
Free Shipping
QUESTIONS OR NEED HELP ORDERING? LIVE CHAT OR CALL US AT 866-214-2242
Plan Packages

Each set of construction documents typically includes detailed, dimensioned floor plans, basic electric layouts, cross sections, roof details, cabinet layouts, and elevations, as well as general IRC specifications. Please refer to the ARCHITECT or DESIGNER’S PLAN DETAILS link above the floor plan on any plan page to determine the specific details for each plan. Our house plans contain virtually all of the information required to construct your home. The typical plan set does not include plumbing, HVAC drawings, or engineering stamps due to the wide variety of specific needs, local codes, and climatic conditions. These details and specifications are easily obtained from your builder, contractors, and/or local engineers.

BEST PRICE GUARANTEE

Find the same house plan (modifications included!) and package for less on another site, show us the URL and we'll give you the difference plus an additional 10% back.

100% SATISFACTION GUARANTEE

We offer a one-time, 30-day exchange policy for unused, printed plan packages in the event you aren't satisfied with your first selection.

 
 

Plan 4323  Back to plan page

Loading...