Get discounts,
promos, see our
newest plans
and more!
+ 15% off any plan
See terms opt out anytime


No Thanks

Thanks for
signing up!


Use Code:

SIGNUP15

And save 15% off any plan!

Check your email for details.

CLOSE
Search Plans
Customer Reviews
     
15% Off House Plans Sitewide Ends Sunday

Code: SAVE15
Sale ends midnight 1/11/2026 PST

Sq Ft
2,087 FT²

Beds
2

Baths
2.5

Stories
3

Garage
2

Depth
80'

Width
31'
From
$1,250.00
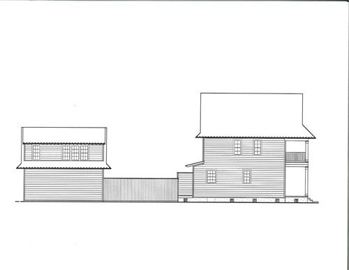
© copyright by designer
 View All 18 Images | Photographs may reflect modified home
Sq Ft
2,087 FT²
Beds
2
Baths
2.5
Stories
3
Garage
2
Depth
80'
Width
31'
 
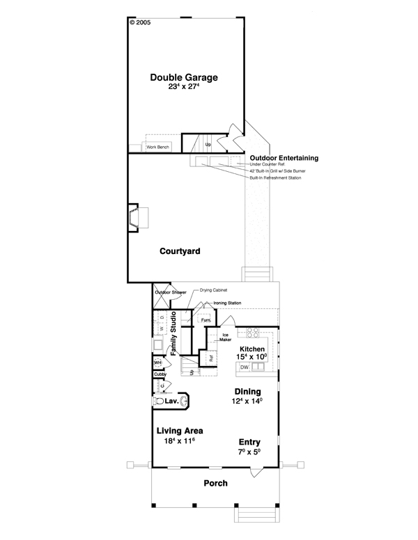
Click to Zoom In on Floor Plan
© copyright by designer
 
 

About This Plan

This narrow beach house is perfect for year round entertaining. Its spacious first floor provides for togetherness incorporating a compact well-appointed kitchen, featuring a Whirlpool Gold appliance package with the open living/dining area.

The first floor Family Studio makes laundry a breeze and handles additional storage for the owner if the house is used as a rental property. Two spacious bedrooms and built in bunk beds for the kids allow two families to share this home without feeling cramped for space. A third floor media room features its own mini bar featuring a Whirlpool icemaker and under counter refrigerator.

The garage features a Gladiator GarageWorks workspace for hobbies while maximizing storage. Above the garage an apartment allows for extra guests to have complete independence from the main house with its own mini Whirlpool kitchen and stackable washer/dryer.

The courtyard between the house and garage creates a perfect outdoor space to bring both living areas together to share food and fun. An outdoor fireplace acts as the focal point. Making everything easy is the KitchenAid Outdoor Kitchen.


 

See All Plan Options
 

FEATURES & DETAILS

Kitchen features
Peninsula / Eating Bar
Bedroom features
Double Vanity Sink
Guest Suite
Primary Bdrm Upstairs
Walk-in Closet
Exterior features
Courtyard
Covered Front Porch
Covered Rear Porch
Deck
Front Porch
Rear Porch
Foundation Options
Basement
Crawlspace
Lot Options
Suited for narrow lot
Suited for view lot
Additional features
Great Room
Laundry 1st Fl
Loft / Balcony
Open Floor Plan
Rec Room
Storage Space
Vaulted Ceilings
Workshop
Garage Location
Rear
Garage Options
Detached
With Living Space
2,087 Ft
2
Total Heated
783 Ft
2
1st Floor
754 Ft
2
2nd Floor
550 Ft
2
3rd Floor
2
Bedrooms
2.5
Bathrooms
2
Garage
3
Stories
31' 0"
Width
80' 0"
Depth
35' 8"
Height
10' 0"
Main Floor Ceiling
9' 0"
Upper Floor Ceiling
2x4
Framing
Stick
Roof Framing
12/12
Primary Roof Pitch
Single
Dwelling Number

Unheated Living Space
672 Ft
2
Garage
416 Ft
2
Porch
132 Ft
2
Deck
616 Ft
2
Bonus Room
 

Plan Package Options

 Select Plan Package
$1,350
5 Printed Sets

Five Printed Sets of Residential Construction Drawings are typically 24” x 36” documents and come with a license to construct a single residence shipped to a physical address. Keep in mind PDF Plan Packages are our most popular choice which allows you to print as many copies as you need and to electronically send files to your builder, subcontractors, etc.

$1,350
$800
PDF Bid Set

Home plans stamped "NOT FOR CONSTRUCTION" for cost estimating and bidding purposes only; a minimum 5 set plan package must be purchased within 90 days for a license to build plan set; a credit will be applied towards your house plan upgrade

$800
$1,250
PDF Single Build

Digital plans emailed to you in PDF format that allows for printing copies and sharing electronically with contractors, subs, decorators, and more. This package includes a license to build the home one time.

$1,250
  Select Foundation Option
  Add-Ons (Optional)
INCLUDED WITH YOUR PURCHASE

Free Ground shipping in the Continental U.S.

FREE

Home Building & Product Ideas Organizer

Sub Total
$0
Free Shipping

Note: Please Contact Designer. Changes are in progress before this plan can be sold.
QUESTIONS OR NEED HELP ORDERING? LIVE CHAT OR CALL US AT 866-214-2242
Plan Packages

Each set of construction documents includes detailed, dimensioned floor plans, basic electric layouts, cross sections, roof details, cabinet layouts and elevations, as well as general IRC specifications. They contain virtually all of the information required to construct your home. The typical plan set does not include any plumbing, HVAC drawings, or engineering stamps due to the wide variety of specific needs, local codes, and climatic conditions. These details and specifications are easily obtained from your builder, contractors, and/or local engineers.

BEST PRICE GUARANTEE

Find the same house plan (modifications included!) and package for less on another site, show us the URL and we'll give you the difference plus an additional 5% back.

100% SATISFACTION GUARANTEE

We offer a one-time, 30-day exchange policy for unused, printed plan packages in the event you aren't satisfied with your first selection. Exchanges are subject to a 20% restocking fee.

 
 

Plan 6267  Back to plan page

Loading...