Get discounts,
promos, see our
newest plans
and more!
+ 15% off any plan
See terms opt out anytime


No Thanks

Thanks for
signing up!


Use Code:

SIGNUP15

And save 15% off any plan!

Check your email for details.

CLOSE
Search Plans
Customer Reviews
     
15% off ALL House Plans Sitewide
15% off ALL House Plans Sitewide
15% off ALL House Plans Sitewide

Code: SAVE15
Sale ends midnight 4/19/2026 PST

Greeley Two Story Modern Farmhouse Style House, Plan 9912

 
 

Sq Ft
2,306 FT²

Beds
3

Baths
3

Stories
2

Garage
2

Depth
49'

Width
68'
On Sale
$1,487.50
$1,750.00
© copyright by designer
 View All 6 Images | Photographs may reflect modified home
Sq Ft
2,306 FT²
Beds
3
Baths
3
Stories
2
Garage
2
Depth
49'
Width
68'
 
Click to Zoom In on Floor Plan
© copyright by designer
 
 

About This Plan

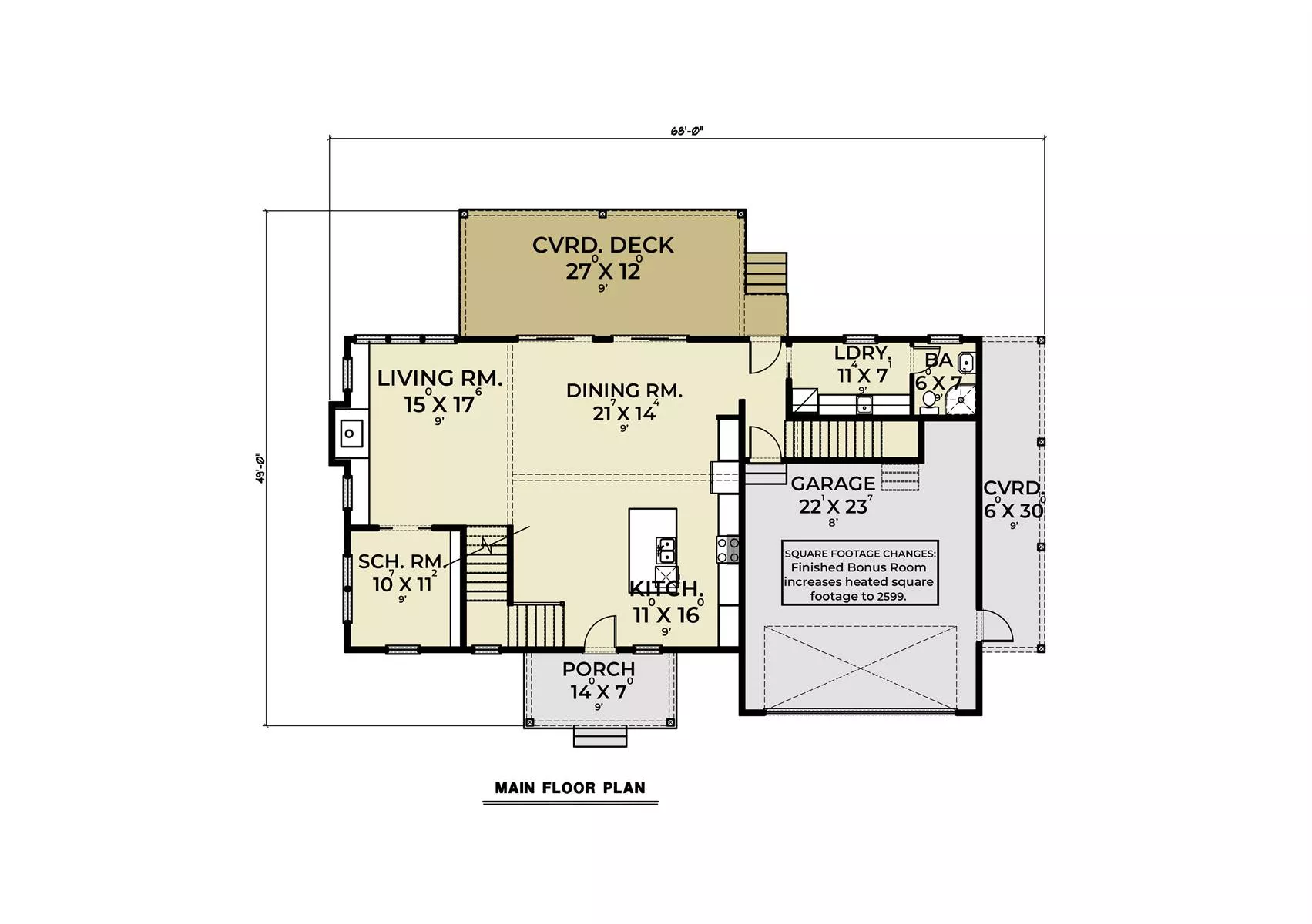
If you are in search of a modern take on a classic farmhouse, this perfectly sized two-story home maximizes its 2,306 square feet perfectly for a family with young children or those contemplating downsizing.

The welcoming shed-roof covered front porch brings guests straight into the heart of the home to an open kitchen that is anchored with an eat-at bar with enough seating for 3-4. It’s a perfect spot to have an ever-full jar of homemade cookies or a relaxing space to share some antipasto with good friends or some late-evening decaf coffee to wind down with your loved ones.

The openness of the dining and living room allows the cook of the home to be a part of any and all family time and aids in enlarging the feel of the space. The glow of the fireplace can be enjoyed by all.

On pleasant weather evenings, what a great way to spend an evening with the two flanked sliding glass doors wide-open for some al fresco dining. Just add some twinkle lights to the large covered patio, and your home is sure to be a place where many memories can be made with friends and family on a weekend night with some good food and a glass of wine.

The flexible room at the front of the home can be used as an office, an art or music space, or even a spare bedroom for guests. Guests can also make use of the convenient 3/4 bath that is tucked away for privacy through the cleverly located laundry room, which also provides outside access and has a utility sink for any backyard work clean-ups.

Upstairs you will find all three bedrooms with the smaller bedrooms sharing a large full bath complete with a shower-tub combo. The master is set-apart with its commanding 10’ vaulted ceiling with two windows flanking the master bed wall for even more of a statement. The large galley master bath has the best of both worlds with a standalone tub, separate shower, and the coveted two sinks on everyone’s list. The walk-in master closet boasts an ample 7x7 shared space.

There is an optional bonus room of 293 sq. ft. that can be built out directly above the garage that also has outside entry and exits for privacy. This space could be used as a media or game room, for exercise, a dedicated office, or even for longer-staying guests. Some might consider it as a benefit for additional income for a long-term renter or as a short-term vacation rental.

If you’ve been looking for a simple but classy home that is thoughtful of its spaces and will lend itself to providing shared moments for your family but also is a design that provides privacy when it's much needed, this is a perfect home to consider to make new and lasting memories for years to come. 

See All Plan Options
 

FEATURES & DETAILS

Kitchen features
Kitchen Island
Bedroom features
Double Vanity Sink
Primary Bdrm Upstairs
Separate Tub and Shower
Walk-in Closet
Exterior features
Covered Front Porch
Covered Rear Porch
Deck
Lot Options
Suited for view lot
Additional features
Bonus Room
Dining Room
Fireplace
Formal LR
Home Office
Laundry 1st Fl
Library/Media Rm
Open Floor Plan
Unfinished Space
Vaulted Ceilings
Vaulted Primary
Garage Location
Front
Garage Options
Attached
Front-entry
2,306 Ft
2
Total Heated
1,396 Ft
2
1st Floor
910 Ft
2
2nd Floor
3
Bedrooms
3
Bathrooms
2
Garage
2
Stories
68' 0"
Width
49' 0"
Depth
29' 8"
Height
9' 0"
Main Floor Ceiling
8' 0"
Upper Floor Ceiling
9' 0"
Living/Great Room Ceiling
9' 0"
Foyer Ceiling
10' 8"
Primary Ceiling
2x6
Framing
Truss
Roof Framing
8/12
Primary Roof Pitch
10/12
Secondary Roof Pitch
Single
Dwelling Number
2nd Floor
Bonus Access

Unheated Living Space
566 Ft
2
Garage
324 Ft
2
Deck
293 Ft
2
Bonus Room
 

Plan Package Options

 Select Plan Package
 Need To Reverse Plan? (Optional)
  Select Foundation Option
  Add-Ons (Optional)
INCLUDED WITH YOUR PURCHASE

Free Ground shipping in the U.S.

FREE

Home Building & Product Ideas Organizer

Sub Total
$0
Free Shipping
QUESTIONS OR NEED HELP ORDERING? LIVE CHAT OR CALL US AT 866-214-2242
Plan Packages

Each set of construction documents typically includes detailed, dimensioned floor plans, basic electric layouts, cross sections, roof details, cabinet layouts, and elevations, as well as general IRC specifications. Please refer to the ARCHITECT or DESIGNER’S PLAN DETAILS link above the floor plan on any plan page to determine the specific details for each plan. Our house plans contain virtually all of the information required to construct your home. The typical plan set does not include plumbing, HVAC drawings, or engineering stamps due to the wide variety of specific needs, local codes, and climatic conditions. These details and specifications are easily obtained from your builder, contractors, and/or local engineers.

BEST PRICE GUARANTEE

Find the same house plan (modifications included!) and package for less on another site, show us the URL and we'll give you the difference plus an additional 10% back.

100% SATISFACTION GUARANTEE

We offer a one-time, 30-day exchange policy for unused, printed plan packages in the event you aren't satisfied with your first selection.

 
 

Plan 9912  Back to plan page

Loading...