Get discounts,
promos, see our
newest plans
and more!
+ 15% off any plan
See terms opt out anytime


No Thanks

Thanks for
signing up!


Use Code:

SIGNUP15

And save 15% off any plan!

Check your email for details.

CLOSE
Search Plans
     

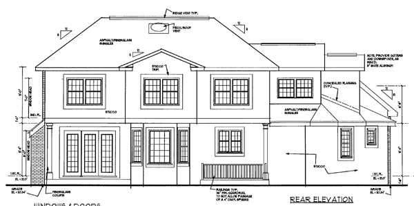
Grand Colonial 2902 Charming Colonial Style House, Plan 4711

 
 

Sq Ft
3,860 FT²

Beds
7

Baths
4.5

Stories
2

Garage
2

Depth
46' 3"

Width
62'
From
$788.00
© copyright by designer
 View All 4 Images | Photographs may reflect modified home
Sq Ft
3,860 FT²
Beds
7
Baths
4.5
Stories
2
Garage
2
Depth
46' 3"
Width
62'
 
Click to Zoom In on Floor Plan
© copyright by designer
 
 

About This Plan

A grand Colonial country style marks the exterior of this gorgeous home design. The brick exterior and bay windows provide elegance to this high end design. The two-story foyer is flanked by the oversized dining room for large families and comfortable living room. A fireplace framed with glass provides an elegant focal point view. The open plan expands to the breakfast/dinette and kosher kitchen areas. The kitchen is equipped with a large eating island. A separated dairy sink, dishwasher, microwave and under counter refrigerator are all included in the island. You'll find plenty of counter space with oversized gas stove and oven separated from the double wall oven. The kitchen and dinette overlook the rear yard through a bay window and French glass doors. A service bedroom or office is located off the kitchen with large closet space and full bathroom. The first floor includes 9'-4" ceiling heights. All rooms have wood panels, crown moldings, oak wood floors, etc. Upstairs, a balcony overlooks the front two story entrance foyer. The master suite includes a 10'-6" tray ceiling, and an oversized walk-in-closet. The grand master bath boasts double sinks, whirlpool tub, and separate shower. All bedrooms are bright with large closets.

 

See All Plan Options
 

FEATURES & DETAILS

Kitchen features
Butler's Pantry
Kitchen Island
Walk-in Pantry
Bedroom features
Double Vanity Sink
Guest Suite
Nursery Room
Separate Tub and Shower
Exterior features
Covered Front Porch
Foundation Options
Basement
Crawlspace
Slab
Lot Options
Suited for view lot
Additional features
2 Story Volume
Bonus Room
Dining Room
Family Room
Fireplace
Formal LR
Foyer
Home Office
Laundry 1st Fl
Laundry 2nd Fl
Loft / Balcony
Mud Room
Storage Space
Vaulted Ceilings
Garage Location
Front
Garage Options
Attached
Front-entry
3,860 Ft
2
Total Heated
1,980 Ft
2
1st Floor
1,880 Ft
2
2nd Floor
7
Bedrooms
4.5
Bathrooms
2
Garage
2
Stories
62' 0"
Width
46' 3"
Depth
29' 10"
Height
9-4' 0"
Main Floor Ceiling
9' 0"
Upper Floor Ceiling
2x6
Framing
Stick
Roof Framing
4.75/12
Primary Roof Pitch
9/12
Secondary Roof Pitch
10/12
Teritary Roof Pitch
Single
Dwelling Number

Unheated Living Space
477 Ft
2
Garage
 

Plan Package Options

 Select Plan Package
$720
PDF Bid Set

Home plans stamped "NOT FOR CONSTRUCTION" for cost estimating and bidding purposes only; a minimum 5 set plan package must be purchased within 90 days for a license to build plan set; a credit will be applied towards your house plan upgrade

$720
$788
4 Printed Sets

Four printed sets of construction drawings shipped and received in 3-5 business days

$788
$872
8 Printed Sets

Eight Printed Sets of Construction Drawings, typically 24” x 36” documents, with a license to construct a single residence shipped to your physical address. PDF Plan Packages are our most popular choice which allows you to print as many copies as you need and to electronically send files to your builder, subcontractors, bank/mortgage reps, material stores, decorators and more.

$872
$1,014
PDF Single Build

Digital plans emailed to you in PDF format that allows for printing copies and sharing electronically with contractors, subs, decorators, and more. This package includes a license to build the home one time.

$1,014
$2,350
CAD + PDF Single Build

CAD files are a complete set of construction drawings delivered electronically. They can be used for any type of modification—including major design changes and engineering—and include a release granting permission to modify the plan. Most CAD plan orders are emailed the same or next business day.
 
This package also comes with a PDF set of plans and a copyright release for making modifications and printing unlimited copies.
 
CAD files are provided in .dwg format. For details on the specific CAD program used, please refer to the PLAN DETAILS section located above the floor plan on each plan’s page.

$2,350
  Select Foundation Option
  Add-Ons (Optional)
INCLUDED WITH YOUR PURCHASE

Free Ground shipping in the Continental U.S.

FREE

Design consultation with the architect or designer to discuss your plan

Home Building & Product Ideas Organizer

Sub Total
$0
Free Shipping
QUESTIONS OR NEED HELP ORDERING? LIVE CHAT OR CALL US AT 866-214-2242
Plan Packages

Each set of construction documents includes detailed, dimensioned floor plans, basic electric layouts, cross sections, roof details, cabinet layouts and elevations, as well as general IRC specifications. They contain virtually all of the information required to construct your home. The typical plan set does not include any plumbing, HVAC drawings, or engineering stamps due to the wide variety of specific needs, local codes, and climatic conditions. These details and specifications are easily obtained from your builder, contractors, and/or local engineers.

BEST PRICE GUARANTEE

find the same house plan (modifications included!) and package for less on another site, show us the URL and we'll give you the difference plus an additional 5% back.

100% SATISFACTION GUARANTEE

We offer a one-time, 30-day exchange policy for unused, non-electronic plan packages in the event you aren't satisfied with your first selection.

 
 

Plan 4711  Back to plan page

Loading...