Get discounts,
promos, see our
newest plans
and more!
+ 15% off any plan
See terms opt out anytime


No Thanks

Thanks for
signing up!


Use Code:

SIGNUP15

And save 15% off any plan!

Check your email for details.

CLOSE
Search Plans
Customer Reviews
     
15% Off House Plans Sitewide Ends Sunday

Code: SAVE15
Sale ends midnight 1/11/2026 PST

Sq Ft
4,553 FT²

Beds
5

Baths
5.5

Stories
2

Garage
3

Depth
67'

Width
72'
From
$1,695.00
© copyright by designer
 View All 24 Images | Photographs may reflect modified home
Sq Ft
4,553 FT²
Beds
5
Baths
5.5
Stories
2
Garage
3
Depth
67'
Width
72'
 
Click to Zoom In on Floor Plan
© copyright by designer
 
 

About This Plan

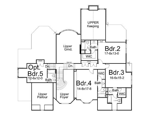
A Norman-style roof line characterizes the exterior of this home, with arched, multi-pane windows set in stucco bestowing a definitive charm. The foyer opens to a parlor immediately on the left and to the dining room on the right, with a curved staircase just to the left. The great room is past the gallery, with a view through a bayed window to the deck. The great room expands into the keeping room, kitchen, and breakfast area. An opulent master suite resides at the left of the plan. Upstairs are three bedrooms, plus an optional fourth, and views of the keeping room, foyer, great room, and parlor below.

 

See All Plan Options
 

FEATURES & DETAILS

Exterior features
Rear Porch
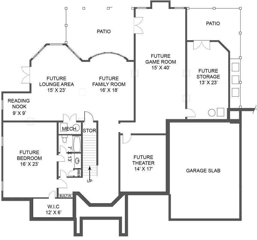
Foundation Options
Daylight Basement
Walkout Basement
Garage Location
Side
Garage Options
Attached
4,553 Ft
2
Total Heated
2,883 Ft
2
1st Floor
1,670 Ft
2
2nd Floor
5
Bedrooms
5.5
Bathrooms
3
Garage
2
Stories
72' 0"
Width
67' 0"
Depth
39' 4"
Height
9' 0"
Main Floor Ceiling
8' 0"
Upper Floor Ceiling
2x4
Framing
Stick
Roof Framing
Single
Dwelling Number

Unheated Living Space
 

Plan Package Options

 Select Plan Package
$2,125
5 Printed Sets

Five Printed Sets of Residential Construction Drawings are typically 24” x 36” documents and come with a license to construct a single residence shipped to a physical address. Keep in mind PDF Plan Packages are our most popular choice which allows you to print as many copies as you need and to electronically send files to your builder, subcontractors, etc.

$2,125
$2,225
5 Printed Sets + PDF

Includes 5 physical printed blueprints shipped and delivered within 3-5 business days and a copyright release license to construct one home and to make copies. A complimentary PDF plan set is also emailed within 1 business day for easy sharing and local printing. 

$2,225
$1,695
PDF Single Build

Digital plans emailed to you in PDF format that allows for printing copies and sharing electronically with contractors, subs, decorators, and more. This package includes a license to build the home one time.

$1,695
$2,495
CAD + PDF Single Build

This plan package is created in AutoCAD and delivered in .DWG format. CAD files are intended for use by design professionals, structural engineers, and builders to update plans for local building codes or to make revisions based on specific needs, lot requirements, and budget considerations. A complimentary PDF copy is included with this package for reference. CAD packages are delivered within 1 to 2 business days.
 
This package also comes with a copyright release for making revisions and printing unlimited copies.

For details on the specific CAD program used, please refer to the PLAN DETAILS section located above the floor plan on each plan page.

$2,495
$3,290
CAD + PDF Unlimited Build

This plan package is created in AutoCAD and delivered in .DWG format. CAD files are intended for use by design professionals, structural engineers, and builders to update plans for local building codes or to make revisions based on specific needs, lot requirements, and budget considerations. A complimentary PDF copy is included with this package for reference. CAD packages are delivered within 1 to 2 business days.
 
This package also comes with a multi-use building license, granting permission to construct the home an unlimited number of times, along with a copyright release for making revisions and printing unlimited copies.
 
For details on the specific CAD program used, please refer to the PLAN DETAILS section located above the floor plan on each plan page.

$3,290
 Need To Reverse Plan? (Optional)
$200
Readable Reverse

Reverse house plans with readable text and dimensions 

$200
  Select Foundation Option
  Add-Ons (Optional)
INCLUDED WITH YOUR PURCHASE

Free Ground shipping in the Continental U.S.

FREE

Home Building & Product Ideas Organizer

Sub Total
$0
Free Shipping
QUESTIONS OR NEED HELP ORDERING? LIVE CHAT OR CALL US AT 866-214-2242
Plan Packages

Each set of construction documents includes detailed, dimensioned floor plans, basic electric layouts, cross sections, roof details, cabinet layouts and elevations, as well as general IRC specifications. They contain virtually all of the information required to construct your home. The typical plan set does not include any plumbing, HVAC drawings, or engineering stamps due to the wide variety of specific needs, local codes, and climatic conditions. These details and specifications are easily obtained from your builder, contractors, and/or local engineers.

BEST PRICE GUARANTEE

Find the same house plan (modifications included!) and package for less on another site, show us the URL and we'll give you the difference plus an additional 5% back.

100% SATISFACTION GUARANTEE

We offer a one-time, 30-day exchange policy for unused, printed plan packages in the event you aren't satisfied with your first selection. Exchanges are subject to a 20% restocking fee.

 
 

Plan 6004  Back to plan page

Loading...