Get discounts,
promos, see our
newest plans
and more!
+ 15% off any plan
See terms opt out anytime


No Thanks

Thanks for
signing up!


Use Code:

SIGNUP15

And save 15% off any plan!

Check your email for details.

CLOSE
Search Plans
Customer Reviews
     
America’s Top Home Plans
Trusted House Plans From America's Leading Architects & Designers

Freya Luxury Contemporary Style House, Plan 9868

 
 

Sq Ft
3,828 FT²

Beds
5

Baths
4.5

Stories
2

Garage
3

Depth
65'

Width
50'
From
$2,400.00
© copyright by designer
 View All 8 Images | Photographs may reflect modified home
Sq Ft
3,828 FT²
Beds
5
Baths
4.5
Stories
2
Garage
3
Depth
65'
Width
50'
 
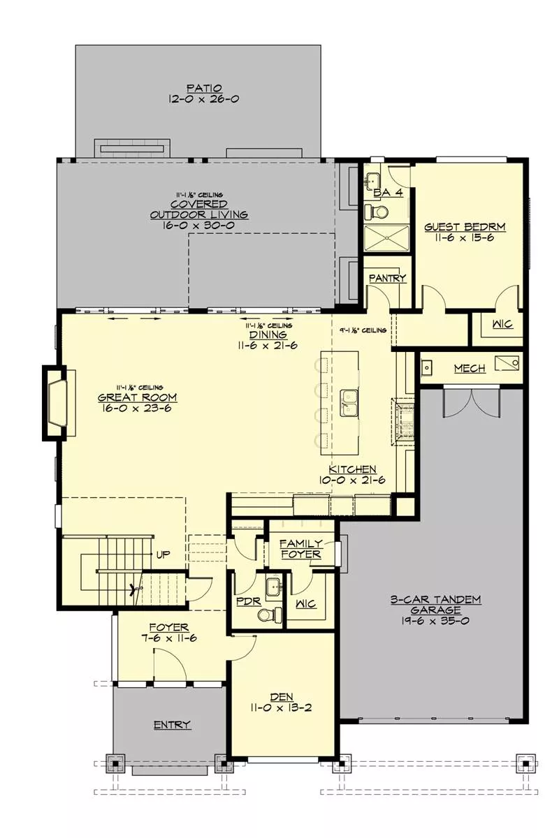
Click to Zoom In on Floor Plan
© copyright by designer
 
 

About This Plan

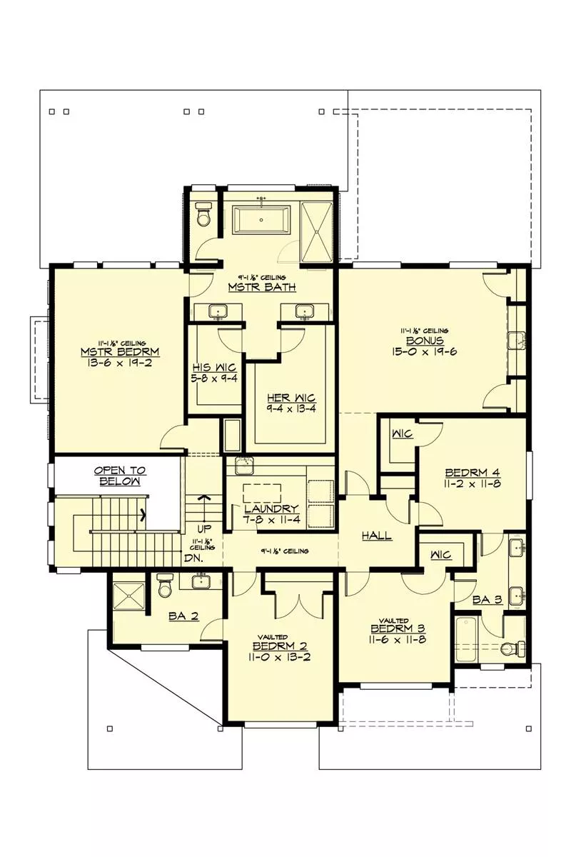
Welcome to the Freya, a two-story, magnificent modern contemporary home plan.  This gorgeous 3,828 s.f. home offers 5 bedrooms and 4 1/2 bathrooms with incredible upscale amenities to suit your family.  The exterior of the home grabs your attention and beckons you to come inside to enjoy its hospitality.  As you enter the home through the spacious foyer, a bright and airy den/office is directly to your right. It is far enough from the main living areas of the home to provide welcome solitude for those work-at-home days.  A powder room and family foyer/mud room with walk in closet provides a necessary function for a large family.  A little further in and you'll come to the massive great room/dining/kitchen with beautiful fireplace wall, sliding glass doors to the outdoor living space and a wonderful gourmet kitchen with large island and upscale appliances begging you to make a gourmet feast for the hungry masses you are sure to feed in such a large home.  A guest bedroom in the back corner is perfect for the occasional guest, live-in nanny or Grandma.  Upstairs you'll find the remaining bedrooms and a huge bonus room.  3, very large secondary bedrooms with 2 shared bathrooms and a centrally located laundry room are all cozy and comfortable and provides necessary private space for the kids.  Meanwhile, your sanctuary will be the master bedroom with ensuite bath.   Peaceful and serene, it's like going to a 5-star spa for relaxation and rejuvenation.  This amazing home is perfect in every way. 

See All Plan Options
 

FEATURES & DETAILS

Kitchen features
Kitchen Island
L-Shaped
Walk-in Pantry
Bedroom features
Double Vanity Sink
Guest Suite
His and Hers Primary Closets
Primary Bdrm Upstairs
Separate Tub and Shower
Exterior features
Covered Front Porch
Outdoor Living Space
Rear Porch
Lot Options
Suited for view lot
Additional features
Bonus Room
Dining Room
Fireplace
Foyer
Great Room
Home Office
Laundry 2nd Fl
Mud Room
Open Floor Plan
Garage Location
Front
Garage Options
Attached
Front-entry
Tandem
4,507 Ft
2
Total Structure
3,828 Ft
2
Total Heated
1,755 Ft
2
1st Floor
2,073 Ft
2
2nd Floor
5
Bedrooms
4.5
Bathrooms
3
Garage
2
Stories
50' 0"
Width
65' 0"
Depth
27' 6"
Height
11' 0"
Main Floor Ceiling
11' 0"
Upper Floor Ceiling
2x6
Framing
Combination
Roof Framing
3:12
Primary Roof Pitch
Single
Dwelling Number
2nd Floor
Bonus Access

Unheated Living Space
679 Ft
2
Garage
 

Plan Package Options

 Select Plan Package
 Need To Reverse Plan? (Optional)
  Select Foundation Option
  Add-Ons (Optional)
INCLUDED WITH YOUR PURCHASE

Free Ground shipping in the U.S.

FREE

Home Building & Product Ideas Organizer

Sub Total
$0
Free Shipping
IMPORTANT NOTE: Due to state regulations, this home is not available for purchase in the State of Washington. Contact us for more information.
QUESTIONS OR NEED HELP ORDERING? LIVE CHAT OR CALL US AT 866-214-2242
Plan Packages

Each set of construction documents typically includes detailed, dimensioned floor plans, basic electric layouts, cross sections, roof details, cabinet layouts, and elevations, as well as general IRC specifications. Please refer to the ARCHITECT or DESIGNER’S PLAN DETAILS link above the floor plan on any plan page to determine the specific details for each plan. Our house plans contain virtually all of the information required to construct your home. The typical plan set does not include plumbing, HVAC drawings, or engineering stamps due to the wide variety of specific needs, local codes, and climatic conditions. These details and specifications are easily obtained from your builder, contractors, and/or local engineers.

BEST PRICE GUARANTEE

Find the same house plan (modifications included!) and package for less on another site, show us the URL and we'll give you the difference plus an additional 10% back.

100% SATISFACTION GUARANTEE

We offer a one-time, 30-day exchange policy for unused, printed plan packages in the event you aren't satisfied with your first selection.

 
 

Plan 9868  Back to plan page

Loading...