Get discounts,
promos, see our
newest plans
and more!
+ 15% off any plan
See terms opt out anytime


No Thanks

Thanks for
signing up!


Use Code:

SIGNUP15

And save 15% off any plan!

Check your email for details.

CLOSE
Search Plans
Customer Reviews
     
15% off ALL House Plans Sitewide
15% off ALL House Plans Sitewide
15% off ALL House Plans Sitewide

Code: HONOR
Sale ends midnight 5/29/2026 PST

Sq Ft
2,977 FT²

Beds
4

Baths
2.5

Stories
1

Garage
3

Depth
43'

Width
76'
On Sale
$1,751.85
$2,061.00
© copyright by designer
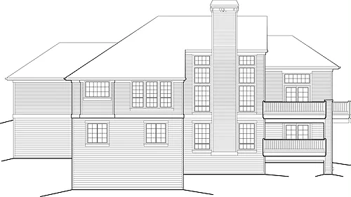
 View All 4 Images | Photographs may reflect modified home
Sq Ft
2,977 FT²
Beds
4
Baths
2.5
Stories
1
Garage
3
Depth
43'
Width
76'
 
Click to Zoom In on Floor Plan
© copyright by designer
 
 

About This Plan

Express your own personal style in this stunning two-level home. This is an inviting plan for anyone who wants a first-floor master suite. The home also is tailored to those who enjoy a casual lifestyle, including outdoor activities on the bi-level deck.
Varied ceiling heights throughout the main level help define the rooms. A vaulted ceiling in the great room adds stature to the space, while the fireplace flanked by windows provide warmth and sunshine. Fully partitioned, the spacious kitchen includes an eating area and sliding doors to the deck. The work core is furnished with a center island with a cooktop. Columns define the perimeter of the dining room, which has a tray ceiling.
Double doors seclude the master suite, where the tray ceiling rises to 10 feet in the sleeping area. The luxurious bath features a whirlpool tub, tiled shower, double sinks, and a walk-in closet.

Two bedrooms, a den, a compartmentalized bath, and a laundry room share space on the foundation level. There's also a large games room with built-in storage. 


See All Plan Options
 

FEATURES & DETAILS

Kitchen features
Kitchen Island
Nook / Breakfast Area
Walk-in Pantry
Bedroom features
Double Vanity Sink
Primary Bdrm Main Floor
Separate Tub and Shower
Walk-in Closet
Exterior features
Deck
No Porch
Foundation Options
Crawlspace
Daylight Basement
Walkout Basement
Lot Options
Suited for sloping lot
Additional features
Dining Room
Fireplace
Foyer
Great Room
Open Floor Plan
Vaulted Ceilings
Garage Location
Front
Garage Options
Attached
Front-entry
2,977 Ft
2
Total Heated
1,573 Ft
2
1st Floor
1,404 Ft
2
Lower Floor
4
Bedrooms
2.5
Bathrooms
3
Garage
1
Stories
76' 0"
Width
43' 0"
Depth
23' 0"
Height
varies' 0"
Main Floor Ceiling
2x6
Framing
Stick
Roof Framing
8/12
Primary Roof Pitch
Single
Dwelling Number
None
Bonus Access

Unheated Living Space
694 Ft
2
Garage
309 Ft
2
Deck
Exterior Styles
 

Plan Package Options

 Select Plan Package
 Need To Reverse Plan? (Optional)
  Select Foundation Option
  Add-Ons (Optional)
INCLUDED WITH YOUR PURCHASE

Free Ground shipping in the U.S.

FREE

Home Building & Product Ideas Organizer

Sub Total
$0
Free Shipping
QUESTIONS OR NEED HELP ORDERING? LIVE CHAT OR CALL US AT 866-214-2242
Plan Packages

Each set of construction documents typically includes detailed, dimensioned floor plans, basic electric layouts, cross sections, roof details, cabinet layouts, and elevations, as well as general IRC specifications. Please refer to the ARCHITECT or DESIGNER’S PLAN DETAILS link above the floor plan on any plan page to determine the specific details for each plan. Our house plans contain virtually all of the information required to construct your home. The typical plan set does not include plumbing, HVAC drawings, or engineering stamps due to the wide variety of specific needs, local codes, and climatic conditions. These details and specifications are easily obtained from your builder, contractors, and/or local engineers.

BEST PRICE GUARANTEE

Find the same house plan (modifications included!) and package for less on another site, show us the URL and we'll give you the difference plus an additional 10% back.

100% SATISFACTION GUARANTEE

We offer a one-time, 30-day exchange policy for unused, printed plan packages in the event you aren't satisfied with your first selection.

 
 

Plan 2446  Back to plan page

Loading...