Get discounts,
promos, see our
newest plans
and more!
+ 15% off any plan
See terms opt out anytime


No Thanks

Thanks for
signing up!


Use Code:

SIGNUP15

And save 15% off any plan!

Check your email for details.

CLOSE
Search Plans
Customer Reviews
     
15% off ALL House Plans Sitewide
15% off ALL House Plans Sitewide
15% off ALL House Plans Sitewide

Code: SAVE15
Sale ends midnight 4/22/2026 PST

Sq Ft
1,672 FT²

Beds
3

Baths
2

Stories
1

Garage
2

Depth
34' 4"

Width
55'
On Sale
$799.00
$940.00
EXCLUSIVE PLAN
© copyright by architect
 View All 6 Images | Photographs may reflect modified home
Sq Ft
1,672 FT²
Beds
3
Baths
2
Stories
1
Garage
2
Depth
34' 4"
Width
55'
 
Click to Zoom In on Floor Plan
© copyright by architect
 
 

About This Plan

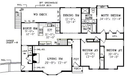
This home offers lots of opportunities for enjoying the outdoors, with its lavish use of glass, large patio and wood deck or optional greenhouse. The rustic exterior sports vertical cedar siding contrasted with stone veneer. The home's tuck-under garage and rear-view orientation make it perfect for scenic lots on a slope. The large living room includes such extras as built-in shelves, a bay window and a fireplace. The two dining areas and the central kitchen all face the rear deck. Plenty of glass in each room offers great views of the outdoors. Converting the deck into a greenhouse adds 168 sq. ft. of space. The two bathrooms and the foyer are arranged to help buffer the bedrooms from the main living areas.

The lower level is a self-sufficient unit, making it a perfect suite for guests, elderly parents or college-aged children. In addition to a full bath and a large bedroom, it includes a family room with a fireplace, a built-in kitchenette and a pair of sliding glass doors to the patio. 

See All Plan Options
 

FEATURES & DETAILS

Kitchen features
Nook / Breakfast Area
Bedroom features
His and Hers Primary Closets
Primary Bdrm Main Floor
Walk-in Closet
Exterior features
Deck
Front Porch
Foundation Options
Basement
Crawlspace
Daylight Basement
Walkout Basement
Lot Options
Suited for sloping lot
Additional features
Dining Room
Family Room
Fireplace
Foyer
Great Room
Laundry 1st Fl
Mud Room
Storage Space
Garage Location
Under
Garage Options
Attached
Drive-under
1,672 Ft
2
Total Heated
1,672 Ft
2
1st Floor
504 Ft
2
Lower Floor
3
Bedrooms
2
Bathrooms
2
Garage
1
Stories
55' 0"
Width
34' 4"
Depth
19' 0"
Height
8'-1"' 0"
Main Floor Ceiling
2x4
Framing
Stick
Roof Framing
6/12
Primary Roof Pitch
Single
Dwelling Number

Unheated Living Space
617 Ft
2
Garage
243 Ft
2
Storage
167 Ft
2
Deck
504 Ft
2
Bonus Room
 

Plan Package Options

 Select Plan Package
  Select Foundation Option
  Add-Ons (Optional)
INCLUDED WITH YOUR PURCHASE

Free Ground shipping in the U.S.

FREE

Home Building & Product Ideas Organizer

Sub Total
$0
Free Shipping
QUESTIONS OR NEED HELP ORDERING? LIVE CHAT OR CALL US AT 866-214-2242
Plan Packages

Each set of construction documents typically includes detailed, dimensioned floor plans, basic electric layouts, cross sections, roof details, cabinet layouts, and elevations, as well as general IRC specifications. Please refer to the ARCHITECT or DESIGNER’S PLAN DETAILS link above the floor plan on any plan page to determine the specific details for each plan. Our house plans contain virtually all of the information required to construct your home. The typical plan set does not include plumbing, HVAC drawings, or engineering stamps due to the wide variety of specific needs, local codes, and climatic conditions. These details and specifications are easily obtained from your builder, contractors, and/or local engineers.

BEST PRICE GUARANTEE

Find the same house plan (modifications included!) and package for less on another site, show us the URL and we'll give you the difference plus an additional 10% back.

100% SATISFACTION GUARANTEE

We offer a one-time, 30-day exchange policy for unused, printed plan packages in the event you aren't satisfied with your first selection.

 
 

Plan 3827  Back to plan page

Loading...