Get discounts,
promos, see our
newest plans
and more!
+ 15% off any plan
See terms opt out anytime


No Thanks

Thanks for
signing up!


Use Code:

SIGNUP15

And save 15% off any plan!

Check your email for details.

CLOSE
Search Plans
Customer Reviews
     
15% off ALL House Plans Sitewide
15% off ALL House Plans Sitewide
15% off ALL House Plans Sitewide

Code: HONOR
Sale ends midnight 5/31/2026 PST

Sq Ft
3,447 FT²

Beds
3

Baths
3.5

Stories
2

Garage
3

Depth
55'

Width
54' 6"
On Sale
$1,742.50
$2,050.00
© copyright by designer
 View All 13 Images | Photographs may reflect modified home
Sq Ft
3,447 FT²
Beds
3
Baths
3.5
Stories
2
Garage
3
Depth
55'
Width
54' 6"
 
Click to Zoom In on Floor Plan
© copyright by designer
 
 

About This Plan

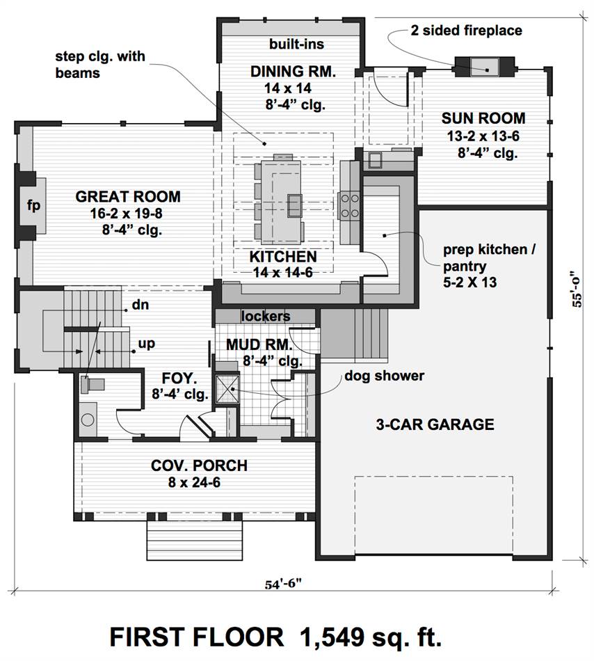
This three-bedroom farmhouse house plan would be a nice addition to any neighborhood. The thoughtful layout makes this home plan perfect for a family. A fireplace warms the great room, which hosts any gathering in style and comfort. The island kitchen incorporates snack space for five. Check out the oversized pantry, which doubles as a prep kitchen. The dining room and sun room are peaceful and bright. Upstairs, a step ceiling presides over the master suite, where a window seat beckons you to unwind with a good book. A garden spa tub is the highlight of the private bath. Two more bedrooms have direct bath access. A sitting room and an office may be used by any family member. An optional walk-out basement provides extra rooms that promote relaxation. 

See All Plan Options
 

FEATURES & DETAILS

Kitchen features
Butler's Pantry
Walk-in Pantry
Bedroom features
Primary Bdrm Upstairs
Exterior features
Covered Front Porch
Foundation Options
Daylight Basement
Walkout Basement
Additional features
Home Office
Laundry 2nd Fl
Library/Media Rm
Rec Room
Garage Location
Front
Garage Options
Attached
Front-entry
Tandem
4,797 Ft
2
Total Structure
3,447 Ft
2
Total Heated
1,459 Ft
2
1st Floor
1,988 Ft
2
2nd Floor
1,260 Ft
2
Lower Floor
3
Bedrooms
3.5
Bathrooms
3
Garage
2
Stories
54' 6"
Width
55' 0"
Depth
8' 4"' 0"
Main Floor Ceiling
8' 0"
Upper Floor Ceiling
2x6
Framing
Truss
Roof Framing
Single
Dwelling Number

Unheated Living Space
798 Ft
2
Garage
196 Ft
2
Porch
 

Plan Package Options

 Select Plan Package
 Need To Reverse Plan? (Optional)
  Select Foundation Option
  Add-Ons (Optional)
INCLUDED WITH YOUR PURCHASE

Free Ground shipping in the U.S.

FREE

Home Building & Product Ideas Organizer

Sub Total
$0
Free Shipping
QUESTIONS OR NEED HELP ORDERING? LIVE CHAT OR CALL US AT 866-214-2242
Plan Packages

Each set of construction documents typically includes detailed, dimensioned floor plans, basic electric layouts, cross sections, roof details, cabinet layouts, and elevations, as well as general IRC specifications. Please refer to the ARCHITECT or DESIGNER’S PLAN DETAILS link above the floor plan on any plan page to determine the specific details for each plan. Our house plans contain virtually all of the information required to construct your home. The typical plan set does not include plumbing, HVAC drawings, or engineering stamps due to the wide variety of specific needs, local codes, and climatic conditions. These details and specifications are easily obtained from your builder, contractors, and/or local engineers.

BEST PRICE GUARANTEE

Find the same house plan (modifications included!) and package for less on another site, show us the URL and we'll give you the difference plus an additional 10% back.

100% SATISFACTION GUARANTEE

We offer a one-time, 30-day exchange policy for unused, printed plan packages in the event you aren't satisfied with your first selection.

 
 

Plan 2001  Back to plan page

Loading...