Get discounts,
promos, see our
newest plans
and more!
+ 15% off any plan
See terms opt out anytime


No Thanks

Thanks for
signing up!


Use Code:

SIGNUP15

And save 15% off any plan!

Check your email for details.

CLOSE
Search Plans
Customer Reviews
     
20% off ALL House Plans Sitewide
20% off ALL House Plans Sitewide
20% off ALL House Plans Sitewide

Code: SAVE20
Sale ends midnight 3/22/2026 PST

Sq Ft
1,467 FT²

Beds
3

Baths
2

Stories
1

Garage
2

Depth
38' 6"

Width
62' 8"
On Sale
$696.00
$870.00
EXCLUSIVE PLAN
© copyright by designer
 View All 5 Images | Photographs may reflect modified home
Sq Ft
1,467 FT²
Beds
3
Baths
2
Stories
1
Garage
2
Depth
38' 6"
Width
62' 8"
 
Click to Zoom In on Floor Plan
© copyright by designer
 
 

About This Plan

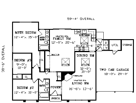
I designed this home's fantastic exterior angles and dramatic front windows to give it an air of excitement that will draw compliments galore from friends and family alike.
The living room and the dining room keep their definition while sharing a wide-open area. A fireplace warms gatherings in the living room, and a skylight brightens the dining room. Additional skylights highlight the family room and the kitchen. The family room also offers a cathedral ceiling and sliding glass doors to the backyard. 

See All Plan Options
 

FEATURES & DETAILS

Kitchen features
Country Kitchen
Bedroom features
Double Vanity Sink
Primary Bdrm Main Floor
Exterior features
Front Porch
Foundation Options
Basement
Crawlspace
Slab
Additional features
Dining Room
Family Room
Fireplace
Formal LR
Foyer
Laundry 1st Fl
Mud Room
Storage Space
Vaulted Ceilings
Garage Location
Front
Garage Options
Attached
Front-entry
1,467 Ft
2
Total Heated
3
Bedrooms
2
Bathrooms
2
Garage
1
Stories
62' 8"
Width
38' 6"
Depth
20' 0"
Height
8'-1"' 0"
Main Floor Ceiling
2x4
Framing
Stick
Roof Framing
7/12
Primary Roof Pitch
Single
Dwelling Number

Unheated Living Space
477 Ft
2
Garage
 

Plan Package Options

 Select Plan Package
  Select Foundation Option
  Add-Ons (Optional)
INCLUDED WITH YOUR PURCHASE

Free Ground shipping in the U.S.

FREE

Home Building & Product Ideas Organizer

Sub Total
$0
Free Shipping
QUESTIONS OR NEED HELP ORDERING? LIVE CHAT OR CALL US AT 866-214-2242
Plan Packages

Each set of construction documents includes detailed, dimensioned floor plans, basic electric layouts, cross sections, roof details, cabinet layouts and elevations, as well as general IRC specifications. They contain virtually all of the information required to construct your home. The typical plan set does not include any plumbing, HVAC drawings, or engineering stamps due to the wide variety of specific needs, local codes, and climatic conditions. These details and specifications are easily obtained from your builder, contractors, and/or local engineers.

BEST PRICE GUARANTEE

Find the same house plan (modifications included!) and package for less on another site, show us the URL and we'll give you the difference plus an additional 10% back.

100% SATISFACTION GUARANTEE

We offer a one-time, 30-day exchange policy for unused, printed plan packages in the event you aren't satisfied with your first selection.

 
 

Plan 3728  Back to plan page

Loading...