Get discounts,
promos, see our
newest plans
and more!
+ 15% off any plan
See terms opt out anytime


No Thanks

Thanks for
signing up!


Use Code:

SIGNUP15

And save 15% off any plan!

Check your email for details.

CLOSE
Search Plans
Customer Reviews
     
15% off ALL House Plans Sitewide

Code: SAVE15
Sale ends midnight 4/12/2026 PST

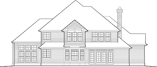
Dracut 4 Bedroom Traditional Style House, Plan 2683

 
 

Sq Ft
3,327 FT²

Beds
4

Baths
3

Stories
2

Garage
3

Depth
53' 6"

Width
68'
From
$2,310.00
© copyright by designer
 View All 8 Images | Photographs may reflect modified home
Sq Ft
3,327 FT²
Beds
4
Baths
3
Stories
2
Garage
3
Depth
53' 6"
Width
68'
 
Click to Zoom In on Floor Plan
© copyright by designer
 
 

About This Plan

Double doors topped by a transom, a two-story foyer, and a sculptural staircase-such imposing first impressions promise more to come. And, this plan upholds the promise. The home is configured for many kinds of functions. The communal family area stretches across the back and is flooded with light from walls of windows. The functional L-shaped kitchen features a walk-in pantry and an island with a downdraft-cooktop and a snack counter. Across the central hall lie two other utility areas-a bath with shower and a laundry room with cabinets, counter, sink, and closet. A home office with a private entry offers business-like seclusion. Quiet times can be shared in the bay-windowed library, which opens off the foyer via elegant French doors. Highlighted by tray ceilings, the living and dining rooms occupy a wing of their own, ideal for formal gatherings. The second floor hosts a lavish master suite, two additional bedrooms, a compartmentalized bath, and a bonus room, which can be tailored to your needs.
NOTE: The Office is an optional bonus area making the square footage of the house a total of 3,327 square feet. Not including the additional bonus space upstairs.

 


 

See All Plan Options
 

FEATURES & DETAILS

Kitchen features
Kitchen Island
Nook / Breakfast Area
Walk-in Pantry
Bedroom features
Double Vanity Sink
Primary Bdrm Upstairs
Separate Tub and Shower
Split Bedrooms
Walk-in Closet
Exterior features
No Porch
Foundation Options
Basement
Crawlspace
Slab
Lot Options
Suited for view lot
Additional features
2 Story Volume
Bonus Room
Dining Room
Family Room
Fireplace
Formal LR
Foyer
Home Office
Laundry 1st Fl
Library/Media Rm
Open Floor Plan
Vaulted Ceilings
Garage Location
Side
Garage Options
Attached
Side-entry
3,327 Ft
2
Total Heated
1,988 Ft
2
1st Floor
1,339 Ft
2
2nd Floor
4
Bedrooms
3
Bathrooms
3
Garage
2
Stories
68' 0"
Width
53' 6"
Depth
34' 0"
Height
Varies' 0"
Main Floor Ceiling
8' 0"
Upper Floor Ceiling
2x6
Framing
Truss
Roof Framing
10/12
Primary Roof Pitch
Single
Dwelling Number
2nd Floor
Bonus Access

Unheated Living Space
760 Ft
2
Garage
271 Ft
2
Bonus Room
 

Plan Package Options

 Select Plan Package
 Need To Reverse Plan? (Optional)
  Select Foundation Option
  Add-Ons (Optional)
INCLUDED WITH YOUR PURCHASE

Free Ground shipping in the U.S.

FREE

Home Building & Product Ideas Organizer

Sub Total
$0
Free Shipping
QUESTIONS OR NEED HELP ORDERING? LIVE CHAT OR CALL US AT 866-214-2242
Plan Packages

Each set of construction documents includes detailed, dimensioned floor plans, basic electric layouts, cross sections, roof details, cabinet layouts and elevations, as well as general IRC specifications. They contain virtually all of the information required to construct your home. The typical plan set does not include any plumbing, HVAC drawings, or engineering stamps due to the wide variety of specific needs, local codes, and climatic conditions. These details and specifications are easily obtained from your builder, contractors, and/or local engineers.

BEST PRICE GUARANTEE

Find the same house plan (modifications included!) and package for less on another site, show us the URL and we'll give you the difference plus an additional 10% back.

100% SATISFACTION GUARANTEE

We offer a one-time, 30-day exchange policy for unused, printed plan packages in the event you aren't satisfied with your first selection.

 
 

Plan 2683  Back to plan page

Loading...