Get discounts,
promos, see our
newest plans
and more!
+ 15% off any plan
See terms opt out anytime


No Thanks

Thanks for
signing up!


Use Code:

SIGNUP15

And save 15% off any plan!

Check your email for details.

CLOSE
Search Plans
Customer Reviews
     
15% off ALL House Plans Sitewide
15% off ALL House Plans Sitewide
15% off ALL House Plans Sitewide

Code: HONOR
Sale ends midnight 5/31/2026 PST

Sq Ft
1,258 FT²

Beds
2

Baths
1.5

Stories
2

Garage
0

Depth
34'

Width
46'
On Sale
$765.00
$900.00
© copyright by designer
 View All 6 Images | Photographs may reflect modified home
Sq Ft
1,258 FT²
Beds
2
Baths
1.5
Stories
2
Garage
0
Depth
34'
Width
46'
 
Click to Zoom In on Floor Plan
© copyright by designer
 
 

About This Plan

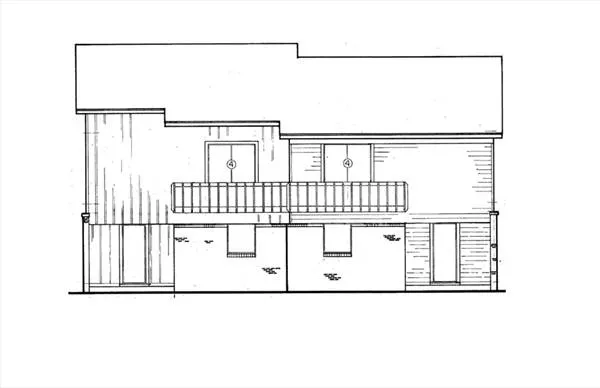
This duplex is designed to give the appearance of a luxury single family multi-story home. There is a desk tucked into a niche located between the dining and living rooms. A private rear porch provides each unit with a covered entry from the outdoor living space. Unit A has 1258 sq. ft. of heated area. Unit B has 1283 sq. ft. of heated area
 

See All Plan Options
 

FEATURES & DETAILS

Exterior features
Front Porch
Foundation Options
Crawlspace
Slab
Lot Options
Suited for narrow lot
Garage Options
None
2,671 Ft
2
Total Structure
1,258 Ft
2
Unit Heated
2
Bedrooms
1.5
Bathrooms
0
Garage
2
Stories
46' 0"
Width
34' 0"
Depth
8' 0"
Main Floor Ceiling
8' 0"
Upper Floor Ceiling
2x6
Framing
Stick
Roof Framing
7/12
Primary Roof Pitch
Duplex
Dwelling Number

Unheated Living Space
130 Ft
2
Porch
 

Plan Package Options

 Select Plan Package
  Select Foundation Option
  Add-Ons (Optional)
INCLUDED WITH YOUR PURCHASE

Free Ground shipping in the U.S.

FREE

Home Building & Product Ideas Organizer

Sub Total
$0
Free Shipping
QUESTIONS OR NEED HELP ORDERING? LIVE CHAT OR CALL US AT 866-214-2242
Plan Packages

Each set of construction documents typically includes detailed, dimensioned floor plans, basic electric layouts, cross sections, roof details, cabinet layouts, and elevations, as well as general IRC specifications. Please refer to the ARCHITECT or DESIGNER’S PLAN DETAILS link above the floor plan on any plan page to determine the specific details for each plan. Our house plans contain virtually all of the information required to construct your home. The typical plan set does not include plumbing, HVAC drawings, or engineering stamps due to the wide variety of specific needs, local codes, and climatic conditions. These details and specifications are easily obtained from your builder, contractors, and/or local engineers.

BEST PRICE GUARANTEE

Find the same house plan (modifications included!) and package for less on another site, show us the URL and we'll give you the difference plus an additional 10% back.

100% SATISFACTION GUARANTEE

We offer a one-time, 30-day exchange policy for unused, printed plan packages in the event you aren't satisfied with your first selection.

 
 

Plan 7018  Back to plan page

Loading...