Get discounts,
promos, see our
newest plans
and more!
+ 15% off any plan
See terms opt out anytime


No Thanks

Thanks for
signing up!


Use Code:

SIGNUP15

And save 15% off any plan!

Check your email for details.

CLOSE
Search Plans
     
20% Off House Plans Sitewide Ends Tuesday
20% Off House Plans Sitewide Ends Tuesday
20% Off House Plans Sitewide Ends Tuesday

Code: VET20
Sale ends midnight 11/11/2025 PST

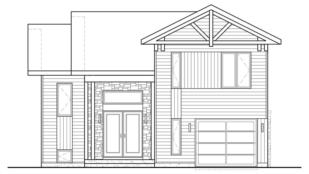
Dartmouth Outdoor Living Rustic Craftsman Style House, Plan 8851

 
 

Sq Ft
1,729 FT²

Beds
2

Baths
2

Stories
2

Garage
1

Depth
34'

Width
34'
On Sale
$776.00
$970.00
© copyright by designer
 View All 9 Images | Photographs may reflect modified home
Sq Ft
1,729 FT²
Beds
2
Baths
2
Stories
2
Garage
1
Depth
34'
Width
34'
 
Click to Zoom In on Floor Plan
© copyright by designer
 
 

About This Plan

If you are looking for a home perfect for a long term renter or even a home to share with your older sibling or friend, this design has been smartly crafted to have 1 bedroom on the lower level and the other bedroom on the 2nd story of the home, separated by the 1st main level.

Sitting at an affordable 1,729 square feet, this 3 level home mixes style with simplicity. The ample laundry room of the home is tucked on the left side by the large walk-in pantry (both with pocket doors), and the powder room is on the main level for guests.

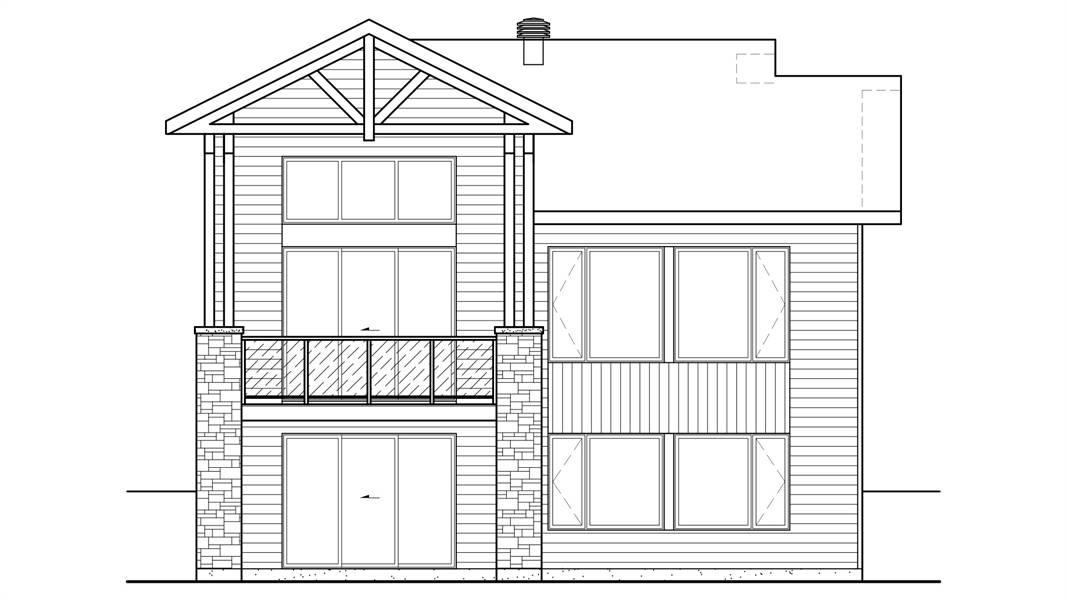
The sought after open concept layout melds the kitchen (complete with a large island) with the casual dining area and then leads into the large living space that is anchored by a fireplace. The best part of the home has to be the stunning covered back patio that is off the sliding doors off the dining area with the stacked windows beaming plenty of natural light into the home.

As mentioned, the lower level hosts 1 of the 2 bedrooms as well as a full ensuite bath and a large living area. There is a separate entrance into the lower level from the outside, as well, with the sliding glass doors off the living area.

The 2nd story of the home is where the 2nd bedroom is located. It mimics the lower level with its own living area, ensuite bath, and a large walk-in closet but has no exterior exit / entry. The bedroom also has its own fireplace to add to the ambiance. 

See All Plan Options
 

FEATURES & DETAILS

Kitchen features
Kitchen Island
Nook / Breakfast Area
Walk-in Pantry
Bedroom features
2 Primary Suites
Primary Bdrm Upstairs
Split Bedrooms
Walk-in Closet
Exterior features
Covered Rear Porch
Front Porch
Outdoor Living Space
Lot Options
Suited for narrow lot
Suited for sloping lot
Suited for view lot
Additional features
2 Story Volume
Fireplace
Foyer
Great Room
Laundry 1st Fl
Library/Media Rm
Loft / Balcony
Mud Room
Open Floor Plan
Storage Space
Vaulted Ceilings
Vaulted Great Room/Living
Garage Location
Front
Garage Options
Attached
Front-entry
1,729 Ft
2
Total Heated
752 Ft
2
1st Floor
342 Ft
2
2nd Floor
635 Ft
2
Lower Floor
2
Bedrooms
2
Bathrooms
1
Garage
2
Stories
34' 0"
Width
34' 0"
Depth
29' 1"
Height
10' 0"
Main Floor Ceiling
9' 0"
Upper Floor Ceiling
10' 0"
Lower Floor Ceiling
2x6
Framing
Truss
Roof Framing
6:12
Primary Roof Pitch
6:12
Secondary Roof Pitch
Single
Dwelling Number
None
Bonus Access

Unheated Living Space
276 Ft
2
Garage
 

Plan Package Options

 Select Plan Package
Sale: $776
PDF Single Build
$970

Digital plans emailed to you in PDF format that allows for printing copies and sharing electronically with contractors, subs, decorators, and more. This package includes a license to build the home one time.

Sale: $776
Sale: $812
5 Printed Sets
$1,015

Five Printed Sets of Residential Construction Drawings are typically 24” x 36” documents and come with a license to construct a single residence shipped to a physical address. Keep in mind PDF Plan Packages are our most popular choice which allows you to print as many copies as you need and to electronically send files to your builder, subcontractors, etc.

Sale: $812
Sale: $888
5 Printed Sets + PDF
$1,110

Digital plan emailed to you in PDF format that allows for printing copies on a home printer or local print shop and sharing with contractors, subs, decorators, and more. PLUS five printed sets shipped and delivered 3-5 business days.

Sale: $888
Sale: $1,592
CAD + PDF Single Build
$1,990

CAD files are a complete set of construction drawings delivered electronically. They can be used for any type of modification—including major design changes and engineering—and include a release granting permission to modify the plan. Most CAD plan orders are emailed the same or next business day.
 
This package also comes with a PDF set of plans and a copyright release for making modifications and printing unlimited copies.
 
CAD files are provided in .dwg format. For details on the specific CAD program used, please refer to the PLAN DETAILS section located above the floor plan on each plan’s page.

Sale: $1,592
 Need To Reverse Plan? (Optional)
$150
Readable Reverse

Reverse house plans with readable text and dimensions 

$150
  Select Foundation Option
  Add-Ons (Optional)
INCLUDED WITH YOUR PURCHASE

Free Ground shipping in the Continental U.S.

FREE

Design consultation with the architect or designer to discuss your plan

Home Building & Product Ideas Organizer

Sub Total
$0
Free Shipping
Provinces of Québec and Ontario only: Purchasable options are 5 printed sets or 8 printed sets. PDF file and CAD file options are unavailable.
QUESTIONS OR NEED HELP ORDERING? LIVE CHAT OR CALL US AT 866-214-2242
Plan Packages

Each set of construction documents includes detailed, dimensioned floor plans, basic electric layouts, cross sections, roof details, cabinet layouts and elevations, as well as general IRC specifications. They contain virtually all of the information required to construct your home. The typical plan set does not include any plumbing, HVAC drawings, or engineering stamps due to the wide variety of specific needs, local codes, and climatic conditions. These details and specifications are easily obtained from your builder, contractors, and/or local engineers.

BEST PRICE GUARANTEE

find the same house plan (modifications included!) and package for less on another site, show us the URL and we'll give you the difference plus an additional 5% back.

100% SATISFACTION GUARANTEE

We offer a one-time, 30-day exchange policy for unused, non-electronic plan packages in the event you aren't satisfied with your first selection.

 
 

Plan 8851  Back to plan page

Loading...