Get discounts,
promos, see our
newest plans
and more!
+ 15% off any plan
See terms opt out anytime


No Thanks

Thanks for
signing up!


Use Code:

SIGNUP15

And save 15% off any plan!

Check your email for details.

CLOSE
Search Plans
Customer Reviews
     
15% Off House Plans Sitewide Ends Sunday

Code: SAVE15
Sale ends midnight 1/11/2026 PST

Sq Ft
1,742 FT²

Beds
3

Baths
2

Stories
1

Garage
2

Depth
40' 10"

Width
78'
From
$1,250.00
© copyright by designer
 View All 4 Images | Photographs may reflect modified home
Sq Ft
1,742 FT²
Beds
3
Baths
2
Stories
1
Garage
2
Depth
40' 10"
Width
78'
 
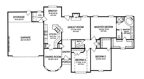
Click to Zoom In on Floor Plan
© copyright by designer
 
 

About This Plan

Ten foot ceilings in all major living areas give this home an open, spacious feel. The Kitchen features an angled eating bar, Pantry and lots of cabinet and counter space. The Master Suite is highlighted by a luxury Master Bath. Bedroom 2 and 3 and a large Linen closet are nearby. Bedroom 2 is notable for its oversize walk in closet. 

See All Plan Options
 

FEATURES & DETAILS

Kitchen features
Nook / Breakfast Area
Peninsula / Eating Bar
Bedroom features
Double Vanity Sink
Primary Bdrm Main Floor
Separate Tub and Shower
Walk-in Closet
Exterior features
Covered Front Porch
Front Porch
Foundation Options
Basement
Crawlspace
Slab
Additional features
Arches
Dining Room
Fireplace
Foyer
Great Room
Laundry 1st Fl
Open Floor Plan
Storage Space
Garage Location
Side
Garage Options
Attached
Front-entry
1,742 Ft
2
Total Heated
3
Bedrooms
2
Bathrooms
2
Garage
1
Stories
78' 0"
Width
40' 10"
Depth
21' 0"
Height
10' 0"
Main Floor Ceiling
2x4
Framing
Stick
Roof Framing
12/12
Primary Roof Pitch
Single
Dwelling Number

Unheated Living Space
566 Ft
2
Garage
14 Ft
2
Porch
Exterior Styles
 

Plan Package Options

 Select Plan Package
$1,750
Multi-Use PDF
PDFs NOW!™
Two Builds Only
$1,750
$950
PDF Bid Set
PDFs NOW!™

Home plans stamped "NOT FOR CONSTRUCTION" for cost estimating and bidding purposes only; a minimum 5 set plan package must be purchased within 90 days for a license to build plan set; a credit will be applied towards your house plan upgrade

$950
$1,250
PDF Single Build
PDFs NOW!™

Digital plans emailed to you in PDF format that allows for printing copies and sharing electronically with contractors, subs, decorators, and more. This package includes a license to build the home one time.

$1,250
$2,500
CAD + PDF Single Build

This plan package is created in AutoCAD and delivered in .DWG format. CAD files are intended for use by design professionals, structural engineers, and builders to update plans for local building codes or to make revisions based on specific needs, lot requirements, and budget considerations. A complimentary PDF copy is included with this package for reference. CAD packages are delivered within 1 to 2 business days.
 
This package also comes with a copyright release for making revisions and printing unlimited copies.

For details on the specific CAD program used, please refer to the PLAN DETAILS section located above the floor plan on each plan page.

$2,500
 Need To Reverse Plan? (Optional)
$300
Readable Reverse

Reverse house plans with readable text and dimensions 

$300
  Select Foundation Option
  Add-Ons (Optional)
INCLUDED WITH YOUR PURCHASE

Free Ground shipping in the Continental U.S.

FREE

Home Building & Product Ideas Organizer

Sub Total
$0
Free Shipping
QUESTIONS OR NEED HELP ORDERING? LIVE CHAT OR CALL US AT 866-214-2242
Plan Packages

Each set of construction documents includes detailed, dimensioned floor plans, basic electric layouts, cross sections, roof details, cabinet layouts and elevations, as well as general IRC specifications. They contain virtually all of the information required to construct your home. The typical plan set does not include any plumbing, HVAC drawings, or engineering stamps due to the wide variety of specific needs, local codes, and climatic conditions. These details and specifications are easily obtained from your builder, contractors, and/or local engineers.

BEST PRICE GUARANTEE

Find the same house plan (modifications included!) and package for less on another site, show us the URL and we'll give you the difference plus an additional 5% back.

100% SATISFACTION GUARANTEE

We offer a one-time, 30-day exchange policy for unused, printed plan packages in the event you aren't satisfied with your first selection. Exchanges are subject to a 20% restocking fee.

 
 

Plan 8467  Back to plan page

Loading...