Get discounts,
promos, see our
newest plans
and more!
+ 15% off any plan
See terms opt out anytime


No Thanks

Thanks for
signing up!


Use Code:

SIGNUP15

And save 15% off any plan!

Check your email for details.

CLOSE
Search Plans
Customer Reviews
     
15% off ALL House Plans Sitewide
15% off ALL House Plans Sitewide
15% off ALL House Plans Sitewide

Code: SAVE15
Sale ends midnight 4/19/2026 PST

Craftsman 350 Charming Farm House Style House, Plan 7433

 
 

Sq Ft
2,074 FT²

Beds
3

Baths
2.5

Stories
2

Garage
2

Depth
42'

Width
73'
On Sale
$1,487.50
$1,750.00
© copyright by designer
 View All 6 Images | Photographs may reflect modified home
Sq Ft
2,074 FT²
Beds
3
Baths
2.5
Stories
2
Garage
2
Depth
42'
Width
73'
 
Click to Zoom In on Floor Plan
© copyright by designer
 
 

About This Plan

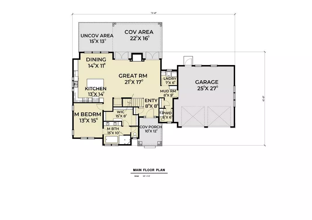
For fans of our THD-7432 plan, this Craftsman farmhouse boasts a similar appeal, with a reduced footprint but a still extremely efficient layout. Dual columns and a steep gabled roof-line offer a welcoming spirit from first sight. The covered front entryway next to the two car garage provides the beginning of the journey in to this 2,074 square foot family home. Inside, you enter in to the foyer and then the expansive great room. A large fireplace provides an amazing focal point that centers the room together. Dual French doors flank either side of the fireplace and exit on to the large covered porch and patio space. Back indoors, the open layout finds a quaint dining room and large gourmet kitchen. Past the kitchen you’ll find the beautiful first floor master suite. The luxurious bathroom and massive walk-in closet make this space one that you cannot miss. Back towards the entryway, you’ll pass by the stairs which lead to this home’s second floor. Upstairs you’ll find two large bedrooms and a shared hallway bath. This space is amazing for children of all ages, allowing this home to grow alongside your family. 

See All Plan Options
 

FEATURES & DETAILS

Kitchen features
Kitchen Island
Bedroom features
Double Vanity Sink
Primary Bdrm Main Floor
Separate Tub and Shower
Walk-in Closet
Exterior features
Covered Front Porch
Covered Rear Porch
Foundation Options
Crawlspace
Additional features
Dining Room
Fireplace
Foyer
Great Room
Laundry 1st Fl
Mud Room
Open Floor Plan
Vaulted Ceilings
Garage Location
Front
Garage Options
Attached
With Living Space
2,811 Ft
2
Total Structure
2,074 Ft
2
Total Heated
1,605 Ft
2
1st Floor
469 Ft
2
2nd Floor
3
Bedrooms
2.5
Bathrooms
2
Garage
2
Stories
73' 0"
Width
42' 0"
Depth
29' 0"
Height
9' 0"
Main Floor Ceiling
8' 0"
Upper Floor Ceiling
2x6
Framing
Stick
Roof Framing
12:10
Primary Roof Pitch
Single
Dwelling Number

Unheated Living Space
737 Ft
2
Garage
352 Ft
2
Patio
 

Plan Package Options

 Select Plan Package
 Need To Reverse Plan? (Optional)
  Select Foundation Option
  Add-Ons (Optional)
INCLUDED WITH YOUR PURCHASE

Free Ground shipping in the U.S.

FREE

Home Building & Product Ideas Organizer

Sub Total
$0
Free Shipping
QUESTIONS OR NEED HELP ORDERING? LIVE CHAT OR CALL US AT 866-214-2242
Plan Packages

Each set of construction documents typically includes detailed, dimensioned floor plans, basic electric layouts, cross sections, roof details, cabinet layouts, and elevations, as well as general IRC specifications. Please refer to the ARCHITECT or DESIGNER’S PLAN DETAILS link above the floor plan on any plan page to determine the specific details for each plan. Our house plans contain virtually all of the information required to construct your home. The typical plan set does not include plumbing, HVAC drawings, or engineering stamps due to the wide variety of specific needs, local codes, and climatic conditions. These details and specifications are easily obtained from your builder, contractors, and/or local engineers.

BEST PRICE GUARANTEE

Find the same house plan (modifications included!) and package for less on another site, show us the URL and we'll give you the difference plus an additional 10% back.

100% SATISFACTION GUARANTEE

We offer a one-time, 30-day exchange policy for unused, printed plan packages in the event you aren't satisfied with your first selection.

 
 

Plan 7433  Back to plan page

Loading...