Get discounts,
promos, see our
newest plans
and more!
+ 15% off any plan
See terms opt out anytime


No Thanks

Thanks for
signing up!


Use Code:

SIGNUP15

And save 15% off any plan!

Check your email for details.

CLOSE
Search Plans
     
20% Off House Plans Sitewide Ends Tuesday
20% Off House Plans Sitewide Ends Tuesday
20% Off House Plans Sitewide Ends Tuesday

Code: VET20
Sale ends midnight 11/11/2025 PST

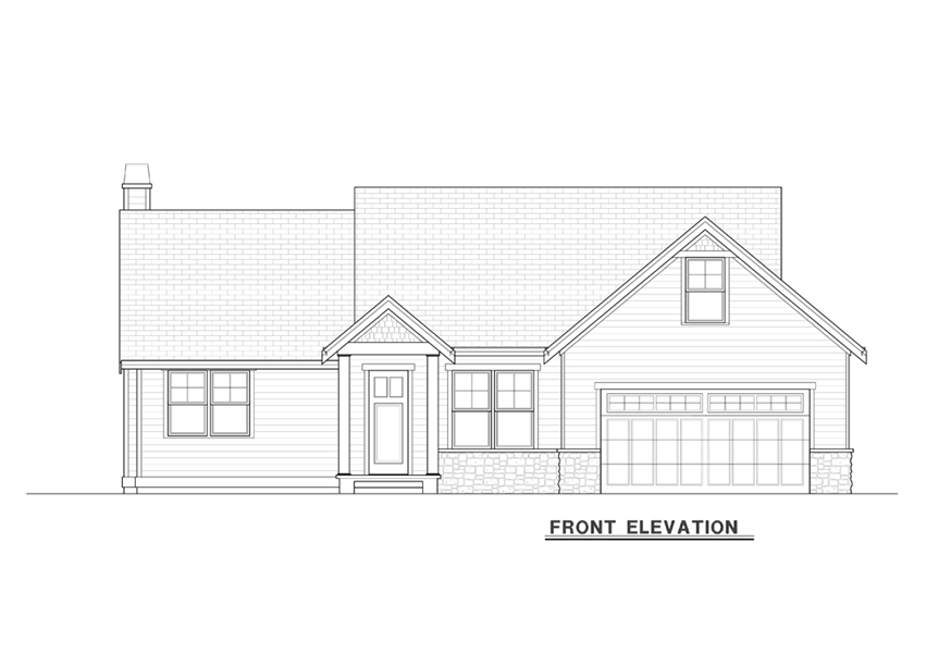
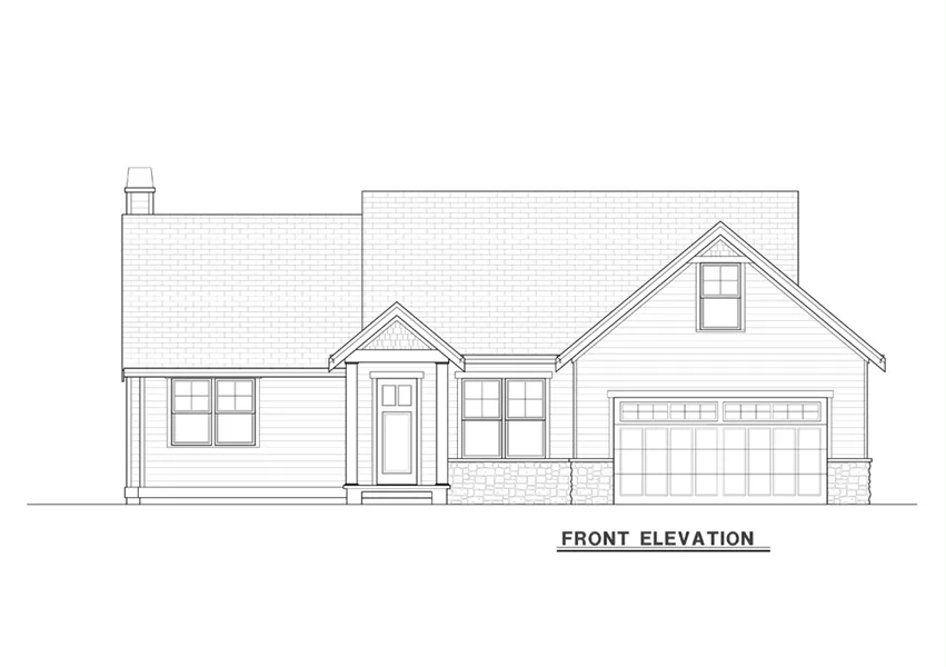
Affordable One-Story Craftsman Style House, Plan 7551

 
 

Sq Ft
2,174 FT²

Beds
3

Baths
2

Stories
1

Garage
2

Depth
51'

Width
54' 6"
On Sale
$1,400.00
$1,750.00
© copyright by designer
 View All 16 Images | Photographs may reflect modified home
Sq Ft
2,174 FT²
Beds
3
Baths
2
Stories
1
Garage
2
Depth
51'
Width
54' 6"
 
Click to Zoom In on Floor Plan
© copyright by designer
 
 

About This Plan

Whether you are an empty nester looking to downsize, or you and the family are looking to build your first home, this lovely Craftsman farmhouse can truly accommodate it all. An open and accessible single story layout offers 2,174 square feet of space, along with three bedrooms and two full bathrooms. Thanks to its inclusive design, this home is ready to last you and your family for many years to come, no matter what the future might have in store. And now, you can truly see exactly how your build will look, thanks to the addition of these real life photos taken of another happy customer's final plan. Envision yourself enjoying rooms such as the open family room along with the island kitchen and the dining nook by the patio. Or explore the relaxing master bed and bath along with the nearby auxiliary bedrooms that can double as a home gym or office if you would like. Also take some time to recognize all of the added functionality with this home, including the attached two car garage and upstairs bonus room that can be modified for any need or desire that you might have. 

See All Plan Options
 

FEATURES & DETAILS

Kitchen features
Kitchen Island
Bedroom features
Double Vanity Sink
Primary Bdrm Main Floor
Separate Tub and Shower
Walk-in Closet
Exterior features
Covered Front Porch
Rear Porch
Foundation Options
Crawlspace
Lot Options
Suited for sloping lot
Additional features
Bonus Room
Dining Room
Family Room
Fireplace
Laundry 1st Fl
Library/Media Rm
Open Floor Plan
Vaulted Ceilings
Garage Location
Front
Garage Options
Attached
Front-entry
2,726 Ft
2
Total Structure
2,174 Ft
2
Total Heated
3
Bedrooms
2
Bathrooms
2
Garage
1
Stories
54' 6"
Width
51' 0"
Depth
24' 0"
Height
9' 0"
Main Floor Ceiling
8' 0"
Upper Floor Ceiling
2x6
Framing
Truss
Roof Framing
10
Primary Roof Pitch
12
Secondary Roof Pitch
Single
Dwelling Number
2nd Floor
Bonus Access

Unheated Living Space
552 Ft
2
Garage
56 Ft
2
Porch
333 Ft
2
Bonus Room
 

Plan Package Options

 Select Plan Package
Sale: $700
PDF Bid Set
$875

Home plans stamped "NOT FOR CONSTRUCTION" for cost estimating and bidding purposes only; a minimum 5 set plan package must be purchased within 90 days for a license to build plan set; a credit will be applied towards your house plan upgrade

Sale: $700
Sale: $1,400
PDF Single Build
$1,750

Digital plans emailed to you in PDF format that allows for printing copies and sharing electronically with contractors, subs, decorators, and more. This package includes a license to build the home one time.

Sale: $1,400
Sale: $1,760
5 Printed Sets + PDF
$2,200

Digital plan emailed to you in PDF format that allows for printing copies on a home printer or local print shop and sharing with contractors, subs, decorators, and more. PLUS five printed sets shipped and delivered 3-5 business days.

Sale: $1,760
Sale: $1,800
CAD + PDF Single Build
$2,250

CAD files are a complete set of construction drawings delivered electronically. They can be used for any type of modification—including major design changes and engineering—and include a release granting permission to modify the plan. Most CAD plan orders are emailed the same or next business day.
 
This package also comes with a PDF set of plans and a copyright release for making modifications and printing unlimited copies.
 
CAD files are provided in .dwg format. For details on the specific CAD program used, please refer to the PLAN DETAILS section located above the floor plan on each plan’s page.

Sale: $1,800
 Need To Reverse Plan? (Optional)
$195
Readable Reverse

Reverse house plans with readable text and dimensions 

$195
  Select Foundation Option
  Add-Ons (Optional)
INCLUDED WITH YOUR PURCHASE

Free Ground shipping in the Continental U.S.

FREE

Design consultation with the architect or designer to discuss your plan

Home Building & Product Ideas Organizer

Sub Total
$0
Free Shipping
QUESTIONS OR NEED HELP ORDERING? LIVE CHAT OR CALL US AT 866-214-2242
Plan Packages

Each set of construction documents includes detailed, dimensioned floor plans, basic electric layouts, cross sections, roof details, cabinet layouts and elevations, as well as general IRC specifications. They contain virtually all of the information required to construct your home. The typical plan set does not include any plumbing, HVAC drawings, or engineering stamps due to the wide variety of specific needs, local codes, and climatic conditions. These details and specifications are easily obtained from your builder, contractors, and/or local engineers.

BEST PRICE GUARANTEE

find the same house plan (modifications included!) and package for less on another site, show us the URL and we'll give you the difference plus an additional 5% back.

100% SATISFACTION GUARANTEE

We offer a one-time, 30-day exchange policy for unused, non-electronic plan packages in the event you aren't satisfied with your first selection.

 
 

Plan 7551  Back to plan page

Loading...