Get discounts,
promos, see our
newest plans
and more!
+ 15% off any plan
See terms opt out anytime


No Thanks

Thanks for
signing up!


Use Code:

SIGNUP15

And save 15% off any plan!

Check your email for details.

CLOSE
Search Plans
Customer Reviews
     

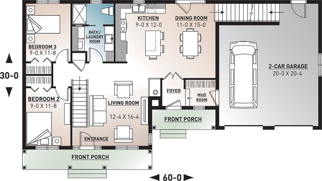
Cowichan 2 Car Garage Ranch Style House, Plan 3331

 
 

Sq Ft
1,398 FT²

Beds
3

Baths
2

Stories
1.5

Garage
2

Depth
30'

Width
60'
From
$1,510.00
© copyright by designer
 View All 7 Images | Photographs may reflect modified home
Sq Ft
1,398 FT²
Beds
3
Baths
2
Stories
1.5
Garage
2
Depth
30'
Width
60'
 
Click to Zoom In on Floor Plan
© copyright by designer
 
 

About This Plan

The modesty of this spacious ranch style plan is not to be outdone by the many hidden features that it offers. A simple yet traditional front façade welcomes you towards the home, while the double garage and covered front porch provide enjoyable functionality to the space. Within the 1,398 square feet of this plan, you will find 3 bedrooms and 2 bathrooms, as well as an easily modifiable unfinished basement that can effectively double your living space. The flexibility of this home doesn’t stop there. Two front entrances allow for easy coming and going, with one door opening directly in to the large living room, and the other in to a foyer and coat closet space. An expansive open layout finds the kitchen and dining room together, with enough space for a large table and hosting big dinner parties. Two bedrooms are found past a shared full bathroom at the end of the hall. For smaller families or new couples who may not need all of the bedrooms, this is the perfect space to turn in to a nursery or an office, or even an in-home workout room. Much like the exterior of this home, the layout can be modified to fit your every need and to ensure a functional and enjoyable home for years to come. 

See All Plan Options
 

FEATURES & DETAILS

Kitchen features
Country Kitchen
Kitchen Island
Bedroom features
Primary Bdrm Upstairs
Separate Tub and Shower
Walk-in Closet
Exterior features
Covered Front Porch
Front Porch
Foundation Options
Basement
Crawlspace
Daylight Basement
Slab
Lot Options
Suited for sloping lot
Additional features
Arches
Dining Room
Family Room
Fireplace
Laundry 1st Fl
Storage Space
Unfinished Space
Garage Location
Side
Garage Options
Attached
Oversized
Tandem
1,398 Ft
2
Total Heated
1,073 Ft
2
1st Floor
325 Ft
2
2nd Floor
3
Bedrooms
2
Bathrooms
2
Garage
1.5
Stories
60' 0"
Width
30' 0"
Depth
21' 10"
Height
8' 0"
Main Floor Ceiling
8' 0"
Upper Floor Ceiling
2x6
Framing
Truss
Roof Framing
8/12
Primary Roof Pitch
12/12
Secondary Roof Pitch
Single
Dwelling Number
None
Bonus Access

Unheated Living Space
540 Ft
2
Garage
 

Plan Package Options

 Select Plan Package
 Need To Reverse Plan? (Optional)
  Select Foundation Option
  Add-Ons (Optional)
INCLUDED WITH YOUR PURCHASE

Free Ground shipping in the U.S.

FREE

Home Building & Product Ideas Organizer

Sub Total
$0
Free Shipping
Please allow 3-5 business days for delivery of this plan Please check our PDFs NOW collection for plans that can be downloaded and received immediately or live chat us to help you find a similar plan available now.
QUESTIONS OR NEED HELP ORDERING? LIVE CHAT OR CALL US AT 866-214-2242
Plan Packages

Each set of construction documents includes detailed, dimensioned floor plans, basic electric layouts, cross sections, roof details, cabinet layouts and elevations, as well as general IRC specifications. They contain virtually all of the information required to construct your home. The typical plan set does not include any plumbing, HVAC drawings, or engineering stamps due to the wide variety of specific needs, local codes, and climatic conditions. These details and specifications are easily obtained from your builder, contractors, and/or local engineers.

BEST PRICE GUARANTEE

Find the same house plan (modifications included!) and package for less on another site, show us the URL and we'll give you the difference plus an additional 10% back.

100% SATISFACTION GUARANTEE

We offer a one-time, 30-day exchange policy for unused, printed plan packages in the event you aren't satisfied with your first selection.

 
 

Plan 3331  Back to plan page

Loading...