Get discounts,
promos, see our
newest plans
and more!
+ 15% off any plan
See terms opt out anytime


No Thanks

Thanks for
signing up!


Use Code:

SIGNUP15

And save 15% off any plan!

Check your email for details.

CLOSE
Search Plans
Customer Reviews
     
15% off ALL House Plans Sitewide
15% off ALL House Plans Sitewide
15% off ALL House Plans Sitewide

Code: HONOR
Sale ends midnight 5/29/2026 PST

Covington Charming Southern Style House, Plan 6899

 
 

Sq Ft
2,450 FT²

Beds
4

Baths
3

Stories
2

Garage
2

Depth
63' 4"

Width
70'
On Sale
$1,700.00
$2,000.00
EXCLUSIVE PLAN
© copyright by designer
 View All 22 Images | Photographs may reflect modified home
Sq Ft
2,450 FT²
Beds
4
Baths
3
Stories
2
Garage
2
Depth
63' 4"
Width
70'
 
Click to Zoom In on Floor Plan
© copyright by designer
 
 

About This Plan

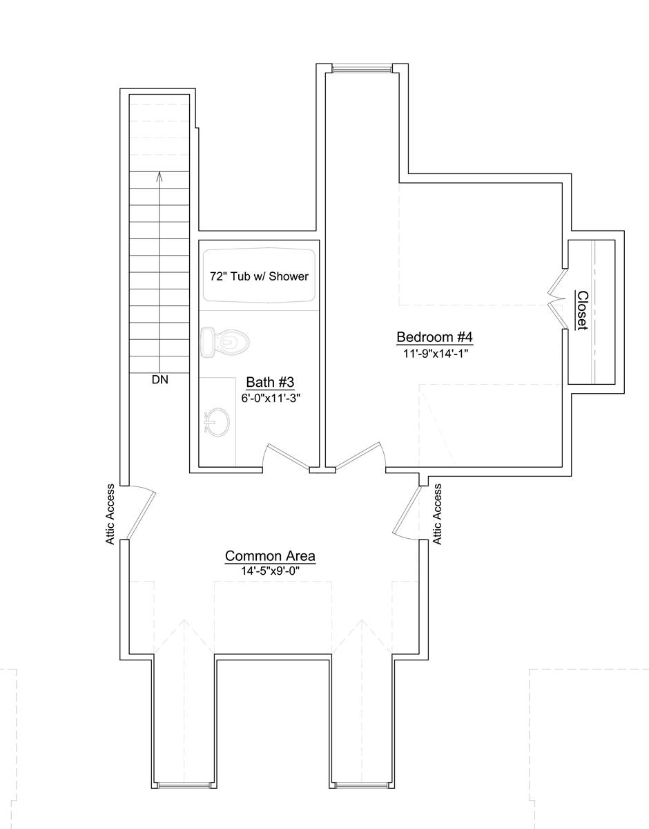
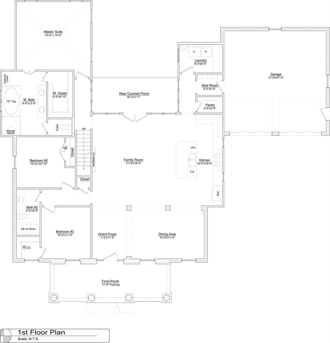
Columns and dormers lend a Southern appeal to this charming house plan, with four bedrooms, three baths and 2,450 square feet of living space. The central family room in this home plan is sure to be the main gathering place for entertaining or just relaxing. The gourmet kitchen incorporates a handy pantry and island snack space for four, as it serves meals to the good-sized dining area. Expand any occasion to the front and rear porches for a breath of fresh air. The quiet master suite offers a large sleeping area and a walk-in closet. In the private bath you'll find a garden tub, a separate shower and a double vanity. Two more bedrooms, one with a walk-in closet, share a hall bath on this level of the home design. On the second floor, another bath serves a fourth bedroom, while a common area is great for lounging or studying. Our customers love the mudroom and laundry room, which promote organization.  

See All Plan Options
 

FEATURES & DETAILS

Kitchen features
Walk-in Pantry
Bedroom features
Double Vanity Sink
Walk-in Closet
Exterior features
Covered Front Porch
Covered Rear Porch
Front Porch
Rear Porch
Foundation Options
Crawlspace
Slab
Additional features
Dining Room
Family Room
Foyer
Laundry 1st Fl
Mud Room
Open Floor Plan
Storage Space
Vaulted Ceilings
Garage Location
Side
Garage Options
Attached
Front-entry
3,338 Ft
2
Total Structure
2,450 Ft
2
Total Heated
1,953 Ft
2
1st Floor
497 Ft
2
2nd Floor
4
Bedrooms
3
Bathrooms
2
Garage
2
Stories
70' 0"
Width
63' 4"
Depth
38' 0"
Height
10' 0"
Main Floor Ceiling
9' 0"
Upper Floor Ceiling
2x6
Framing
Stick
Roof Framing
20/12
Secondary Roof Pitch
Single
Dwelling Number

Unheated Living Space
533 Ft
2
Garage
355 Ft
2
Porch
 

Plan Package Options

 Select Plan Package
 Need To Reverse Plan? (Optional)
  Select Foundation Option
  Add-Ons (Optional)
INCLUDED WITH YOUR PURCHASE

Free Ground shipping in the U.S.

FREE

Home Building & Product Ideas Organizer

Sub Total
$0
Free Shipping
This plan is not available for building in a 75 mile radius around the Metairie, LA area. Click here for a map. Please call 866-214-2242 for more information.
QUESTIONS OR NEED HELP ORDERING? LIVE CHAT OR CALL US AT 866-214-2242
Plan Packages

Each set of construction documents typically includes detailed, dimensioned floor plans, basic electric layouts, cross sections, roof details, cabinet layouts, and elevations, as well as general IRC specifications. Please refer to the ARCHITECT or DESIGNER’S PLAN DETAILS link above the floor plan on any plan page to determine the specific details for each plan. Our house plans contain virtually all of the information required to construct your home. The typical plan set does not include plumbing, HVAC drawings, or engineering stamps due to the wide variety of specific needs, local codes, and climatic conditions. These details and specifications are easily obtained from your builder, contractors, and/or local engineers.

BEST PRICE GUARANTEE

Find the same house plan (modifications included!) and package for less on another site, show us the URL and we'll give you the difference plus an additional 10% back.

100% SATISFACTION GUARANTEE

We offer a one-time, 30-day exchange policy for unused, printed plan packages in the event you aren't satisfied with your first selection.

Customer Reviews of House Plan 6899
6/3/2021
Milinda of Gray, GA
Customer Review:
I had a fabulous experience ordering my house plans !! My adviser, Amanda, was knowledgeable and always responded to my questions and requests immediately. Deciding on, and buying house plans is a very daunting task, but I felt confident in their ability because of the great customer service I received. I also need to give a shout out to Whitney, who was also very helpful everytime I called. I received my plans within the exact amount of time they told me, and the updates to the design were all correct. They were the perfect company to partner with on this adventure and I can only hope the rest of the home building experience will be this flawless.

SEE All Reviews
 
 

Plan 6899  Back to plan page

Loading...