Get discounts,
promos, see our
newest plans
and more!
+ 15% off any plan
See terms opt out anytime


No Thanks

Thanks for
signing up!


Use Code:

SIGNUP15

And save 15% off any plan!

Check your email for details.

CLOSE
Search Plans
Customer Reviews
     
15% off ALL House Plans Sitewide
15% off ALL House Plans Sitewide
15% off ALL House Plans Sitewide

Code: HONOR
Sale ends midnight 5/31/2026 PST

Country Side Builder Ready Farm House Style House, Plan 8346

 
 

Sq Ft
2,117 FT²

Beds
3

Baths
2

Stories
1

Garage
2

Depth
50'

Width
69'
On Sale
$1,479.00
$1,740.00
© copyright by designer
 View All 15 Images | Photographs may reflect modified home
Sq Ft
2,117 FT²
Beds
3
Baths
2
Stories
1
Garage
2
Depth
50'
Width
69'
 
Click to Zoom In on Floor Plan
© copyright by designer
 
 

About This Plan

Budget friendly 2,117 sqft modern farmhouse with 3 bedroom and 2 bathrooms, all on one floor. The foyer is over sized and opens directly into the huge living room. The dining space is to the left of the entrance and features cathedral style ceilings. The country kitchen is wide open to the living area and is situated around an eat-in island that has a vegetable washing sink. There is a walk in pantry and a designated mechanical space located off of the kitchen. The master suite is separated from the secondary bedrooms and features his and he closets and sink spaces. There is additional bonus space located on the second story for an additional bedroom, game room, or future space! 

See All Plan Options
 

FEATURES & DETAILS

Kitchen features
Country Kitchen
Kitchen Island
Walk-in Pantry
Bedroom features
Double Vanity Sink
His and Hers Primary Closets
Primary Bdrm Main Floor
Separate Tub and Shower
Sitting Area
Split Bedrooms
Walk-in Closet
Exterior features
Covered Front Porch
Covered Rear Porch
Front Porch
Rear Porch
Foundation Options
Basement
Crawlspace
Slab
Lot Options
Suited for view lot
Additional features
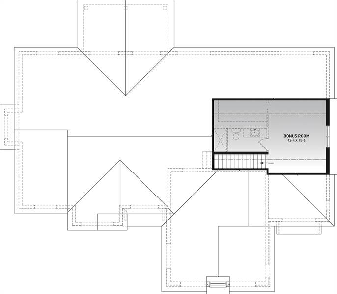
Bonus Room
Dining Room
Fireplace
Foyer
Great Room
Laundry 1st Fl
Open Floor Plan
Unfinished Space
Vaulted Ceilings
Garage Location
Front
Garage Options
Attached
Front-entry
2,117 Ft
2
Total Heated
2,117 Ft
2
1st Floor
3
Bedrooms
2
Bathrooms
2
Garage
1
Stories
69' 0"
Width
50' 0"
Depth
26' 11"
Height
9' 0"
Main Floor Ceiling
2x6
Framing
Truss
Roof Framing
10/12
Primary Roof Pitch
10/12
Gable Roof Pitch
Single
Dwelling Number
2nd Floor
Bonus Access

Unheated Living Space
547 Ft
2
Garage
180 Ft
2
Patio
360 Ft
2
Bonus Room
 

Plan Package Options

 Select Plan Package
 Need To Reverse Plan? (Optional)
  Select Foundation Option
  Add-Ons (Optional)
INCLUDED WITH YOUR PURCHASE

Free Ground shipping in the U.S.

FREE

Home Building & Product Ideas Organizer

Sub Total
$0
Free Shipping
Please allow 3-5 business days for delivery of this plan Please check our PDFs NOW collection for plans that can be downloaded and received immediately or live chat us to help you find a similar plan available now.
QUESTIONS OR NEED HELP ORDERING? LIVE CHAT OR CALL US AT 866-214-2242
Plan Packages

Each set of construction documents typically includes detailed, dimensioned floor plans, basic electric layouts, cross sections, roof details, cabinet layouts, and elevations, as well as general IRC specifications. Please refer to the ARCHITECT or DESIGNER’S PLAN DETAILS link above the floor plan on any plan page to determine the specific details for each plan. Our house plans contain virtually all of the information required to construct your home. The typical plan set does not include plumbing, HVAC drawings, or engineering stamps due to the wide variety of specific needs, local codes, and climatic conditions. These details and specifications are easily obtained from your builder, contractors, and/or local engineers.

BEST PRICE GUARANTEE

Find the same house plan (modifications included!) and package for less on another site, show us the URL and we'll give you the difference plus an additional 10% back.

100% SATISFACTION GUARANTEE

We offer a one-time, 30-day exchange policy for unused, printed plan packages in the event you aren't satisfied with your first selection.

 
 

Plan 8346  Back to plan page

Loading...