Get discounts,
promos, see our
newest plans
and more!
+ 15% off any plan
See terms opt out anytime


No Thanks

Thanks for
signing up!


Use Code:

SIGNUP15

And save 15% off any plan!

Check your email for details.

CLOSE
Search Plans
Customer Reviews
     
22% Off House Plans Sitewide Ends Sunday
22% Off House Plans Sitewide Ends Sunday
22% Off House Plans Sitewide Ends Sunday

Code: SAVE22
Sale ends midnight 12/7/2025 PST

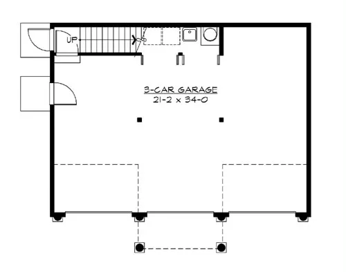
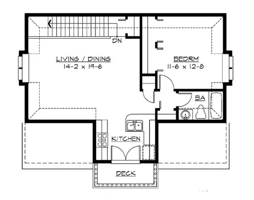
Sq Ft
755 FT²

Beds
1

Baths
1

Stories
2

Garage
3

Depth
30'

Width
35'
On Sale
$1,092.00
$1,400.00
© copyright by designer
 View All 7 Images | Photographs may reflect modified home
Sq Ft
755 FT²
Beds
1
Baths
1
Stories
2
Garage
3
Depth
30'
Width
35'
 
Click to Zoom In on Floor Plan
© copyright by designer
 
 

About This Plan

Designed for extended-family flexibility, the Cottage Grove Companion offers a large 3-car garage, topped by a delightful guesthouse plan featuring a private entry with a spacious one-bedroom apartment. Traditional roof forms and classic detailing make this plan an attractive fit in any neighborhood. 

See All Plan Options
 

FEATURES & DETAILS

Kitchen features
Peninsula / Eating Bar
Exterior features
Deck
No Porch
Foundation Options
Slab
Additional features
Storage Space
Workshop
Garage Location
Front
Garage Options
Front-entry
755 Ft
2
Total Heated
755 Ft
2
2nd Floor
1
Bedrooms
1
Bathrooms
3
Garage
2
Stories
35' 0"
Width
30' 0"
Depth
27' 6"
Height
9' 0"
Main Floor Ceiling
9' 0"
Upper Floor Ceiling
2x6
Framing
Stick
Roof Framing
12/12
Primary Roof Pitch
Garage
Dwelling Number

Unheated Living Space
900 Ft
2
Garage
 

Plan Package Options

 Select Plan Package
Sale: $1,092
PDF Single Build
$1,400

Digital plans emailed to you in PDF format that allows for printing copies and sharing electronically with contractors, subs, decorators, and more. This package includes a license to build the home one time.

Sale: $1,092
Sale: $1,872
CAD + PDF Unlimited Build
$2,400

CAD files are a complete set of construction drawings delivered electronically. They can be used for any type of modification—including major design changes and engineering—and include a release granting permission to modify the plan. Most CAD plan orders are emailed the same or next business day.
 
This package also comes with a PDF set of plans and a multi-use building license, granting permission to construct the home an unlimited number of times, along with a copyright release for making modifications and printing unlimited copies.
 
CAD files are provided in .dwg format. For details on the specific CAD program used, please refer to the PLAN DETAILS section located above the floor plan on each plan’s page.

Sale: $1,872
 Need To Reverse Plan? (Optional)
$300
Readable Reverse

Reverse house plans with readable text and dimensions 

$300
  Select Foundation Option
  Add-Ons (Optional)
INCLUDED WITH YOUR PURCHASE

Free Ground shipping in the Continental U.S.

FREE

Design consultation with the architect or designer to discuss your plan

Home Building & Product Ideas Organizer

Sub Total
$0
Free Shipping
IMPORTANT NOTE: Due to state regulations, this home is not available for purchase in the State of Washington. Contact us for more information.

Note: This plan cannot be purchased for construction in Washington State.
QUESTIONS OR NEED HELP ORDERING? LIVE CHAT OR CALL US AT 866-214-2242
Plan Packages

Each set of construction documents includes detailed, dimensioned floor plans, basic electric layouts, cross sections, roof details, cabinet layouts and elevations, as well as general IRC specifications. They contain virtually all of the information required to construct your home. The typical plan set does not include any plumbing, HVAC drawings, or engineering stamps due to the wide variety of specific needs, local codes, and climatic conditions. These details and specifications are easily obtained from your builder, contractors, and/or local engineers.

BEST PRICE GUARANTEE

find the same house plan (modifications included!) and package for less on another site, show us the URL and we'll give you the difference plus an additional 5% back.

100% SATISFACTION GUARANTEE

We offer a one-time, 30-day exchange policy for unused, non-electronic plan packages in the event you aren't satisfied with your first selection.

 
 

Plan 3203  Back to plan page

Loading...