Get discounts,
promos, see our
newest plans
and more!
+ 15% off any plan
See terms opt out anytime


No Thanks

Thanks for
signing up!


Use Code:

SIGNUP15

And save 15% off any plan!

Check your email for details.

CLOSE
Search Plans
Customer Reviews
     
15% off ALL House Plans Sitewide
15% off ALL House Plans Sitewide
15% off ALL House Plans Sitewide

Code: HONOR
Sale ends midnight 5/31/2026 PST

Modern Two Story Farm House Style House, Plan 8820

 
 

Sq Ft
3,257 FT²

Beds
5

Baths
3.5

Stories
2

Garage
3

Depth
39'

Width
95' 6"
On Sale
$1,827.50
$2,150.00
© copyright by designer
 View All 6 Images | Photographs may reflect modified home
Sq Ft
3,257 FT²
Beds
5
Baths
3.5
Stories
2
Garage
3
Depth
39'
Width
95' 6"
 
Click to Zoom In on Floor Plan
© copyright by designer
 
 

About This Plan

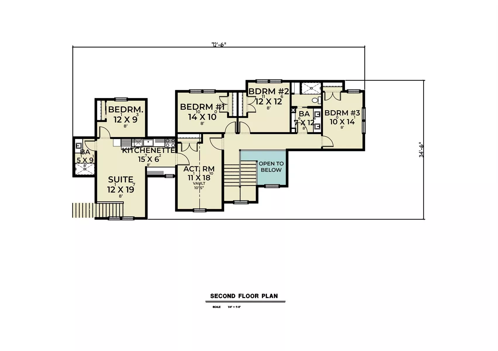
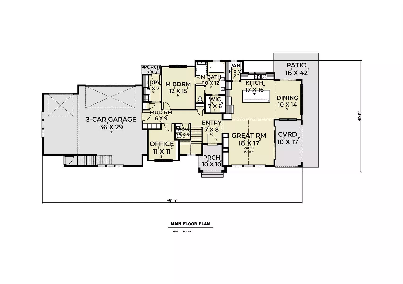
The marvelous modern farmhouse is packed full of special features just waiting to be discovered. With its 2 full stories comprising more than 3,257 square feet of space, this is the perfect home for a new or growing family who want something that will last them through all of life's fun moments. And since it has 5 bedrooms and 3.5 bathrooms, there is space for you, the kids, and guests to all relax and enjoy. The main floor is highlighted by an open layout, full of natural light thanks to the picturesque windows that frame every wall. Notice the flow from the vaulted living room back to the gourmet island kitchen and dining nook, along with the nearby covered porch. The first level also features the master suite and an office, privately tucked back by the garage, making relaxation mere steps away. Meanwhile, the second floor houses all of the auxiliary bedroom suites, along with a full in-law suite with a kitchenette! There is even a large activity space that is perfect for customizing to your exact needs.  

See All Plan Options
 

FEATURES & DETAILS

Kitchen features
Kitchen Island
Pantry
Peninsula / Eating Bar
Walk-in Pantry
Bedroom features
Double Vanity Sink
Guest Suite
Primary Bdrm Main Floor
Separate Tub and Shower
Exterior features
Covered Front Porch
Covered Rear Porch
Rear Porch
Additional features
Dining Room
Exercise Room
Fireplace
Great Room
Home Office
In-law Suite
Laundry 1st Fl
Mud Room
Open Floor Plan
Vaulted Ceilings
Vaulted Great Room/Living
Garage Location
Rear
Garage Options
Attached
Rear-entry
4,812 Ft
2
Total Structure
3,257 Ft
2
Total Heated
1,807 Ft
2
1st Floor
960 Ft
2
2nd Floor
5
Bedrooms
3.5
Bathrooms
3
Garage
2
Stories
95' 6"
Width
39' 0"
Depth
28' 3"
Height
9' 0"
Main Floor Ceiling
8' 0"
Upper Floor Ceiling
19' 10"
Living/Great Room Ceiling
2x6
Framing
Truss
Roof Framing
10/12
Primary Roof Pitch
8/12
Secondary Roof Pitch
Single
Dwelling Number
None
Bonus Access

Unheated Living Space
1,046 Ft
2
Garage
 

Plan Package Options

 Select Plan Package
 Need To Reverse Plan? (Optional)
  Select Foundation Option
  Add-Ons (Optional)
INCLUDED WITH YOUR PURCHASE

Free Ground shipping in the U.S.

FREE

Home Building & Product Ideas Organizer

Sub Total
$0
Free Shipping
QUESTIONS OR NEED HELP ORDERING? LIVE CHAT OR CALL US AT 866-214-2242
Plan Packages

Each set of construction documents typically includes detailed, dimensioned floor plans, basic electric layouts, cross sections, roof details, cabinet layouts, and elevations, as well as general IRC specifications. Please refer to the ARCHITECT or DESIGNER’S PLAN DETAILS link above the floor plan on any plan page to determine the specific details for each plan. Our house plans contain virtually all of the information required to construct your home. The typical plan set does not include plumbing, HVAC drawings, or engineering stamps due to the wide variety of specific needs, local codes, and climatic conditions. These details and specifications are easily obtained from your builder, contractors, and/or local engineers.

BEST PRICE GUARANTEE

Find the same house plan (modifications included!) and package for less on another site, show us the URL and we'll give you the difference plus an additional 10% back.

100% SATISFACTION GUARANTEE

We offer a one-time, 30-day exchange policy for unused, printed plan packages in the event you aren't satisfied with your first selection.

 
 

Plan 8820  Back to plan page

Loading...