Get discounts,
promos, see our
newest plans
and more!
+ 15% off any plan
See terms opt out anytime


No Thanks

Thanks for
signing up!


Use Code:

SIGNUP15

And save 15% off any plan!

Check your email for details.

CLOSE
Search Plans
     
15% Off House Plans Sitewide Ends Sunday
15% Off House Plans Sitewide Ends Sunday
15% Off House Plans Sitewide Ends Sunday

Code: SAVE15
Sale ends midnight 11/16/2025 PST

Contemporary Farmhouse 813 4 Bedroom Farm House Style House, Plan 7286

 
 

Sq Ft
3,190 FT²

Beds
4

Baths
2.5

Stories
2

Garage
2

Depth
39'

Width
83'
On Sale
$1,827.50
$2,150.00
© copyright by designer
 View All 12 Images | Photographs may reflect modified home
Sq Ft
3,190 FT²
Beds
4
Baths
2.5
Stories
2
Garage
2
Depth
39'
Width
83'
 
Click to Zoom In on Floor Plan
© copyright by designer
 
 

About This Plan

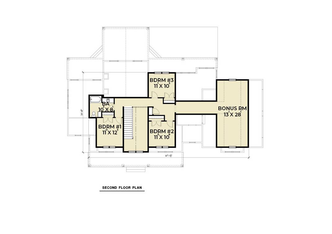
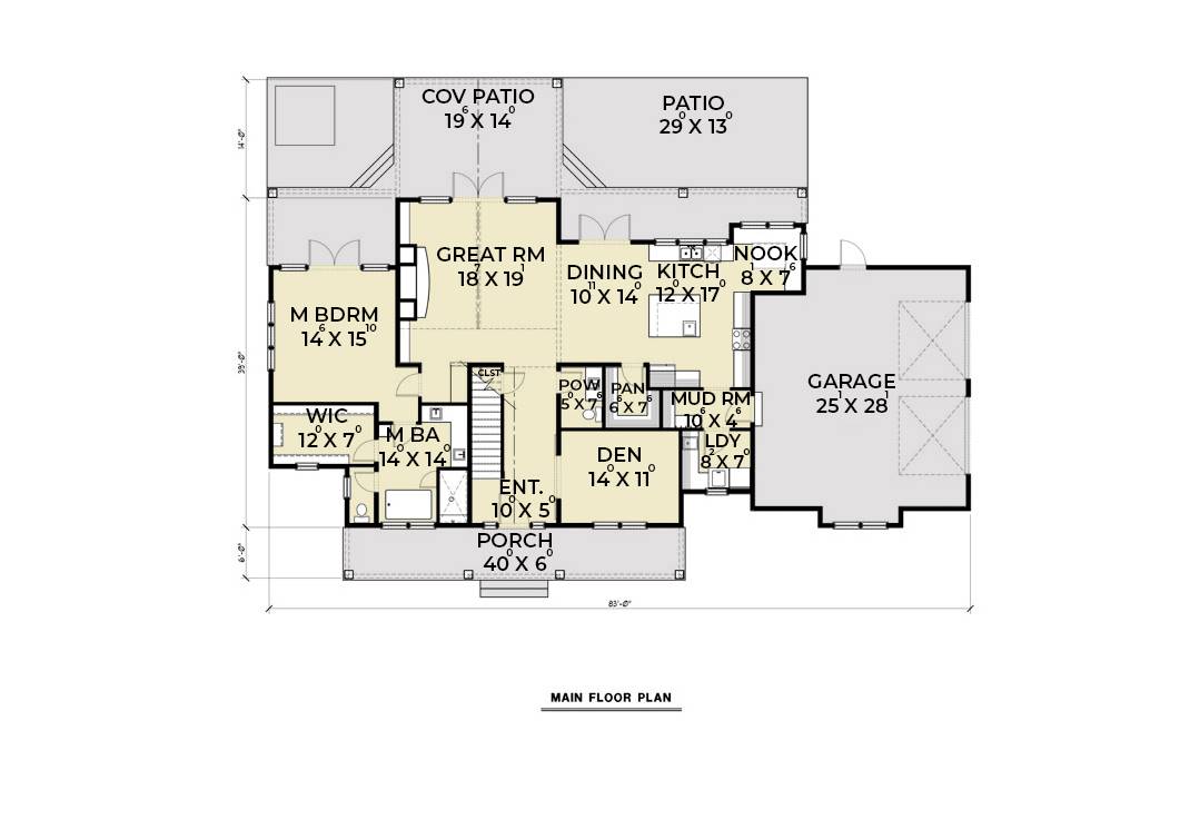
The traditional, simple nature of this 2-story farmhouse makes it a wonderful option for families of all size and ages. 3,190 square feet alongside 4 beds and 2.5 baths means that this plan offers ample space throughout. A charming front facade welcomes you inside, past the front porch and on to the foyer. From there, the open concept design flows from the family den, into the vaulted great room, dining room, and island kitchen. A massive covered patio off of the back is perfect for entertaining, while the first-floor master suite is convenient and comfortable. Upstairs is great for the kids, offering 3 large bedrooms and an impressive bonus room that sits above the 2-car garage. 

See All Plan Options
 

FEATURES & DETAILS

Kitchen features
Kitchen Island
Nook / Breakfast Area
Walk-in Pantry
Bedroom features
Double Vanity Sink
Primary Bdrm Main Floor
Separate Tub and Shower
Walk-in Closet
Exterior features
Covered Front Porch
Covered Rear Porch
Foundation Options
Crawlspace
Additional features
Bonus Room
Dining Room
Fireplace
Great Room
Home Office
Laundry 1st Fl
Mud Room
Open Floor Plan
Vaulted Ceilings
Garage Location
Side
Garage Options
Attached
Side-entry
3,190 Ft
2
Total Heated
1,966 Ft
2
1st Floor
718 Ft
2
2nd Floor
4
Bedrooms
2.5
Bathrooms
2
Garage
2
Stories
83' 0"
Width
39' 0"
Depth
28' 4"
Height
9' 0"
Main Floor Ceiling
8' 0"
Upper Floor Ceiling
2x6
Framing
Truss
Roof Framing
12/12
Primary Roof Pitch
4:12
Secondary Roof Pitch
Single
Dwelling Number
2nd Floor
Bonus Access

Unheated Living Space
735 Ft
2
Garage
240 Ft
2
Porch
564 Ft
2
Patio
506 Ft
2
Bonus Room
 

Plan Package Options

 Select Plan Package
Sale: $1,084
PDF Bid Set
$1,275

Home plans stamped "NOT FOR CONSTRUCTION" for cost estimating and bidding purposes only; a minimum 5 set plan package must be purchased within 90 days for a license to build plan set; a credit will be applied towards your house plan upgrade

Sale: $1,084
Sale: $1,828
PDF Single Build
$2,150

Digital plans emailed to you in PDF format that allows for printing copies and sharing electronically with contractors, subs, decorators, and more. This package includes a license to build the home one time.

Sale: $1,828
Sale: $2,210
5 Printed Sets + PDF
$2,600

Digital plan emailed to you in PDF format that allows for printing copies on a home printer or local print shop and sharing with contractors, subs, decorators, and more. PLUS five printed sets shipped and delivered 3-5 business days.

Sale: $2,210
Sale: $2,252
CAD + PDF Single Build
$2,650

CAD files are a complete set of construction drawings delivered electronically. They can be used for any type of modification—including major design changes and engineering—and include a release granting permission to modify the plan. Most CAD plan orders are emailed the same or next business day.
 
This package also comes with a PDF set of plans and a copyright release for making modifications and printing unlimited copies.
 
CAD files are provided in .dwg format. For details on the specific CAD program used, please refer to the PLAN DETAILS section located above the floor plan on each plan’s page.

Sale: $2,252
 Need To Reverse Plan? (Optional)
$195
Readable Reverse

Reverse house plans with readable text and dimensions 

$195
  Select Foundation Option
  Add-Ons (Optional)
INCLUDED WITH YOUR PURCHASE

Free Ground shipping in the Continental U.S.

FREE

Design consultation with the architect or designer to discuss your plan

Home Building & Product Ideas Organizer

Sub Total
$0
Free Shipping
QUESTIONS OR NEED HELP ORDERING? LIVE CHAT OR CALL US AT 866-214-2242
Plan Packages

Each set of construction documents includes detailed, dimensioned floor plans, basic electric layouts, cross sections, roof details, cabinet layouts and elevations, as well as general IRC specifications. They contain virtually all of the information required to construct your home. The typical plan set does not include any plumbing, HVAC drawings, or engineering stamps due to the wide variety of specific needs, local codes, and climatic conditions. These details and specifications are easily obtained from your builder, contractors, and/or local engineers.

BEST PRICE GUARANTEE

find the same house plan (modifications included!) and package for less on another site, show us the URL and we'll give you the difference plus an additional 5% back.

100% SATISFACTION GUARANTEE

We offer a one-time, 30-day exchange policy for unused, non-electronic plan packages in the event you aren't satisfied with your first selection.

 
 

Plan 7286  Back to plan page

Loading...