Get discounts,
promos, see our
newest plans
and more!
+ 15% off any plan
See terms opt out anytime


No Thanks

Thanks for
signing up!


Use Code:

SIGNUP15

And save 15% off any plan!

Check your email for details.

CLOSE
Search Plans
Customer Reviews
     
15% off ALL House Plans Sitewide
15% off ALL House Plans Sitewide
15% off ALL House Plans Sitewide

Code: HONOR
Sale ends midnight 5/31/2026 PST

Rustic Walkout Basement Craftsman Style House, Plan 9798

 
 

Sq Ft
4,713 FT²

Beds
5

Baths
4.5

Stories
2

Garage
2

Depth
54'

Width
77'
On Sale
$1,827.50
$2,150.00
© copyright by designer
 View All 7 Images | Photographs may reflect modified home
Sq Ft
4,713 FT²
Beds
5
Baths
4.5
Stories
2
Garage
2
Depth
54'
Width
77'
 
Click to Zoom In on Floor Plan
© copyright by designer
 
 

About This Plan

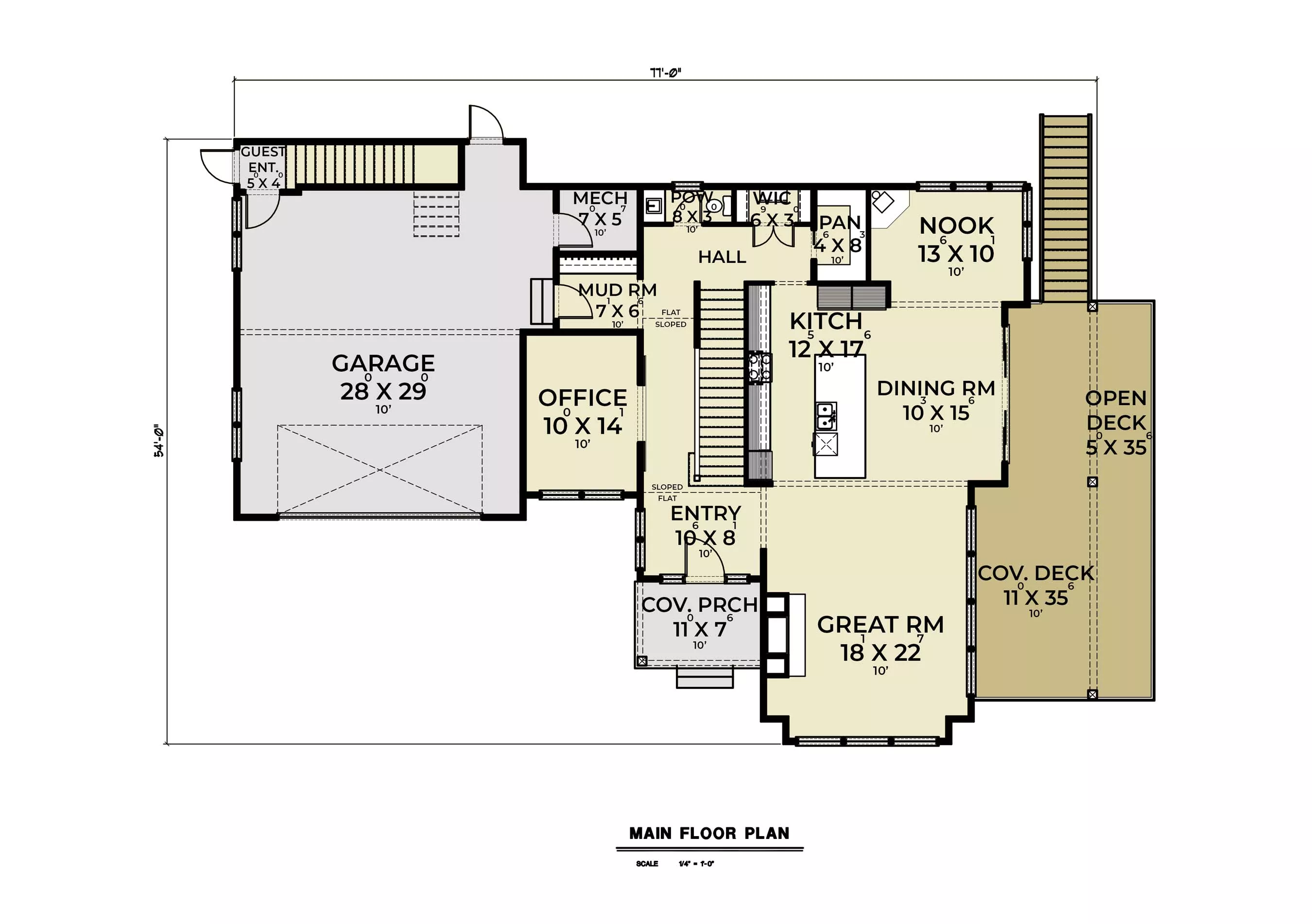
Made for a lot that slopes to the side, House Plan 9798 offers a unique, highly functional layout for families and their guests/renters. The garage is located on the main level, allowing three floors of living space to stack up on the downgrade. With tons of windows on this side of the house, you can easily orient the floor plan for views! Starting from the bottom, the finished basement includes a large activity space with a bar, a bedroom, a hall bathroom, and a massive storage room that can handle everything you'd usually store in the basement or attic. The main level features an office by the foyer, a mudroom entrance coming in from the garage, a powder room, and open-concept living spaces lined up from the great room, to the kitchen/dining area, to the nook, all beside a spacious deck that makes it easy to expand to the outdoors. Upstairs, you'll find a luxurious master suite with a vaulted bedroom and five-piece bath, two more bedrooms that share a hall bath, and the laundry room to round out the house. But that's not all! Check out the guest quarters over the garage with its own private exterior access--it will impress friends and renters alike with its kitchen, full bath with laundry, and den. House Plan 9798 has so much potential for customization throughout!  

See All Plan Options
 

FEATURES & DETAILS

Kitchen features
Kitchen Island
L-Shaped
Nook / Breakfast Area
Walk-in Pantry
Bedroom features
Double Vanity Sink
Guest Suite
Primary Bdrm Upstairs
Separate Tub and Shower
Walk-in Closet
Exterior features
Covered Front Porch
Covered Rear Porch
Deck
Outdoor Living Space
Lot Options
Suited for sloping lot
Suited for view lot
Additional features
Bonus Room
Dining Room
Exercise Room
Family Room
Fireplace
Foyer
Great Room
Home Office
Laundry 2nd Fl
Library/Media Rm
Mud Room
Open Floor Plan
Rec Room
Storage Space
Unfinished Space
Vaulted Ceilings
Vaulted Primary
Garage Location
Front
Garage Options
Attached
Front-entry
Oversized
4,713 Ft
2
Total Heated
1,690 Ft
2
1st Floor
1,987 Ft
2
2nd Floor
1,036 Ft
2
Lower Floor
5
Bedrooms
4.5
Bathrooms
2
Garage
2
Stories
77' 0"
Width
54' 0"
Depth
40' 1"
Height
10' 0"
Main Floor Ceiling
9' 0"
Upper Floor Ceiling
10' 0"
Lower Floor Ceiling
2x6
Framing
Truss
Roof Framing
12/12
Primary Roof Pitch
4/12
Secondary Roof Pitch
Single
Dwelling Number

Unheated Living Space
919 Ft
2
Garage
618 Ft
2
Storage
517 Ft
2
Deck
 

Plan Package Options

 Select Plan Package
 Need To Reverse Plan? (Optional)
  Select Foundation Option
  Add-Ons (Optional)
INCLUDED WITH YOUR PURCHASE

Free Ground shipping in the U.S.

FREE

Home Building & Product Ideas Organizer

Sub Total
$0
Free Shipping
QUESTIONS OR NEED HELP ORDERING? LIVE CHAT OR CALL US AT 866-214-2242
Plan Packages

Each set of construction documents typically includes detailed, dimensioned floor plans, basic electric layouts, cross sections, roof details, cabinet layouts, and elevations, as well as general IRC specifications. Please refer to the ARCHITECT or DESIGNER’S PLAN DETAILS link above the floor plan on any plan page to determine the specific details for each plan. Our house plans contain virtually all of the information required to construct your home. The typical plan set does not include plumbing, HVAC drawings, or engineering stamps due to the wide variety of specific needs, local codes, and climatic conditions. These details and specifications are easily obtained from your builder, contractors, and/or local engineers.

BEST PRICE GUARANTEE

Find the same house plan (modifications included!) and package for less on another site, show us the URL and we'll give you the difference plus an additional 10% back.

100% SATISFACTION GUARANTEE

We offer a one-time, 30-day exchange policy for unused, printed plan packages in the event you aren't satisfied with your first selection.

 
 

Plan 9798  Back to plan page

Loading...