Get discounts,
promos, see our
newest plans
and more!
+ 15% off any plan
See terms opt out anytime


No Thanks

Thanks for
signing up!


Use Code:

SIGNUP15

And save 15% off any plan!

Check your email for details.

CLOSE
Search Plans
Customer Reviews
     
15% off ALL House Plans Sitewide
15% off ALL House Plans Sitewide
15% off ALL House Plans Sitewide

Code: HONOR
Sale ends midnight 5/31/2026 PST

Contemporary 217 3 Bedroom Contemporary Style House, Plan 7497

 
 

Sq Ft
2,586 FT²

Beds
3

Baths
2.5

Stories
3

Garage
2

Depth
43'

Width
48'
On Sale
$1,487.50
$1,750.00
© copyright by designer
 View All 7 Images | Photographs may reflect modified home
Sq Ft
2,586 FT²
Beds
3
Baths
2.5
Stories
3
Garage
2
Depth
43'
Width
48'
 
Click to Zoom In on Floor Plan
© copyright by designer
 
 

About This Plan

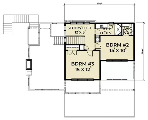
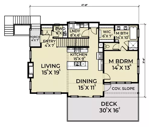
A spectacular home that stands 3 stories high and is perfect for a sloping or recessed lot, this contemporary style masterpiece is a unique and quality option. Amongst its 3 levels, which includes things such as a drive-under 2-car garage as well as 3 beds and 3 baths, this home offers 2,586 square feet of living space. The first level begins with the garage and basement. After you park your car, you will enter the basement to find a large family room and mud room. Upstairs is home to the main level and general spaces, including the open concept living room and dining room, as well as the gourmet island kitchen. Here you will also find your master suite, along with its spa-style bath and walk-in closet. Finally, this floor offers access to a large front deck, overlooking the lot below. The upper and final floor provides you with 2 more bedrooms, a full bath, and a convenient study nook, the perfect place to help your kids with homework or projects. 

See All Plan Options
 

FEATURES & DETAILS

Kitchen features
Kitchen Island
Peninsula / Eating Bar
Walk-in Pantry
Bedroom features
Double Vanity Sink
Primary Bdrm Main Floor
Separate Tub and Shower
Walk-in Closet
Exterior features
Covered Front Porch
Deck
Foundation Options
Crawlspace
Lot Options
Suited for sloping lot
Additional features
Dining Room
Family Room
Fireplace
Great Room
Laundry 1st Fl
Library/Media Rm
Loft / Balcony
Mud Room
Open Floor Plan
Garage Location
Front
Garage Options
Attached
Side-entry
3,227 Ft
2
Total Structure
2,586 Ft
2
Total Heated
1,296 Ft
2
1st Floor
632 Ft
2
2nd Floor
658 Ft
2
Lower Floor
3
Bedrooms
2.5
Bathrooms
2
Garage
3
Stories
48' 0"
Width
43' 0"
Depth
35' 6"
Height
9' 0"
Main Floor Ceiling
8' 0"
Upper Floor Ceiling
2x6
Framing
Truss
Roof Framing
2/12
Primary Roof Pitch
Single
Dwelling Number

Unheated Living Space
641 Ft
2
Garage
102 Ft
2
Patio
 

Plan Package Options

 Select Plan Package
 Need To Reverse Plan? (Optional)
  Select Foundation Option
  Add-Ons (Optional)
INCLUDED WITH YOUR PURCHASE

Free Ground shipping in the U.S.

FREE

Home Building & Product Ideas Organizer

Sub Total
$0
Free Shipping
QUESTIONS OR NEED HELP ORDERING? LIVE CHAT OR CALL US AT 866-214-2242
Plan Packages

Each set of construction documents typically includes detailed, dimensioned floor plans, basic electric layouts, cross sections, roof details, cabinet layouts, and elevations, as well as general IRC specifications. Please refer to the ARCHITECT or DESIGNER’S PLAN DETAILS link above the floor plan on any plan page to determine the specific details for each plan. Our house plans contain virtually all of the information required to construct your home. The typical plan set does not include plumbing, HVAC drawings, or engineering stamps due to the wide variety of specific needs, local codes, and climatic conditions. These details and specifications are easily obtained from your builder, contractors, and/or local engineers.

BEST PRICE GUARANTEE

Find the same house plan (modifications included!) and package for less on another site, show us the URL and we'll give you the difference plus an additional 10% back.

100% SATISFACTION GUARANTEE

We offer a one-time, 30-day exchange policy for unused, printed plan packages in the event you aren't satisfied with your first selection.

 
 

Plan 7497  Back to plan page

Loading...