Get discounts,
promos, see our
newest plans
and more!
+ 15% off any plan
See terms opt out anytime


No Thanks

Thanks for
signing up!


Use Code:

SIGNUP15

And save 15% off any plan!

Check your email for details.

CLOSE
Search Plans
Customer Reviews
     
15% off ALL House Plans Sitewide
15% off ALL House Plans Sitewide
15% off ALL House Plans Sitewide

Code: HONOR
Sale ends midnight 5/31/2026 PST

St.Croix Falls | 3 Bedroom Contemporary Style House, Plan 7249

 
 

Sq Ft
2,102 FT²

Beds
3

Baths
2.5

Stories
2

Garage
2

Depth
73' 6"

Width
42'
On Sale
$1,487.50
$1,750.00
EXCLUSIVE PHOTOS
© copyright by designer
 View All 39 Images | Photographs may reflect modified home
Sq Ft
2,102 FT²
Beds
3
Baths
2.5
Stories
2
Garage
2
Depth
73' 6"
Width
42'
 
Click to Zoom In on Floor Plan
© copyright by designer
 
 

About This Plan

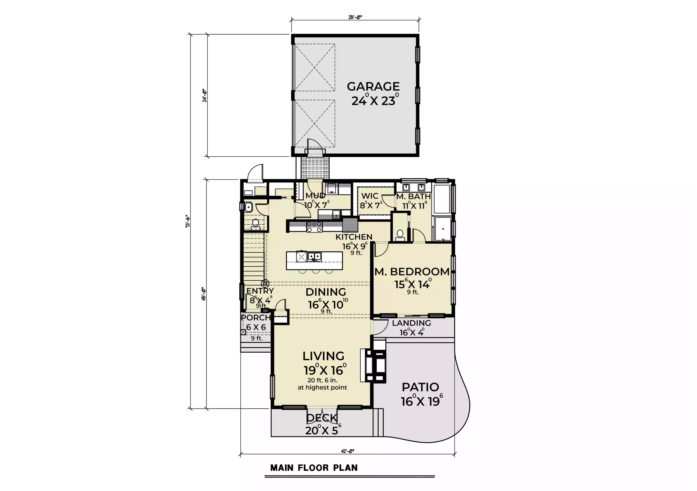
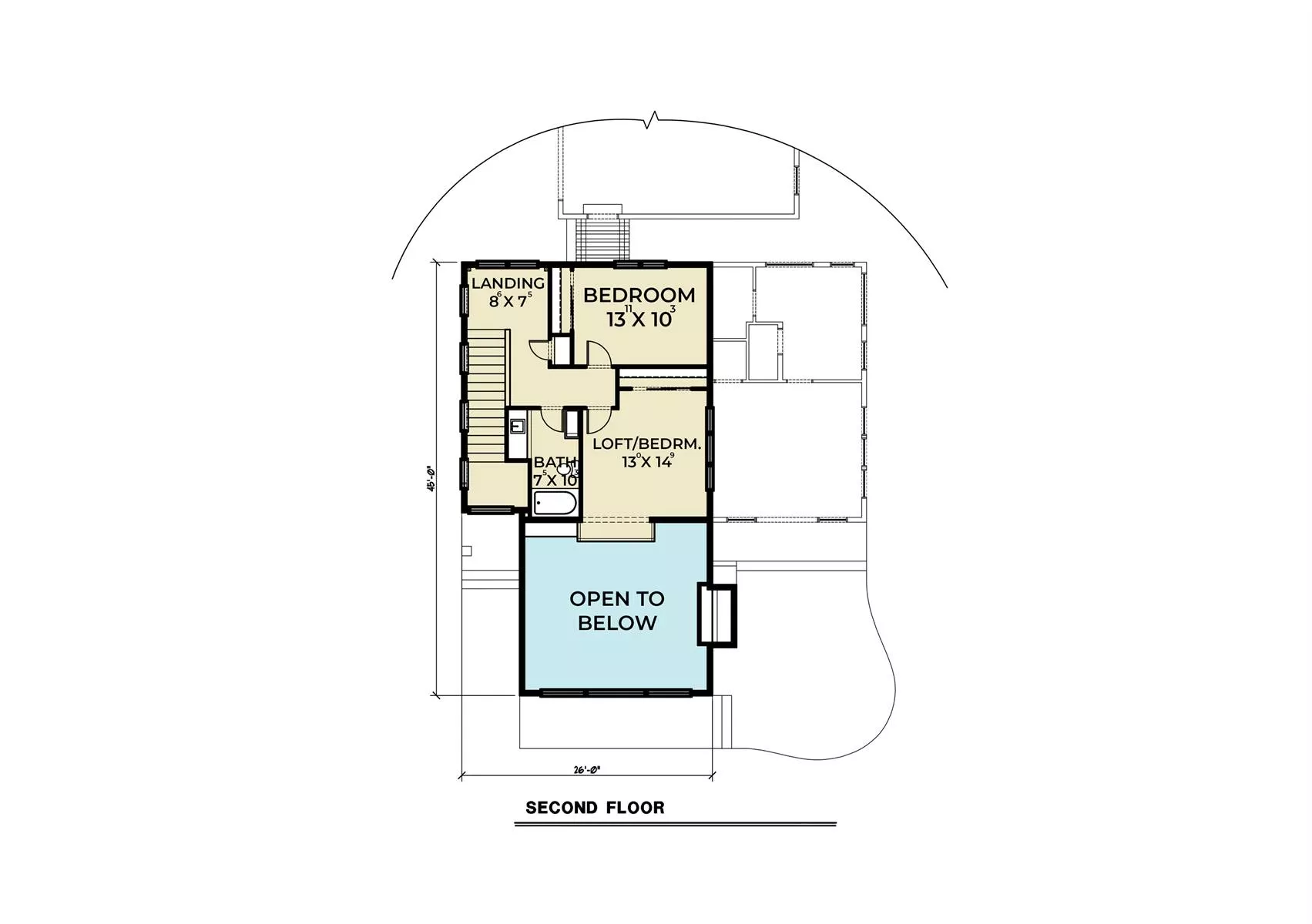
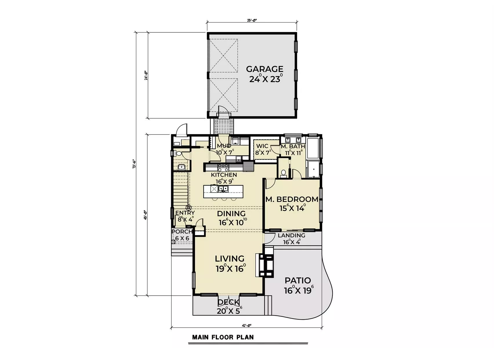
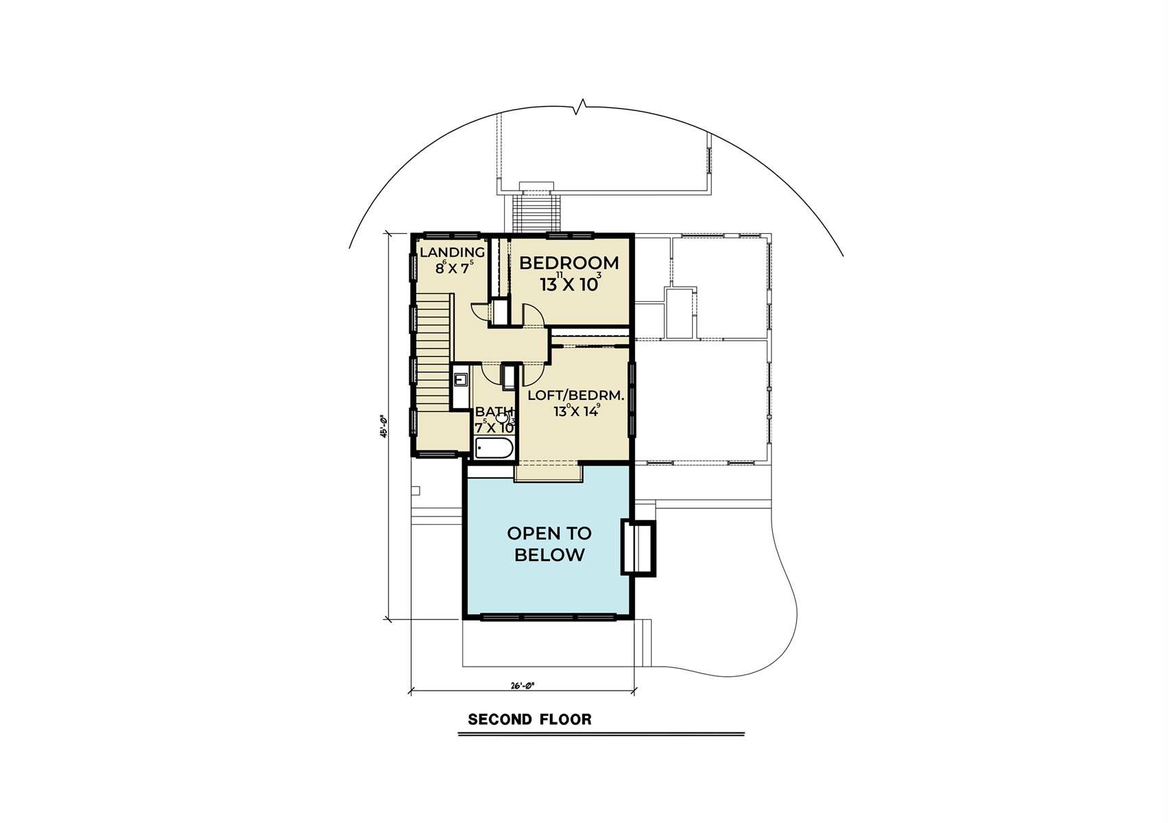
The simplicity and elegance of this modern contemporary style house plan makes it as unique as it is practical. With 2,102 square feet, 3 bedrooms and 2.5 baths, this home has the perfect amount of size for the homeowner who wants a place that makes a statement. Behind the outward facing wall of the home as well as the 2-car garage, is a large gourmet kitchen along with an island and barstool seating. Directly off of the kitchen is a large master bedroom with vaulted ceilings, completed with a luxurious master bath and large walk-in closet and over-sized shower. The gorgeous views of this home continue as the living room open to a deck and patio area, feeling synonymous with the outdoors. The second floor is home to another bedroom, a bathroom, as well as a loft space which can be used as another bedroom or as a bonus area.

Step inside Plan 11879 and join Tim and Cindy for a personal tour of their stunning new home nestled in the rolling hills of North Carolina.  

See All Plan Options
 

FEATURES & DETAILS

Kitchen features
Kitchen Island
Walk-in Pantry
Bedroom features
Double Vanity Sink
Primary Bdrm Main Floor
Separate Tub and Shower
Walk-in Closet
Exterior features
Covered Front Porch
Deck
Foundation Options
Crawlspace
Lot Options
Suited for corner lot
Additional features
Dining Room
Fireplace
Great Room
Laundry 1st Fl
Loft / Balcony
Mud Room
Open Floor Plan
Vaulted Ceilings
Garage Location
Side
Garage Options
Detached
2,102 Ft
2
Total Heated
1,488 Ft
2
1st Floor
614 Ft
2
2nd Floor
3
Bedrooms
2.5
Bathrooms
2
Garage
2
Stories
42' 0"
Width
73' 6"
Depth
23' 8"
Height
9' 0"
Main Floor Ceiling
7' 0"
Upper Floor Ceiling
2x6
Framing
Stick
Roof Framing
1.5:12
Primary Roof Pitch
Single
Dwelling Number

Unheated Living Space
600 Ft
2
Garage
412 Ft
2
Porch
110 Ft
2
Deck
 

Plan Package Options

 Select Plan Package
 Need To Reverse Plan? (Optional)
  Select Foundation Option
  Add-Ons (Optional)
INCLUDED WITH YOUR PURCHASE

Free Ground shipping in the U.S.

FREE

Home Building & Product Ideas Organizer

Sub Total
$0
Free Shipping
QUESTIONS OR NEED HELP ORDERING? LIVE CHAT OR CALL US AT 866-214-2242
Plan Packages

Each set of construction documents typically includes detailed, dimensioned floor plans, basic electric layouts, cross sections, roof details, cabinet layouts, and elevations, as well as general IRC specifications. Please refer to the ARCHITECT or DESIGNER’S PLAN DETAILS link above the floor plan on any plan page to determine the specific details for each plan. Our house plans contain virtually all of the information required to construct your home. The typical plan set does not include plumbing, HVAC drawings, or engineering stamps due to the wide variety of specific needs, local codes, and climatic conditions. These details and specifications are easily obtained from your builder, contractors, and/or local engineers.

BEST PRICE GUARANTEE

Find the same house plan (modifications included!) and package for less on another site, show us the URL and we'll give you the difference plus an additional 10% back.

100% SATISFACTION GUARANTEE

We offer a one-time, 30-day exchange policy for unused, printed plan packages in the event you aren't satisfied with your first selection.

 
 

Plan 7249  Back to plan page

Loading...