Get discounts,
promos, see our
newest plans
and more!
+ 15% off any plan
See terms opt out anytime


No Thanks

Thanks for
signing up!


Use Code:

SIGNUP15

And save 15% off any plan!

Check your email for details.

CLOSE
Search Plans
Customer Reviews
     
15% off ALL House Plans Sitewide
15% off ALL House Plans Sitewide
15% off ALL House Plans Sitewide

Code: HONOR
Sale ends midnight 5/31/2026 PST

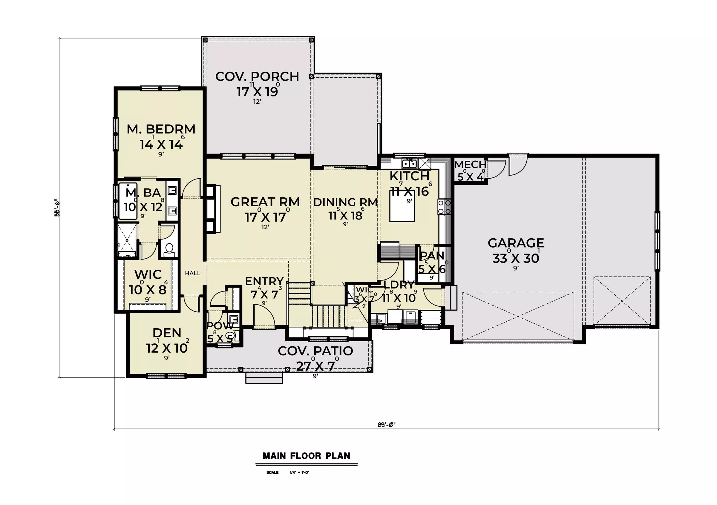
Newburgh Two Story Modern Farmhouse Style House, Plan 4507

 
 

Sq Ft
2,787 FT²

Beds
3

Baths
2.5

Stories
2

Garage
3

Depth
47' 6"

Width
89'
On Sale
$1,487.50
$1,750.00
© copyright by designer
 View All 32 Images | Photographs may reflect modified home
Sq Ft
2,787 FT²
Beds
3
Baths
2.5
Stories
2
Garage
3
Depth
47' 6"
Width
89'
 
Click to Zoom In on Floor Plan
© copyright by designer
 
 

About This Plan

A beautiful, sleek simplicity envelops this lovely modern farmhouse-style plan. Broad lines, a gently sloping roofline, and picturesque windows all come together to capture the eye with an impressive curb appeal. Beyond the front entryway, you'll find an interior layout that is made to impress too. Featuring a spacious 2,787 square feet of space, the 2 story layout is packed full of comfort and relaxation. Designed with the modern family in mind, you'll notice that each of the 3 bedroom suites has plenty of space to grow into. That's especially true with the master bedroom which offers a massive walk-in closet along with a large spa-inspired bath. The common areas of the home are tailor-made for bringing the family together to make countless memories. From the picture perfect chef's kitchen to the expansive great room and covered back porch, there is so much to do and enough space for crowds big and small. Plus, this home has customization potential thanks to the bonus room which sits atop the 3-car garage. This is the perfect place to add your finishing touches to the masterpiece that is your home.  

See All Plan Options
 

FEATURES & DETAILS

Kitchen features
Country Kitchen
Kitchen Island
U-Shaped
Walk-in Pantry
Bedroom features
Double Vanity Sink
Primary Bdrm Main Floor
Separate Tub and Shower
Split Bedrooms
Walk-in Closet
Exterior features
Covered Front Porch
Covered Rear Porch
Additional features
Bonus Room
Dining Room
Family Room
Fireplace
Foyer
Great Room
Home Office
Laundry 1st Fl
Open Floor Plan
Vaulted Ceilings
Vaulted Great Room/Living
Garage Location
Front
Garage Options
Attached
Front-entry
4,450 Ft
2
Total Structure
2,787 Ft
2
Total Heated
1,860 Ft
2
1st Floor
555 Ft
2
2nd Floor
3
Bedrooms
2.5
Bathrooms
3
Garage
2
Stories
89' 0"
Width
47' 6"
Depth
28' 9"
Height
9' 0"
Main Floor Ceiling
8' 0"
Upper Floor Ceiling
12' 0"
Living/Great Room Ceiling
2x6
Framing
Truss
Roof Framing
10/12
Primary Roof Pitch
4/12
Secondary Roof Pitch
Single
Dwelling Number
2nd Floor
Bonus Access

Unheated Living Space
1,020 Ft
2
Garage
143 Ft
2
Porch
500 Ft
2
Patio
372 Ft
2
Bonus Room
 

Plan Package Options

 Select Plan Package
 Need To Reverse Plan? (Optional)
  Select Foundation Option
  Add-Ons (Optional)
INCLUDED WITH YOUR PURCHASE

Free Ground shipping in the U.S.

FREE

Home Building & Product Ideas Organizer

Sub Total
$0
Free Shipping
QUESTIONS OR NEED HELP ORDERING? LIVE CHAT OR CALL US AT 866-214-2242
Plan Packages

Each set of construction documents typically includes detailed, dimensioned floor plans, basic electric layouts, cross sections, roof details, cabinet layouts, and elevations, as well as general IRC specifications. Please refer to the ARCHITECT or DESIGNER’S PLAN DETAILS link above the floor plan on any plan page to determine the specific details for each plan. Our house plans contain virtually all of the information required to construct your home. The typical plan set does not include plumbing, HVAC drawings, or engineering stamps due to the wide variety of specific needs, local codes, and climatic conditions. These details and specifications are easily obtained from your builder, contractors, and/or local engineers.

BEST PRICE GUARANTEE

Find the same house plan (modifications included!) and package for less on another site, show us the URL and we'll give you the difference plus an additional 10% back.

100% SATISFACTION GUARANTEE

We offer a one-time, 30-day exchange policy for unused, printed plan packages in the event you aren't satisfied with your first selection.

 
 

Plan 4507  Back to plan page

Loading...