Get discounts,
promos, see our
newest plans
and more!
+ 15% off any plan
See terms opt out anytime


No Thanks

Thanks for
signing up!


Use Code:

SIGNUP15

And save 15% off any plan!

Check your email for details.

CLOSE
Search Plans
     
20% Off House Plans Sitewide Ends Tuesday
20% Off House Plans Sitewide Ends Tuesday
20% Off House Plans Sitewide Ends Tuesday

Code: VET20
Sale ends midnight 11/11/2025 PST

Sq Ft
2,703 FT²

Beds
3

Baths
3

Stories
1

Garage
3

Depth
77' 2"

Width
76' 8"
On Sale
$892.00
$1,115.00
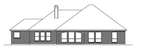
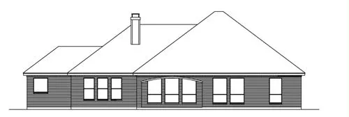
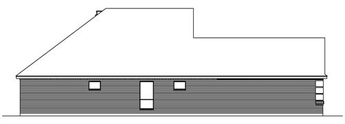
EXCLUSIVE PHOTOS
© copyright by designer
 View All 35 Images | Photographs may reflect modified home
Sq Ft
2,703 FT²
Beds
3
Baths
3
Stories
1
Garage
3
Depth
77' 2"
Width
76' 8"
 
Click to Zoom In on Floor Plan
© copyright by designer
 
 

About This Plan

This one-story, split-bedroom luxury house plan is stylish and efficient. The elegant foyer leads directly into the dining room, flanked with large decorative pillars. From the dining room, there is access to the butlery, utility room, pantry and kitchen, for ease in serving. The kitchen is open to the breakfast area and family room. The fireplace in the centrally located family room will help warm the entire family gathering area. Access to the outdoor lounge is through the breakfast room. The master suite boasts a spacious bath with corner tub, separate shower, his and hers vanities and large wardrobe. Two family bedrooms are located on the other side of the home plan, each with a walk-in closet and full bath. 

See All Plan Options
 

FEATURES & DETAILS

Kitchen features
Country Kitchen
Nook / Breakfast Area
Bedroom features
Double Vanity Sink
Guest Suite
Primary Bdrm Main Floor
Separate Tub and Shower
Exterior features
Covered Front Porch
Covered Rear Porch
Front Porch
Rear Porch
Foundation Options
Slab
Additional features
Arches
Family Room
Fireplace
Foyer
Home Office
Laundry 1st Fl
Open Floor Plan
Garage Location
Front
Garage Options
Attached
Side-entry
3,694 Ft
2
Total Structure
2,703 Ft
2
Total Heated
3
Bedrooms
3
Bathrooms
3
Garage
1
Stories
76' 8"
Width
77' 2"
Depth
27' 0"
Height
10' 0"
Main Floor Ceiling
2x4
Framing
Stick
Roof Framing
Single
Dwelling Number

Unheated Living Space
785 Ft
2
Garage
29 Ft
2
Porch
177 Ft
2
Patio
 

Plan Package Options

 Select Plan Package
Sale: $892
PDF Single Build
$1,115

Digital plans emailed to you in PDF format that allows for printing copies and sharing electronically with contractors, subs, decorators, and more. This package includes a license to build the home one time.

Sale: $892
Sale: $1,344
5 Printed Sets
$1,680

Five Printed Sets of Residential Construction Drawings are typically 24” x 36” documents and come with a license to construct a single residence shipped to a physical address. Keep in mind PDF Plan Packages are our most popular choice which allows you to print as many copies as you need and to electronically send files to your builder, subcontractors, etc.

Sale: $1,344
Sale: $1,344
CAD + PDF Single Build
$1,680

CAD files are a complete set of construction drawings delivered electronically. They can be used for any type of modification—including major design changes and engineering—and include a release granting permission to modify the plan. Most CAD plan orders are emailed the same or next business day.
 
This package also comes with a PDF set of plans and a copyright release for making modifications and printing unlimited copies.
 
CAD files are provided in .dwg format. For details on the specific CAD program used, please refer to the PLAN DETAILS section located above the floor plan on each plan’s page.

Sale: $1,344
 Need To Reverse Plan? (Optional)
$200
Readable Reverse

Reverse house plans with readable text and dimensions 

$200
  Select Foundation Option
  Add-Ons (Optional)
INCLUDED WITH YOUR PURCHASE

Free Ground shipping in the Continental U.S.

FREE

Design consultation with the architect or designer to discuss your plan

Home Building & Product Ideas Organizer

Sub Total
$0
Free Shipping
QUESTIONS OR NEED HELP ORDERING? LIVE CHAT OR CALL US AT 866-214-2242
Plan Packages

Each set of construction documents includes detailed, dimensioned floor plans, basic electric layouts, cross sections, roof details, cabinet layouts and elevations, as well as general IRC specifications. They contain virtually all of the information required to construct your home. The typical plan set does not include any plumbing, HVAC drawings, or engineering stamps due to the wide variety of specific needs, local codes, and climatic conditions. These details and specifications are easily obtained from your builder, contractors, and/or local engineers.

BEST PRICE GUARANTEE

find the same house plan (modifications included!) and package for less on another site, show us the URL and we'll give you the difference plus an additional 5% back.

100% SATISFACTION GUARANTEE

We offer a one-time, 30-day exchange policy for unused, non-electronic plan packages in the event you aren't satisfied with your first selection.

 
 

Plan 4932  Back to plan page

Loading...