Get discounts,
promos, see our
newest plans
and more!
+ 15% off any plan
See terms opt out anytime


No Thanks

Thanks for
signing up!


Use Code:

SIGNUP15

And save 15% off any plan!

Check your email for details.

CLOSE
Search Plans
Customer Reviews
     
15% off ALL House Plans Sitewide
15% off ALL House Plans Sitewide
15% off ALL House Plans Sitewide

Code: HONOR
Sale ends midnight 5/31/2026 PST

Sq Ft
4,390 FT²

Beds
4

Baths
3.5

Stories
2

Garage
3

Depth
62'

Width
72'
On Sale
$1,440.75
$1,695.00
© copyright by designer
 View All 5 Images | Photographs may reflect modified home
Sq Ft
4,390 FT²
Beds
4
Baths
3.5
Stories
2
Garage
3
Depth
62'
Width
72'
 
Click to Zoom In on Floor Plan
© copyright by designer
 
 

About This Plan

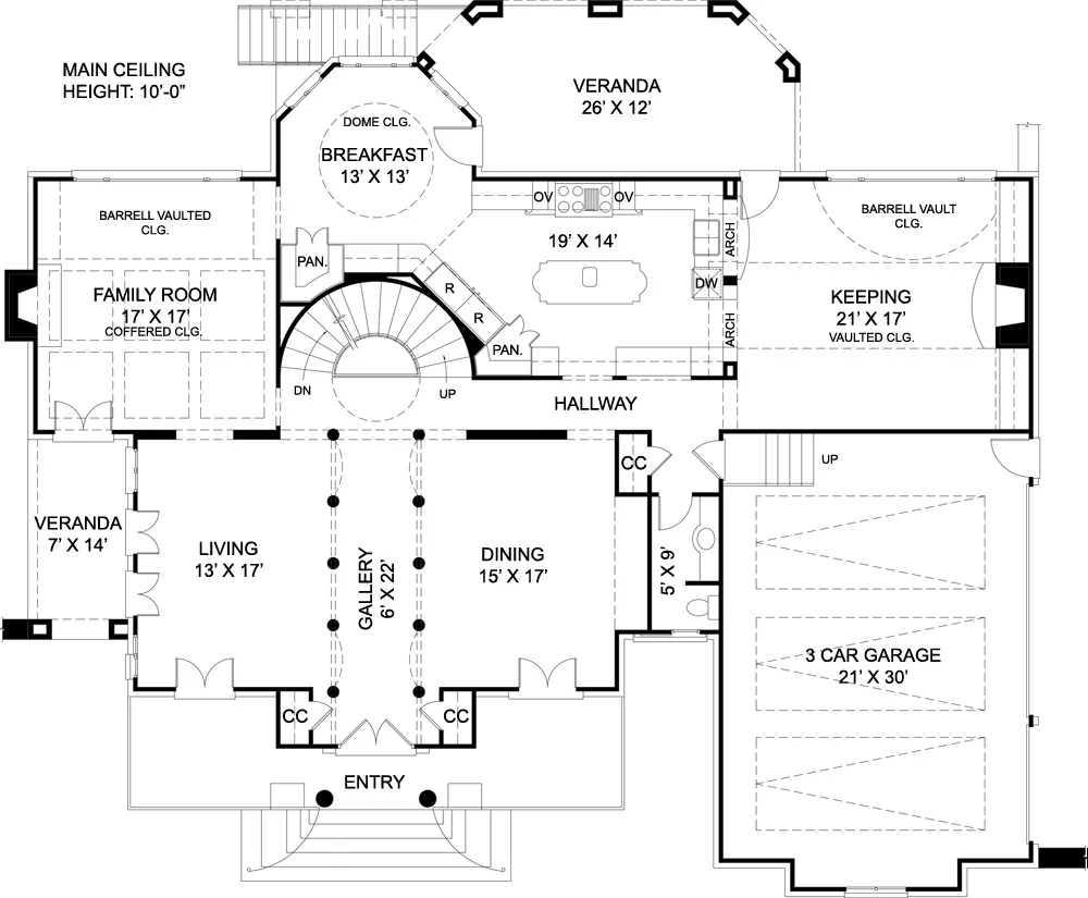
This sturdy two-story Georgian home conveys stability and a sense of security. A front terrace with wrought-iron fencing, two verandas, and a solarium mark this as a special place. A spacious dining room and parlor are located near the front on either side of a gallery hallway. The kitchen, with wraparound counters, is located to easily serve both the family areas and the dining room. All the sleeping quarters are on the upper level, including the resplendent master suite. Three other bedrooms each have walk-in closets, and one enjoys a private bath.
 

See All Plan Options
 

FEATURES & DETAILS

Bedroom features
Split Bedrooms
Exterior features
Rear Porch
Foundation Options
Crawlspace
Daylight Basement
Additional features
Home Office
Garage Location
Side
Garage Options
Attached
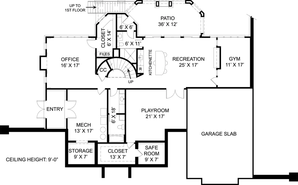
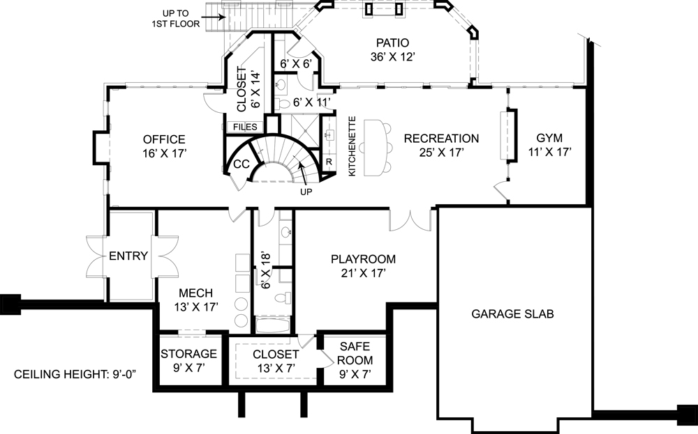
4,390 Ft
2
Total Heated
2,135 Ft
2
1st Floor
2,255 Ft
2
2nd Floor
1,380 Ft
2
Lower Floor
4
Bedrooms
3.5
Bathrooms
3
Garage
2
Stories
72' 0"
Width
62' 0"
Depth
36' 0"
Height
10' 0"
Main Floor Ceiling
9' 0"
Upper Floor Ceiling
2x4
Framing
Stick
Roof Framing
12/12
Primary Roof Pitch
Single
Dwelling Number

Unheated Living Space
681 Ft
2
Garage
 

Plan Package Options

 Select Plan Package
 Need To Reverse Plan? (Optional)
  Select Foundation Option
  Add-Ons (Optional)
INCLUDED WITH YOUR PURCHASE

Free Ground shipping in the U.S.

FREE

Home Building & Product Ideas Organizer

Sub Total
$0
Free Shipping
QUESTIONS OR NEED HELP ORDERING? LIVE CHAT OR CALL US AT 866-214-2242
Plan Packages

Each set of construction documents typically includes detailed, dimensioned floor plans, basic electric layouts, cross sections, roof details, cabinet layouts, and elevations, as well as general IRC specifications. Please refer to the ARCHITECT or DESIGNER’S PLAN DETAILS link above the floor plan on any plan page to determine the specific details for each plan. Our house plans contain virtually all of the information required to construct your home. The typical plan set does not include plumbing, HVAC drawings, or engineering stamps due to the wide variety of specific needs, local codes, and climatic conditions. These details and specifications are easily obtained from your builder, contractors, and/or local engineers.

BEST PRICE GUARANTEE

Find the same house plan (modifications included!) and package for less on another site, show us the URL and we'll give you the difference plus an additional 10% back.

100% SATISFACTION GUARANTEE

We offer a one-time, 30-day exchange policy for unused, printed plan packages in the event you aren't satisfied with your first selection.

 
 

Plan 7939  Back to plan page

Loading...