Get discounts,
promos, see our
newest plans
and more!
+ 15% off any plan
See terms opt out anytime


No Thanks

Thanks for
signing up!


Use Code:

SIGNUP15

And save 15% off any plan!

Check your email for details.

CLOSE
Search Plans
Customer Reviews
     
15% off ALL House Plans Sitewide
15% off ALL House Plans Sitewide
15% off ALL House Plans Sitewide

Code: HONOR
Sale ends midnight 5/31/2026 PST

Sq Ft
5,745 FT²

Beds
4

Baths
5.5

Stories
2

Garage
3

Depth
50'

Width
110'
On Sale
$1,440.75
$1,695.00
© copyright by designer
 View All 20 Images | Photographs may reflect modified home
Sq Ft
5,745 FT²
Beds
4
Baths
5.5
Stories
2
Garage
3
Depth
50'
Width
110'
 
Click to Zoom In on Floor Plan
© copyright by designer
 
 

About This Plan

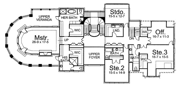
What immediately catches your eye about this majestic European-style home is the two-deck veranda, each curved level surrounded by stately columns. The lower veranda wraps from the dining room around the grand room to the sunny breakfast area; the upper level opens exclusively to the sumptuous master suite, which features separate His and Hers bathrooms. Two other bedrooms with private baths are located on the second floor, as well as an office and a studio, for the photographer or artist in the household. The first floor includes a guest suite, an island kitchen, and a library. A three-car garage with adjoining storage areas caps this exquisite plan.

 

See All Plan Options
 

FEATURES & DETAILS

Kitchen features
Nook / Breakfast Area
Bedroom features
Guest Suite
Primary Bdrm Upstairs
Walk-in Closet
Exterior features
Rear Porch
Wraparound Porch
Foundation Options
Daylight Basement
Walkout Basement
Additional features
Family Room
Great Room
Home Office
Laundry 1st Fl
Library/Media Rm
Garage Location
Side
Garage Options
Attached
Side-entry
5,745 Ft
2
Total Heated
2,790 Ft
2
1st Floor
2,955 Ft
2
2nd Floor
4
Bedrooms
5.5
Bathrooms
3
Garage
2
Stories
110' 0"
Width
50' 0"
Depth
46' 2"
Height
10' 0"
Main Floor Ceiling
9' 0"
Upper Floor Ceiling
2x4 or 2x6
Framing
Stick
Roof Framing
Single
Dwelling Number

Unheated Living Space
 

Plan Package Options

 Select Plan Package
 Need To Reverse Plan? (Optional)
  Select Foundation Option
  Add-Ons (Optional)
INCLUDED WITH YOUR PURCHASE

Free Ground shipping in the U.S.

FREE

Home Building & Product Ideas Organizer

Sub Total
$0
Free Shipping
QUESTIONS OR NEED HELP ORDERING? LIVE CHAT OR CALL US AT 866-214-2242
Plan Packages

Each set of construction documents typically includes detailed, dimensioned floor plans, basic electric layouts, cross sections, roof details, cabinet layouts, and elevations, as well as general IRC specifications. Please refer to the ARCHITECT or DESIGNER’S PLAN DETAILS link above the floor plan on any plan page to determine the specific details for each plan. Our house plans contain virtually all of the information required to construct your home. The typical plan set does not include plumbing, HVAC drawings, or engineering stamps due to the wide variety of specific needs, local codes, and climatic conditions. These details and specifications are easily obtained from your builder, contractors, and/or local engineers.

BEST PRICE GUARANTEE

Find the same house plan (modifications included!) and package for less on another site, show us the URL and we'll give you the difference plus an additional 10% back.

100% SATISFACTION GUARANTEE

We offer a one-time, 30-day exchange policy for unused, printed plan packages in the event you aren't satisfied with your first selection.

 
 

Plan 6019  Back to plan page

Loading...