Get discounts,
promos, see our
newest plans
and more!
+ 15% off any plan
See terms opt out anytime


No Thanks

Thanks for
signing up!


Use Code:

SIGNUP15

And save 15% off any plan!

Check your email for details.

CLOSE
Search Plans
Customer Reviews
     
15% off ALL House Plans Sitewide
15% off ALL House Plans Sitewide
15% off ALL House Plans Sitewide

Code: SAVE15
Sale ends midnight 4/19/2026 PST

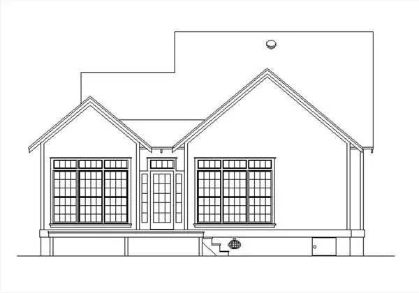
Catilina | Adorable 3 Bedroom Cottage Style House, Plan 5289

 
 

Sq Ft
1,086 FT²

Beds
3

Baths
2.5

Stories
1

Garage
0

Depth
46'

Width
36'
On Sale
$765.00
$900.00
© copyright by designer
 View All 8 Images | Photographs may reflect modified home
Sq Ft
1,086 FT²
Beds
3
Baths
2.5
Stories
1
Garage
0
Depth
46'
Width
36'
 
Click to Zoom In on Floor Plan
© copyright by designer
 
 

About This Plan

This delightful 3-bedroom cottage is designed to drastically cut heating and cooling cost without adding substantial building cost. The wise use of 1,086 s.f. of living space creates a fully functional home tucked within a very compact shape. The kitchen, dining and living areas are very open to create the look and feel of a much larger home. The full-size kitchen includes all of the typical amenities and has a large island complete with eating bar. The master suite has volume ceilings, a four-piece bath, and a large walk-in closet. The secondary bedrooms have large closets and private access to the Jack-and-Jill bathroom. All bathrooms feature a spacious linen closet! The rear entry has a French door with sidelights that opens on to a spacious deck that is perfect for entertaining. This is a lovely home for first-time buyers or even those who want to scale back from larger homes. Small can be better and this delightful design proves the point!

Energy-saving features include:
1. Insulated doors and windows
2. 2x6 exterior walls with R19 insulation
3. Modified Roof Design to accommodate 12 R38 ceiling insulation
4. Positive vapor barrier to enhance comfort control
5. Centrally located plumbing and heating/AC for added efficiency
6. Small footprint to minimize land and building cost
7. Properly oriented, this home is designed to provide natural solar gain
8. New and improved framing techniques that allow previously un-insulated areas to become insulated.

 

See All Plan Options
 

FEATURES & DETAILS

Kitchen features
Country Kitchen
Kitchen Island
Bedroom features
Double Vanity Sink
Split Bedrooms
Walk-in Closet
Exterior features
Covered Front Porch
Rear Porch
Foundation Options
Crawlspace
Slab
Lot Options
Suited for corner lot
Suited for narrow lot
Suited for view lot
Additional features
Open Floor Plan
1,246 Ft
2
Total Structure
1,086 Ft
2
Total Heated
1,086 Ft
2
1st Floor
3
Bedrooms
2.5
Bathrooms
0
Garage
1
Stories
36' 0"
Width
46' 0"
Depth
22' 2"
Height
9 & 11' 0"
Main Floor Ceiling
2x6
Framing
Stick
Roof Framing
10
Primary Roof Pitch
4
Dormer Roof Pitch
Single
Dwelling Number

Unheated Living Space
160 Ft
2
Porch
 

Plan Package Options

 Select Plan Package
 Need To Reverse Plan? (Optional)
  Select Foundation Option
  Add-Ons (Optional)
INCLUDED WITH YOUR PURCHASE

Free Ground shipping in the U.S.

FREE

Home Building & Product Ideas Organizer

Sub Total
$0
Free Shipping
QUESTIONS OR NEED HELP ORDERING? LIVE CHAT OR CALL US AT 866-214-2242
Plan Packages

Each set of construction documents typically includes detailed, dimensioned floor plans, basic electric layouts, cross sections, roof details, cabinet layouts, and elevations, as well as general IRC specifications. Please refer to the ARCHITECT or DESIGNER’S PLAN DETAILS link above the floor plan on any plan page to determine the specific details for each plan. Our house plans contain virtually all of the information required to construct your home. The typical plan set does not include plumbing, HVAC drawings, or engineering stamps due to the wide variety of specific needs, local codes, and climatic conditions. These details and specifications are easily obtained from your builder, contractors, and/or local engineers.

BEST PRICE GUARANTEE

Find the same house plan (modifications included!) and package for less on another site, show us the URL and we'll give you the difference plus an additional 10% back.

100% SATISFACTION GUARANTEE

We offer a one-time, 30-day exchange policy for unused, printed plan packages in the event you aren't satisfied with your first selection.

 
 
 

EXPLORE ARCHITECT PREFERRED PRODUCTS

Hover over arrows for product info!
 

Plan 5289  Back to plan page

Loading...