Get discounts,
promos, see our
newest plans
and more!
+ 15% off any plan
See terms opt out anytime


No Thanks

Thanks for
signing up!


Use Code:

SIGNUP15

And save 15% off any plan!

Check your email for details.

CLOSE
Search Plans
Customer Reviews
     
America’s Top Home Plans
Trusted House Plans From America's Leading Architects & Designers

Cassidy Luxury Contemporary Style House, Plan 7556

 
 

Sq Ft
5,369 FT²

Beds
5

Baths
5.5

Stories
3

Garage
2

Depth
68' 6"

Width
49'
On Sale
$2,890.00
$3,400.00
© copyright by designer
 View All 35 Images | Photographs may reflect modified home
Sq Ft
5,369 FT²
Beds
5
Baths
5.5
Stories
3
Garage
2
Depth
68' 6"
Width
49'
 
Click to Zoom In on Floor Plan
© copyright by designer
 
 

About This Plan

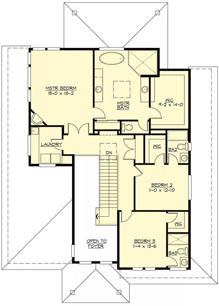
Elegant and refined, this wonderful 3-story contemporary house plan is a great example of combining sleek lines and sharp edges to create a flowing layout. 5 bedrooms and 5.5 bathrooms join with 5,369 square feet to create space for everyone to enjoy. Beyond a two-car garage and a welcoming front porch, step foot on to a large foyer with a formal dining room to your left, complete with a butler’s pantry and large walk-in pantry around the corner. The gourmet kitchen is open to the family room and comfortable dining nook. The nook and family room both open out on to the covered and uncovered back porches. A home office which can double as a bedroom sits off of the family room, along with its own private bathroom. Upstairs finds 2 auxiliary bedrooms, each with their own private bath and walk-in closet, as well as the stunningly large master suite. This home even has a fully finished basement, highlighted by a full guest suite, a media room, and even a rec room. With all of this space, the options and uses seem practically endless.

  

See All Plan Options
 

FEATURES & DETAILS

Kitchen features
Butler's Pantry
Kitchen Island
Nook / Breakfast Area
Walk-in Pantry
Bedroom features
Double Vanity Sink
Guest Suite
Primary Bdrm Upstairs
Separate Tub and Shower
Walk-in Closet
Exterior features
Covered Rear Porch
Front Porch
Foundation Options
Daylight Basement
Lot Options
Suited for view lot
Additional features
Dining Room
Foyer
Great Room
Home Office
Laundry 2nd Fl
Library/Media Rm
Open Floor Plan
Rec Room
Storage Space
Garage Location
Front
Garage Options
Front-entry
5,369 Ft
2
Total Heated
1,926 Ft
2
1st Floor
1,490 Ft
2
2nd Floor
1,953 Ft
2
Lower Floor
5
Bedrooms
5.5
Bathrooms
2
Garage
3
Stories
49' 0"
Width
68' 6"
Depth
24' 7"
Height
10' 0"
Main Floor Ceiling
9' 0"
Upper Floor Ceiling
2x6
Framing
Truss
Roof Framing
3:12
Primary Roof Pitch
0:12
Secondary Roof Pitch
Single
Dwelling Number

Unheated Living Space
534 Ft
2
Garage
 

Plan Package Options

 Select Plan Package
 Need To Reverse Plan? (Optional)
  Select Foundation Option
  Add-Ons (Optional)
INCLUDED WITH YOUR PURCHASE

Free Ground shipping in the U.S.

FREE

Home Building & Product Ideas Organizer

Sub Total
$0
Free Shipping
IMPORTANT NOTE: Due to state regulations, this home is not available for purchase in the State of Washington. Contact us for more information.
QUESTIONS OR NEED HELP ORDERING? LIVE CHAT OR CALL US AT 866-214-2242
Plan Packages

Each set of construction documents typically includes detailed, dimensioned floor plans, basic electric layouts, cross sections, roof details, cabinet layouts, and elevations, as well as general IRC specifications. Please refer to the ARCHITECT or DESIGNER’S PLAN DETAILS link above the floor plan on any plan page to determine the specific details for each plan. Our house plans contain virtually all of the information required to construct your home. The typical plan set does not include plumbing, HVAC drawings, or engineering stamps due to the wide variety of specific needs, local codes, and climatic conditions. These details and specifications are easily obtained from your builder, contractors, and/or local engineers.

BEST PRICE GUARANTEE

Find the same house plan (modifications included!) and package for less on another site, show us the URL and we'll give you the difference plus an additional 10% back.

100% SATISFACTION GUARANTEE

We offer a one-time, 30-day exchange policy for unused, printed plan packages in the event you aren't satisfied with your first selection.

 
 

Plan 7556  Back to plan page

Loading...