Get discounts,
promos, see our
newest plans
and more!
+ 15% off any plan
See terms opt out anytime


No Thanks

Thanks for
signing up!


Use Code:

SIGNUP15

And save 15% off any plan!

Check your email for details.

CLOSE
Search Plans
Customer Reviews
     
15% off ALL House Plans Sitewide
15% off ALL House Plans Sitewide
15% off ALL House Plans Sitewide

Code: HONOR
Sale ends midnight 5/31/2026 PST

Sq Ft
1,371 FT²

Beds
3

Baths
3.5

Stories
1

Garage
0

Depth
44'

Width
38'
On Sale
$1,168.75
$1,375.00
© copyright by designer
 View All 9 Images | Photographs may reflect modified home
Sq Ft
1,371 FT²
Beds
3
Baths
3.5
Stories
1
Garage
0
Depth
44'
Width
38'
 
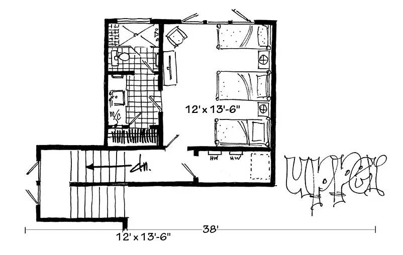
Click to Zoom In on Floor Plan
© copyright by designer
 
 

About This Plan

A wraparound screened porch welcomes guests to this affordable country house plan, with three bedrooms, 3.5 baths and 1,371 square feet of living space. You'll be proud to entertain friends in the living room of this home plan, with its fireplace and vaulted ceiling. The efficient kitchen serves the vaulted dining room with ease. The quiet master bedroom boasts a private bath with a garden tub and a single sink. Also on this level of the home design, a second bedroom offers a personal bath. Upstairs, children will enjoy their quarters, with a split bath. Builders point out that relaxing and dining are possible on the breezy porch.  

See All Plan Options
 

FEATURES & DETAILS

Kitchen features
Country Kitchen
Peninsula / Eating Bar
Bedroom features
Primary Bdrm Main Floor
Walk-in Closet
Exterior features
Screened Porch/Sunroom
Wraparound Porch
Foundation Options
Crawlspace
Slab
Additional features
Fireplace
Open Floor Plan
Vaulted Ceilings
Garage Options
None
1,371 Ft
2
Total Heated
1,031 Ft
2
1st Floor
340 Ft
2
2nd Floor
3
Bedrooms
3.5
Bathrooms
0
Garage
1
Stories
38' 0"
Width
44' 0"
Depth
20' 5"
Height
8' 0"
Main Floor Ceiling
8' 0"
Upper Floor Ceiling
2x6
Framing
Combination
Roof Framing
Single
Dwelling Number

Unheated Living Space
 

Plan Package Options

 Select Plan Package
 Need To Reverse Plan? (Optional)
  Select Foundation Option
  Add-Ons (Optional)
INCLUDED WITH YOUR PURCHASE

Free Ground shipping in the U.S.

FREE

Home Building & Product Ideas Organizer

Sub Total
$0
Free Shipping
QUESTIONS OR NEED HELP ORDERING? LIVE CHAT OR CALL US AT 866-214-2242
Plan Packages

Each set of construction documents typically includes detailed, dimensioned floor plans, basic electric layouts, cross sections, roof details, cabinet layouts, and elevations, as well as general IRC specifications. Please refer to the ARCHITECT or DESIGNER’S PLAN DETAILS link above the floor plan on any plan page to determine the specific details for each plan. Our house plans contain virtually all of the information required to construct your home. The typical plan set does not include plumbing, HVAC drawings, or engineering stamps due to the wide variety of specific needs, local codes, and climatic conditions. These details and specifications are easily obtained from your builder, contractors, and/or local engineers.

BEST PRICE GUARANTEE

Find the same house plan (modifications included!) and package for less on another site, show us the URL and we'll give you the difference plus an additional 10% back.

100% SATISFACTION GUARANTEE

We offer a one-time, 30-day exchange policy for unused, printed plan packages in the event you aren't satisfied with your first selection.

 
 

Plan 2200  Back to plan page

Loading...