Get discounts,
promos, see our
newest plans
and more!
+ 15% off any plan
See terms opt out anytime


No Thanks

Thanks for
signing up!


Use Code:

SIGNUP15

And save 15% off any plan!

Check your email for details.

CLOSE
Search Plans
Customer Reviews
     
America’s Top Home Plans
Trusted House Plans From America's Leading Architects & Designers

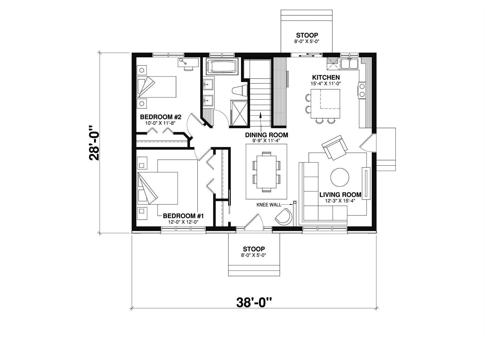
Briere 2 Bedroom Cottage Style House, Plan 9788

 
 

Sq Ft
1,064 FT²

Beds
2

Baths
1

Stories
1

Garage
0

Depth
28'

Width
38'
From
$1,655.00
© copyright by designer
 View All 4 Images | Photographs may reflect modified home
Sq Ft
1,064 FT²
Beds
2
Baths
1
Stories
1
Garage
0
Depth
28'
Width
38'
 
Click to Zoom In on Floor Plan
© copyright by designer
 
 

About This Plan

Welcome to The Briere, a 2 bedroom, 1 bath cottage with 1,064 sf of beautiful living space.  The curb appeal is undeniable with the brick exterior and large windows.  The main floor boasts a large great room which contains your living room, kitchen and dining areas in a comfortable and cozy space.  2 bedrooms and a bathroom with double sink vanity rounds out this living space.  Downstairs, a full basement includes 2 more large bedrooms, a family room which is perfect for a game room or media room, a large bathroom with laundry and a mechanical room.  This home is sure to please and provide all the space a growing family could need. 

See All Plan Options
 

FEATURES & DETAILS

Kitchen features
Kitchen Island
U-Shaped
Bedroom features
Double Vanity Sink
Family Style
Primary Bdrm Main Floor
Separate Tub and Shower
Additional features
Dining Room
Family Room
Open Floor Plan
Garage Location
None
Garage Options
None
2,208 Ft
2
Total Structure
1,064 Ft
2
Total Heated
1,064 Ft
2
1st Floor
1,064 Ft
2
Lower Floor
2
Bedrooms
1
Bathrooms
0
Garage
1
Stories
38' 0"
Width
28' 0"
Depth
16' 1"
Height
8' 0"
Main Floor Ceiling
8' 0"
Lower Floor Ceiling
8' 0"
Living/Great Room Ceiling
8' 0"
Primary Ceiling
2x6
Framing
Truss
Roof Framing
5:12
Primary Roof Pitch
Single
Dwelling Number
None
Bonus Access

Unheated Living Space
80 Ft
2
Porch
 

Plan Package Options

 Select Plan Package
 Need To Reverse Plan? (Optional)
  Select Foundation Option
  Add-Ons (Optional)
INCLUDED WITH YOUR PURCHASE

Free Ground shipping in the U.S.

FREE

Home Building & Product Ideas Organizer

Sub Total
$0
Free Shipping
Please allow 3-5 business days for delivery of this plan Please check our PDFs NOW collection for plans that can be downloaded and received immediately or live chat us to help you find a similar plan available now.
QUESTIONS OR NEED HELP ORDERING? LIVE CHAT OR CALL US AT 866-214-2242
Plan Packages

Each set of construction documents typically includes detailed, dimensioned floor plans, basic electric layouts, cross sections, roof details, cabinet layouts, and elevations, as well as general IRC specifications. Please refer to the ARCHITECT or DESIGNER’S PLAN DETAILS link above the floor plan on any plan page to determine the specific details for each plan. Our house plans contain virtually all of the information required to construct your home. The typical plan set does not include plumbing, HVAC drawings, or engineering stamps due to the wide variety of specific needs, local codes, and climatic conditions. These details and specifications are easily obtained from your builder, contractors, and/or local engineers.

BEST PRICE GUARANTEE

Find the same house plan (modifications included!) and package for less on another site, show us the URL and we'll give you the difference plus an additional 10% back.

100% SATISFACTION GUARANTEE

We offer a one-time, 30-day exchange policy for unused, printed plan packages in the event you aren't satisfied with your first selection.

 
 

Plan 9788  Back to plan page

Loading...