Get discounts,
promos, see our
newest plans
and more!
+ 15% off any plan
See terms opt out anytime


No Thanks

Thanks for
signing up!


Use Code:

SIGNUP15

And save 15% off any plan!

Check your email for details.

CLOSE
Search Plans
     

Sq Ft
2,834 FT²

Beds
3

Baths
2.5

Stories
2

Garage
3

Depth
52'

Width
60'
From
$2,079.00
© copyright by designer
 View All 6 Images | Photographs may reflect modified home
Sq Ft
2,834 FT²
Beds
3
Baths
2.5
Stories
2
Garage
3
Depth
52'
Width
60'
 
Click to Zoom In on Floor Plan
© copyright by designer
 
 

About This Plan

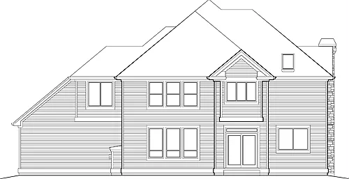
There's plenty of room in this European style home - but not so much that it's overwhelming. The plan begins at an entry with sidelights and transom and features formal areas on the left and casual space at the back. The living room glows with the warmth of a fireplace, then opens directly into the formal dining room. A den to the right of the entry features double French doors and built-in bookcases. The back of the first floor contains one large open area holding the family room, nook and island kitchen. Decorative columns define the family room entry, while warming hearth brightens gatherings. Note the corner media center, as well. A three-car garage is accessed at a service entry in the laundry area.

Second-floor rooms are highlighted by a grand master suite. Its salon has a tray ceiling; the bath features a wealth of appointments to pamper the homeowner, including skylights, double sinks and a garden spa tub. The stairwell separates two family bedrooms. They share a hall bath with dual sinks. Bedroom 2 has a walk-in closet.

Bonus space, totaling 284 square feet, can be developed into an additional bedroom, a games room or office space as desired. 


See All Plan Options
 

FEATURES & DETAILS

Foundation Options
Basement
Crawlspace
Slab
Additional features
Bonus Room
Garage Location
Front
Garage Options
Attached
Front-entry
2,834 Ft
2
Total Heated
1,604 Ft
2
1st Floor
1,230 Ft
2
2nd Floor
3
Bedrooms
2.5
Bathrooms
3
Garage
2
Stories
60' 0"
Width
52' 0"
Depth
33' 0"
Height
9' 1"' 0"
Main Floor Ceiling
8' 1"' 0"
Upper Floor Ceiling
2x6
Framing
10/12
Primary Roof Pitch
Single
Dwelling Number

Unheated Living Space
634 Ft
2
Garage
284 Ft
2
Bonus Room
 

Plan Package Options

 Select Plan Package
$2,079
PDF Single Build

Digital plans emailed to you in PDF format that allows for printing copies and sharing electronically with contractors, subs, decorators, and more. This package includes a license to build the home one time.

$2,079
$2,379
5 Printed Sets + PDF

Digital plan emailed to you in PDF format that allows for printing copies on a home printer or local print shop and sharing with contractors, subs, decorators, and more. PLUS five printed sets shipped and delivered 3-5 business days.

$2,379
$4,158
CAD + PDF Single Build

CAD files are a complete set of construction drawings delivered electronically. They can be used for any type of modification—including major design changes and engineering—and include a release granting permission to modify the plan. Most CAD plan orders are emailed the same or next business day.
 
This package also comes with a PDF set of plans and a copyright release for making modifications and printing unlimited copies.
 
CAD files are provided in .dwg format. For details on the specific CAD program used, please refer to the PLAN DETAILS section located above the floor plan on each plan’s page.

$4,158
 Need To Reverse Plan? (Optional)
$250
Readable Reverse

Reverse house plans with readable text and dimensions 

$250
  Select Foundation Option
  Add-Ons (Optional)
INCLUDED WITH YOUR PURCHASE

Free Ground shipping in the Continental U.S.

FREE

Design consultation with the architect or designer to discuss your plan

Home Building & Product Ideas Organizer

Sub Total
$0
Free Shipping
QUESTIONS OR NEED HELP ORDERING? LIVE CHAT OR CALL US AT 866-214-2242
Plan Packages

Each set of construction documents includes detailed, dimensioned floor plans, basic electric layouts, cross sections, roof details, cabinet layouts and elevations, as well as general IRC specifications. They contain virtually all of the information required to construct your home. The typical plan set does not include any plumbing, HVAC drawings, or engineering stamps due to the wide variety of specific needs, local codes, and climatic conditions. These details and specifications are easily obtained from your builder, contractors, and/or local engineers.

BEST PRICE GUARANTEE

find the same house plan (modifications included!) and package for less on another site, show us the URL and we'll give you the difference plus an additional 5% back.

100% SATISFACTION GUARANTEE

We offer a one-time, 30-day exchange policy for unused, non-electronic plan packages in the event you aren't satisfied with your first selection.

 
 

Plan 2575  Back to plan page

Loading...