Get discounts,
promos, see our
newest plans
and more!
+ 15% off any plan
See terms opt out anytime


No Thanks

Thanks for
signing up!


Use Code:

SIGNUP15

And save 15% off any plan!

Check your email for details.

CLOSE
Search Plans
Customer Reviews
     
22% Off House Plans Sitewide Ends Sunday
22% Off House Plans Sitewide Ends Sunday
22% Off House Plans Sitewide Ends Sunday

Code: SAVE22
Sale ends midnight 12/7/2025 PST

Sq Ft
1,663 FT²

Beds
3

Baths
2

Stories
1.5

Garage
0

Depth
27'

Width
42'
On Sale
$733.20
$940.00
EXCLUSIVE PLAN
© copyright by architect
 View All 5 Images | Photographs may reflect modified home
Sq Ft
1,663 FT²
Beds
3
Baths
2
Stories
1.5
Garage
0
Depth
27'
Width
42'
 
Click to Zoom In on Floor Plan
© copyright by architect
 
 

About This Plan

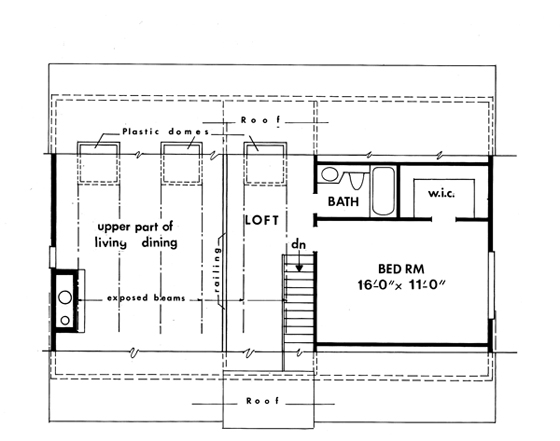
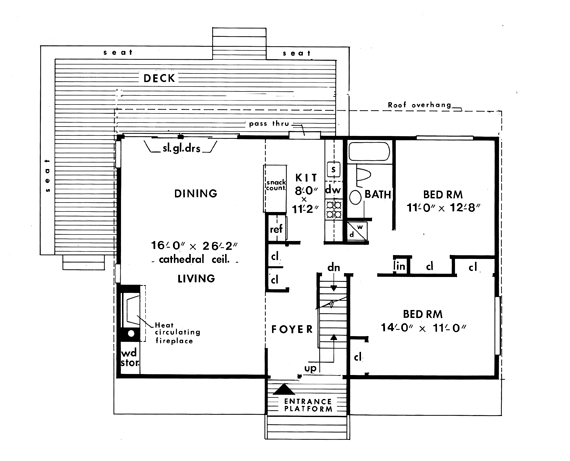
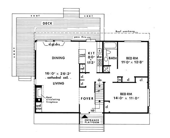
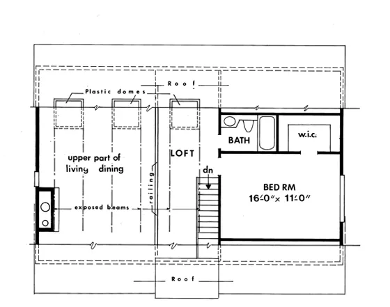
This dramatic contemporary two story is an exciting vacation styled home featuring up to three bedrooms and two full baths. The great room includes a fireplace and a soaring two-story ceiling. The second floor loft overlooks this dramatic space. The master bedroom could be located on either floor. Included in the plans are schematics for a solar collection system on the rear roof, which preferably should face south. 

See All Plan Options
 

FEATURES & DETAILS

Exterior features
Deck
Foundation Options
Basement
Crawlspace
Additional features
Fireplace
Foyer
Great Room
Loft / Balcony
Vaulted Ceilings
1,663 Ft
2
Total Heated
1,134 Ft
2
1st Floor
529 Ft
2
2nd Floor
3
Bedrooms
2
Bathrooms
0
Garage
1.5
Stories
42' 0"
Width
27' 0"
Depth
29' 0"
Height
8.1' 0"
Main Floor Ceiling
8.1' 0"
Upper Floor Ceiling
2x6
Framing
Stick
Roof Framing
12/12
Primary Roof Pitch
32/12
Secondary Roof Pitch
Single
Dwelling Number

Unheated Living Space
467 Ft
2
Deck
 

Plan Package Options

 Select Plan Package
Sale: $554
PDF Bid Set
$710

PDFs NOW!™

Home plans stamped "NOT FOR CONSTRUCTION" for cost estimating and bidding purposes only; a minimum 5 set plan package must be purchased within 90 days for a license to build plan set; a credit will be applied towards your house plan upgrade

Sale: $554
Sale: $733
PDF Single Build
$940

PDFs NOW!™

Digital plans emailed to you in PDF format that allows for printing copies and sharing electronically with contractors, subs, decorators, and more. This package includes a license to build the home one time.

Sale: $733
Sale: $819
5 Printed Sets
$1,050

Five Printed Sets of Residential Construction Drawings are typically 24” x 36” documents and come with a license to construct a single residence shipped to a physical address. Keep in mind PDF Plan Packages are our most popular choice which allows you to print as many copies as you need and to electronically send files to your builder, subcontractors, etc.

Sale: $819
Sale: $878
8 Printed Sets
$1,125

Eight Printed Sets of Construction Drawings, typically 24” x 36” documents, with a license to construct a single residence shipped to your physical address. PDF Plan Packages are our most popular choice which allows you to print as many copies as you need and to electronically send files to your builder, subcontractors, bank/mortgage reps, material stores, decorators and more.

Sale: $878
  Select Foundation Option
  Add-Ons (Optional)
INCLUDED WITH YOUR PURCHASE

Free Ground shipping in the Continental U.S.

FREE

Design consultation with the architect or designer to discuss your plan

Home Building & Product Ideas Organizer

Sub Total
$0
Free Shipping
QUESTIONS OR NEED HELP ORDERING? LIVE CHAT OR CALL US AT 866-214-2242
Plan Packages

Each set of construction documents includes detailed, dimensioned floor plans, basic electric layouts, cross sections, roof details, cabinet layouts and elevations, as well as general IRC specifications. They contain virtually all of the information required to construct your home. The typical plan set does not include any plumbing, HVAC drawings, or engineering stamps due to the wide variety of specific needs, local codes, and climatic conditions. These details and specifications are easily obtained from your builder, contractors, and/or local engineers.

BEST PRICE GUARANTEE

find the same house plan (modifications included!) and package for less on another site, show us the URL and we'll give you the difference plus an additional 5% back.

100% SATISFACTION GUARANTEE

We offer a one-time, 30-day exchange policy for unused, non-electronic plan packages in the event you aren't satisfied with your first selection.

 
 

Plan 3906  Back to plan page

Loading...